Kolbenova, Praha 9, Vysočany
Fojtovická, Trnovany, Teplice
Průběžná, Nupaky, Praha-východ
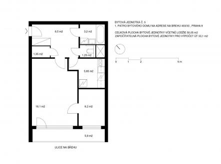
Na břehu, Praha 9, Vysočany
Galvaniho, Praha-Petrovice, Petrovice
Provázkova, Praha 12, Modřany