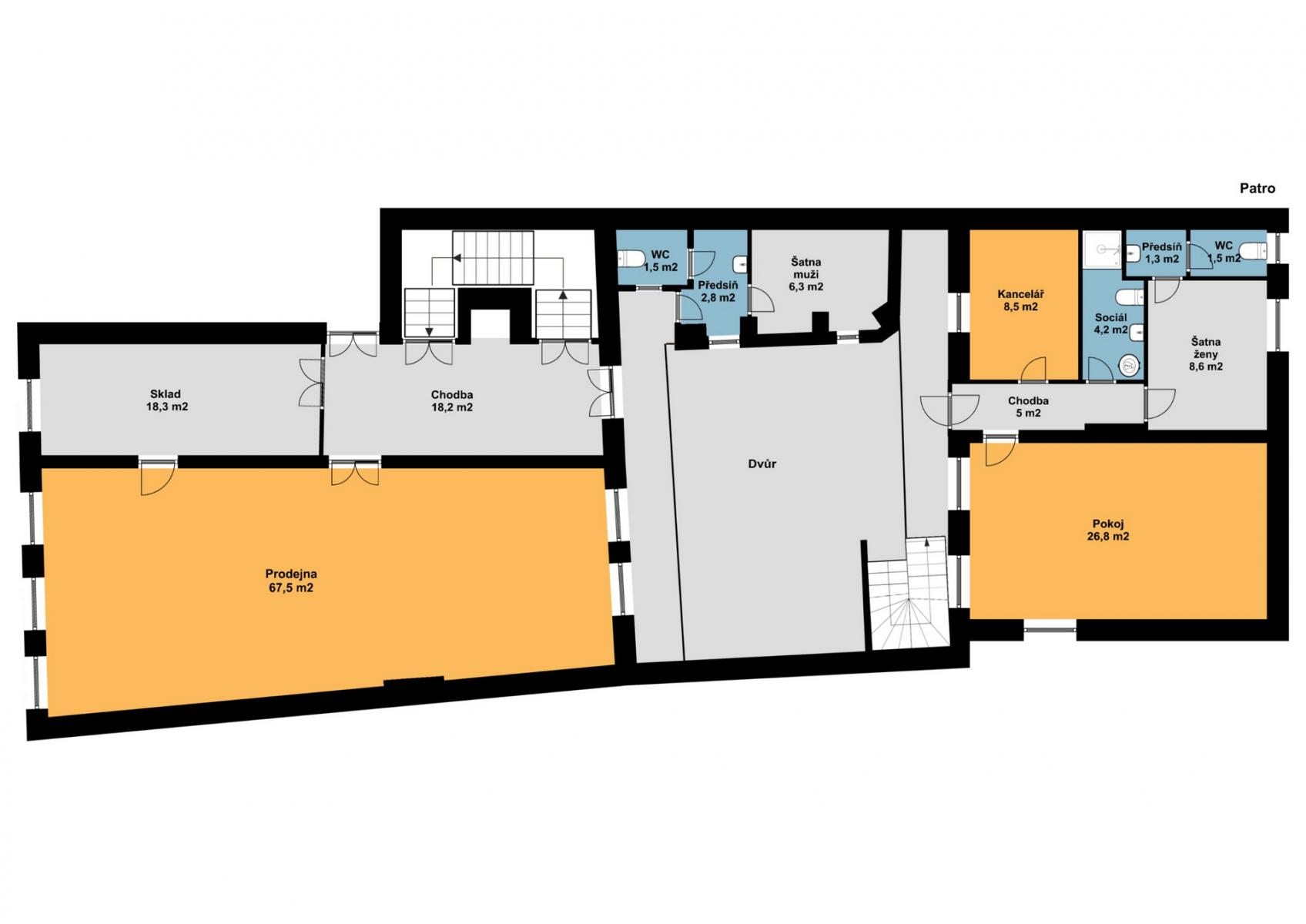
Prodej - obchodní prostor, 200 m²
Palackého, Volyně, Strakonice
5 000 000 KčProdej - obchodní prostor, 200 m²
Palackého, Volyně, Strakonice
Prodej obchodního prostoru, Volyně
| Cena: | 5 000 000 Kč |
| Poznámka: | včetně právního servisu |
| Číslo zakázky: | REALITYMIX-1027 |
Podrobné informace
- Plocha kanceláří: 200 m²
- Druh objektu: smíšená
- Stav objektu: dobrý
- Druh prostor: Obchodní
- Umístění objektu: centrum obce
- Topení: Lokální - elektrické
Právní rádce
-
Detail
V tomto článku shrneme nejdůležitější věci, které byste si měli promyslet, pokud se chystáte prodat svou nemovitost a chcete, abyste s kupujícím nemusel následně řešit vzniklé problémy.
Jako prodávající nesete rizika spojená nejen se samotným obchodem, ale i se stavem nemovitosti v době prodeje a pro minimalizaci rizik, je dobré se zamyslet nad uvedenými oblastmi.
-
Detail
Realitní makléř má své nezastupitelné místo v realitním obchodu. Realitním makléřem nemyslím nevzdělané jelito, které absolvovalo dvoudenní školení a ví, jak se nahraje inzerát na inzertní portál.
Realitním makléřem, který se Vám skutečně vyplatí, je zkušený profesionál, který je schopen Vám dobře poradit jak prodat za co nejvíc a s nejmenším rizikem a hlavně je Vás schopen obratně provést celým realitním obchodem.