Prodej bytu, 3+kk, 75 m²
Poděbradská, Praha 9, Hloubětín
RezervovánoProdej bytu, 3+kk, 75 m²
Poděbradská, Praha 9, Hloubětín
Světlé 3+kk v novostavbě s lodžií, sklepem a vlastní garáží, Praha – Hloubětín
Pokud hledáte světlý a chytře řešený byt v novostavbě kousek od centra Prahy, jistě vás zaujme toto jihovýchodně orientované 3+kk v Hloubětíně. K bytu patří prostorná lodžie, sklep i vlastní uzavíratelná garáž – vše je zahrnuto v ceně.
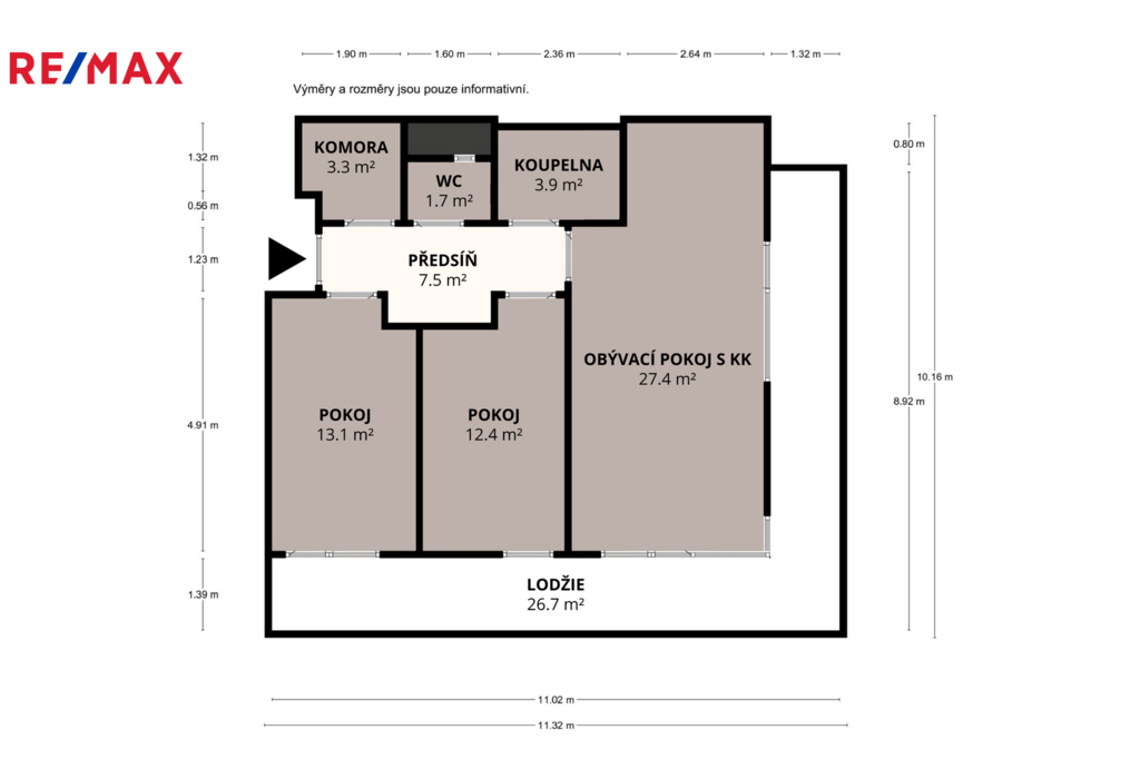
Samotný byt má 75 m² podlahové plochy a nachází se v 5. nadzemním podlaží šestipodlažního domu z roku 2025. Dům vznikl v rámci velmi úspěšného rezidenčního projektu Tesla Hloubětín od renomovaného developera Central Group.
Dispozice: obývací pokoj s kuchyňským koutem (27,4 m²), dva pokoje (13,1 m² a 12,4 m²), koupelna (3,9 m²), samostatné WC (1,7 m²), předsíň (7,5 m²) a komora (3,3 m²). Kuchyňská linka je vybavena vestavěnými spotřebiči, okna mají izolační trojskla. Vytápění řeší podlahové konvektory, přísun čerstvého vzduchu rekuperace. Díky moderním technologiím tak nabízí byt maximální komfort a nízké měsíční náklady.
Lodžie o velikosti 26,7 m² je orientovaná na jih a východ, s výhledem do klidného vnitrobloku. Lodžie je přístupná ze všech tří pokojů. K bytu náleží uzavíratelná garáž a sklep v prvním podzemním podlaží. Dále v domě naleznete společnou kočárkárnu.
Hloubětín je vyhledávanou a rychle se rozvíjející lokalitou s kompletní občanskou vybaveností a rychlou dostupností do centra Prahy. Přímo před domem je tramvajová i autobusová zastávka „Nademlejnská“ – na metro B Hloubětín dojedete zhruba za 3 minuty, na B Českomoravská přibližně za 5 minut. V blízkém okolí najdete též spoustu krásných míst pro relaxaci i aktivní odpočinek.
Pokud vás nabídka zaujala, ozvěte se mi.
Budu se těšit na prohlídce!
Vojtěch Piruchta Prodávající si vyhrazuje právo vybrat kupujícího na základě jím zvolených kritérií.
| Cena: | Rezervováno |
| Dispozice/podlahová plocha: | 3+kk/75 m² |
| Číslo zakázky: | REALITYMIX-430236 |
Podrobné informace
- Dispozice bytu: 3+kk
- Číslo podlaží v domě: 5
- Počet podlaží objektu: 6
- Užitná plocha: 75 m²
- Celková podlahová plocha: 75 m²
- Druh objektu: cihlová
- Stav objektu: novostavba
- Vlastnictví: osobní
- Lodžie: 27 m²
- Sklep: 3 m²
- Vybaveno: ano
- Umístění objektu: centrum obce
- Doprava: vlak, dálnice, silnice, MHD, autobus
- Voda: Voda - dálkový vodovod
- Odpad: Kanalizace
- Energetická náročnost budovy: B - Velmi úsporná
- Energetický ukazatel podle vyhlášky: č. 264/2020 Sb.
Právní rádce
-
Detail
V tomto článku shrneme nejdůležitější věci, které byste si měli promyslet, pokud se chystáte prodat svou nemovitost a chcete, abyste s kupujícím nemusel následně řešit vzniklé problémy.
Jako prodávající nesete rizika spojená nejen se samotným obchodem, ale i se stavem nemovitosti v době prodeje a pro minimalizaci rizik, je dobré se zamyslet nad uvedenými oblastmi.
-
Detail
Realitní makléř má své nezastupitelné místo v realitním obchodu. Realitním makléřem nemyslím nevzdělané jelito, které absolvovalo dvoudenní školení a ví, jak se nahraje inzerát na inzertní portál.
Realitním makléřem, který se Vám skutečně vyplatí, je zkušený profesionál, který je schopen Vám dobře poradit jak prodat za co nejvíc a s nejmenším rizikem a hlavně je Vás schopen obratně provést celým realitním obchodem.