Prodej bytu, atypický, 181 m²
Kolbenova, Praha 9, Vysočany
30 634 000 KčProdej bytu, atypický, 181 m²
Kolbenova, Praha 9, Vysočany
Prodej Luxusního loftového bytu 6+KK s předzahrádkou, 215 m², Praha
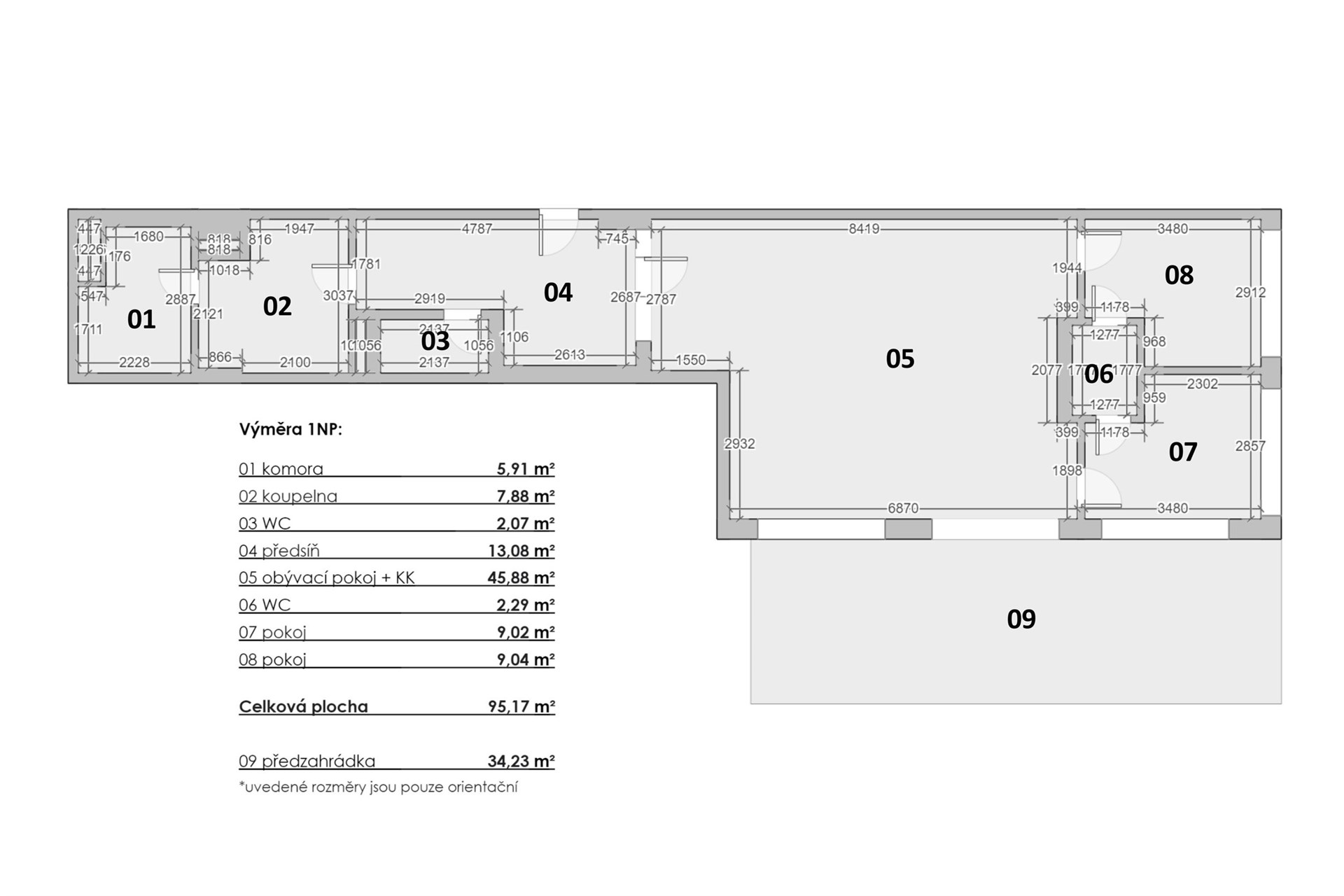
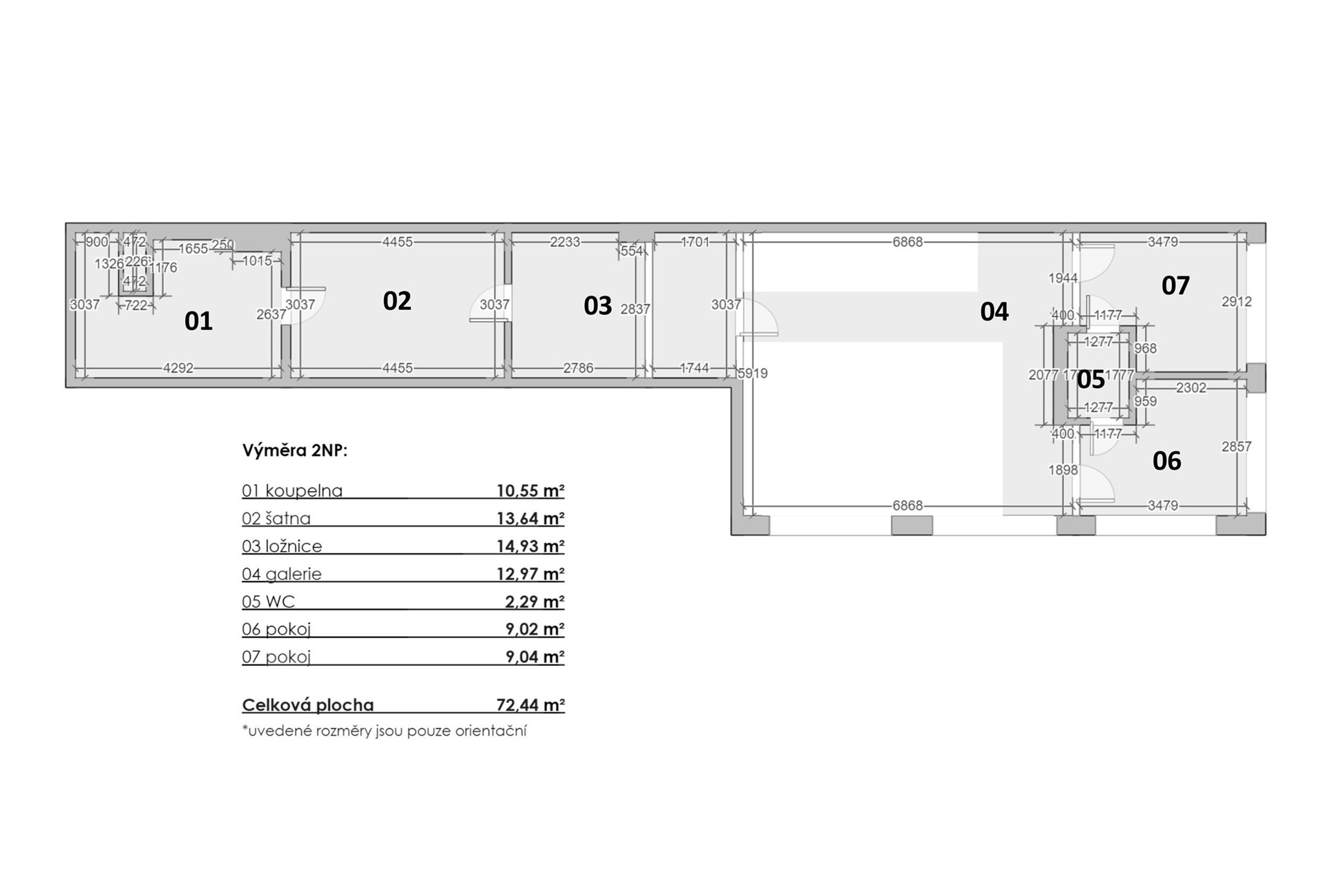
Nabízíme k prodeji exkluzivní loftový byt o dispozici 6+kk v projektu Lofty Kolbenova, Praha 9 – Vysočany. Byt se nachází v 1. nadzemním podlaží a disponuje podlahovou plochou 215,63 m².
**Základní parametry**
✓ dispozice: 6+kk
✓ podlahová plocha: 215,63 m²
✓ podlaží: 1. NP
✓ parkování: možnost dokoupení
✓ sklep: možnost dokoupení
✓ energetická náročnost: B – velmi úsporná
**Stav nemovitosti**
Jedná se o byt v kompletně zrekonstruovaném industriálním objektu, který byl citlivě přeměněn na moderní rezidenční projekt Lofty Kolbenova. Byly zde zachovány typické prvky jako vysoké stropy, betonové konstrukce a velkoformátová tovární okna. Tento developerský projekt získal ocenění jako uznání za nejlepší stavbu využívající stávající objekt v bývalé průmyslové lokalitě.
**Dispozice**
V přízemí se nachází prostorná vstupní chodba, samostatná toaleta, koupelna s vanou i sprchovým koutem a technická místnost. Dominantou podlaží je velkorysý otevřený prostor připravený pro kuchyňskou linku s jídelní a obývací částí. Dále jsou zde dva samostatné pokoje vhodné jako ložnice, pracovna nebo dětské pokoje.
Ve druhém podlaží se nachází další dva samostatné pokoje, hlavní ložnice, šatna a koupelna vybavená vanou, sprchovým koutem a toaletou.
**Příslušenství**
Standard zahrnuje moderní technologie, jako je klimatizace, podlahové vytápění a rekuperací, která zajišťuje stabilní a zdravé vnitřní klima. Samozřejmostí jsou také předokenní žaluzie pro regulaci světla a teploty.
Interiér kombinuje industriální prvky s kvalitními materiály – dřevěné podlahy v dekoru dubu, designové schodiště, osvětlení v industriálním stylu, stěna z pohledového betonu, ocelové detaily a přiznané betonové konstrukce. Pokoje jsou oddělené designovými skleněnými příčkami.
K bytu je možné dokoupit parkovací stání a sklep. Byt je vhodný jak pro rodinné bydlení, tak i pro klienty hledající prostor s charakterem a originalitou.
**Lokalita**
Projekt Lofty Kolbenova se nachází v rychle se rozvíjející části Prahy 9 – Vysočany, která postupně mění svůj původní industriální charakter na moderní městskou čtvrť. Lokalita nabízí kombinaci nové rezidenční výstavby, služeb a autentické atmosféry bývalých průmyslových areálů.
Skvělou dopravní dostupnost zajišťuje metro B Kolbenova (cca 4 minuty chůze) a tramvajová zastávka vzdálená jen 2 minuty. Do centra města se dostanete přibližně za 15 minut.
V okolí najdete kompletní občanskou vybavenost – obchody, restaurace, kavárny i sportovní zařízení. V blízkosti se nachází také oblíbená lokalita Pragovka s kulturním a komunitním přesahem.
Pro volný čas lze využít parky Podviní a Zahrádky nebo cyklostezku podél Rokytky. Lokalita tak nabízí vyvážené spojení městského života a zeleně.
| Cena: | 30 634 000 Kč |
| Datum k nastěhování: | 16.04.2026 |
| Dispozice/podlahová plocha: | Atypický/181 m² |
| Číslo zakázky: | REALITYMIX-15813503 |
Podrobné informace
- Dispozice bytu: Atypický
- Číslo podlaží v domě: 2
- Počet podlaží objektu: 5
- Celková podlahová plocha: 181 m²
- Druh objektu: smíšená
- Stav objektu: novostavba
- Vlastnictví: osobní
- Výška stropu: 6 m
- Sklep: ano
- Terasa: ano
- Doprava: silnice, MHD
- Elektřina: Elektro - 230 V
- Voda: Zdroj pro celý objekt, Voda - dálkový vodovod
- Telekomunikace: Telefon, Internet
- Odpad: Kanalizace
- Energetická náročnost budovy: B - Velmi úsporná
- Energetický ukazatel podle vyhlášky: č. 264/2020 Sb.
Právní rádce
-
Detail
V tomto článku shrneme nejdůležitější věci, které byste si měli promyslet, pokud se chystáte prodat svou nemovitost a chcete, abyste s kupujícím nemusel následně řešit vzniklé problémy.
Jako prodávající nesete rizika spojená nejen se samotným obchodem, ale i se stavem nemovitosti v době prodeje a pro minimalizaci rizik, je dobré se zamyslet nad uvedenými oblastmi.
-
Detail
Realitní makléř má své nezastupitelné místo v realitním obchodu. Realitním makléřem nemyslím nevzdělané jelito, které absolvovalo dvoudenní školení a ví, jak se nahraje inzerát na inzertní portál.
Realitním makléřem, který se Vám skutečně vyplatí, je zkušený profesionál, který je schopen Vám dobře poradit jak prodat za co nejvíc a s nejmenším rizikem a hlavně je Vás schopen obratně provést celým realitním obchodem.