Pronájem bytu, 2+1, 61 m²
Pernerova, Praha 8, Karlín
20 000 Kč (za měsíc)Pronájem bytu, 2+1, 61 m²
Pernerova, Praha 8, Karlín
20 000 Kč
(za měsíc)
G
Mimořádně nehospodárná
Pronájem bytu 2+1, 61 m², Praha 8 Karlín, ulice Pernerova
Stylový byt o dispozici 2+1 a výměře 61 m² se nachází v přízemí činžovního domu v Praze 8 Karlíně, jedné z nejžádanějších lokalit v širším centru Prahy.
Stanice metra Křižíkova i tramvajové zastávky jsou v docházkové vzdálenosti, díky čemuž je centrum města dostupné během několika minut. Parkování je možné na veřejných venkovních stáních v okolí domu.
Zúčtovatelné poplatky ve výši 6 000 Kč měsíčně (včetně elektřiny, bez internetu) + kauce + provize RK.
V domě aktuálně probíhá jeho rekonstrukce.
Byt zaujme především svým osobitým charakterem, vysokými stropy a příjemnou atmosférou, kterou podtrhují světlé stěny a dřevěné podlahy. Díky promyšlenému uspořádání prostor nabízí byt několik funkčních zón, které vytvářejí komfortní prostředí pro každodenní bydlení.
Dominantou bytu je prostorný obývací pokoj, který působí velmi vzdušně a útulně zároveň. Interiér je vkusně zařízen historizujícím dřevěným nábytkem, což dodává bytu jedinečný charakter. Samostatná ložnice je řešena prakticky a nabízí chytré řešení s patrem na spaní a pracovním koutem, díky čemuž je prostor efektivně využit pro odpočinek i práci. Kuchyně je laděna do čistého bílého designu, který je zajímavě doplněn retro spotřebiči a vytváří tak stylový kontrast mezi moderním a dobovým stylem.
Karlín patří dlouhodobě mezi nejvyhledávanější lokality v širším centru Prahy. V bezprostředním okolí se nachází široká nabídka kaváren, restaurací, bister i obchodů, které dotvářejí živou a příjemnou atmosféru této čtvrti. V docházkové vzdálenosti jsou supermarkety, menší obchody, lékařské ordinace, lékárny, pošta i banky. Nechybí ani fitness centra a služby, potřebné pro pohodlný každodenní život.
Pro odpočinek a volný čas jsou v blízkosti parky a zelené plochy, například Karlínské náměstí, nebo cyklostezka podél Vltavy vhodná pro sport i procházky.
K nastěhování od 1.4.2026
Stanice metra Křižíkova i tramvajové zastávky jsou v docházkové vzdálenosti, díky čemuž je centrum města dostupné během několika minut. Parkování je možné na veřejných venkovních stáních v okolí domu.
Zúčtovatelné poplatky ve výši 6 000 Kč měsíčně (včetně elektřiny, bez internetu) + kauce + provize RK.
V domě aktuálně probíhá jeho rekonstrukce.
Byt zaujme především svým osobitým charakterem, vysokými stropy a příjemnou atmosférou, kterou podtrhují světlé stěny a dřevěné podlahy. Díky promyšlenému uspořádání prostor nabízí byt několik funkčních zón, které vytvářejí komfortní prostředí pro každodenní bydlení.
Dominantou bytu je prostorný obývací pokoj, který působí velmi vzdušně a útulně zároveň. Interiér je vkusně zařízen historizujícím dřevěným nábytkem, což dodává bytu jedinečný charakter. Samostatná ložnice je řešena prakticky a nabízí chytré řešení s patrem na spaní a pracovním koutem, díky čemuž je prostor efektivně využit pro odpočinek i práci. Kuchyně je laděna do čistého bílého designu, který je zajímavě doplněn retro spotřebiči a vytváří tak stylový kontrast mezi moderním a dobovým stylem.
Karlín patří dlouhodobě mezi nejvyhledávanější lokality v širším centru Prahy. V bezprostředním okolí se nachází široká nabídka kaváren, restaurací, bister i obchodů, které dotvářejí živou a příjemnou atmosféru této čtvrti. V docházkové vzdálenosti jsou supermarkety, menší obchody, lékařské ordinace, lékárny, pošta i banky. Nechybí ani fitness centra a služby, potřebné pro pohodlný každodenní život.
Pro odpočinek a volný čas jsou v blízkosti parky a zelené plochy, například Karlínské náměstí, nebo cyklostezka podél Vltavy vhodná pro sport i procházky.
K nastěhování od 1.4.2026
| Cena: | 20 000 Kč / (za měsíc) |
| Poznámka: | poplatky 6.000, Kč/měsíčně (včetně elektřiny, bez internetu) |
| Datum k nastěhování: | 10.04.2026 |
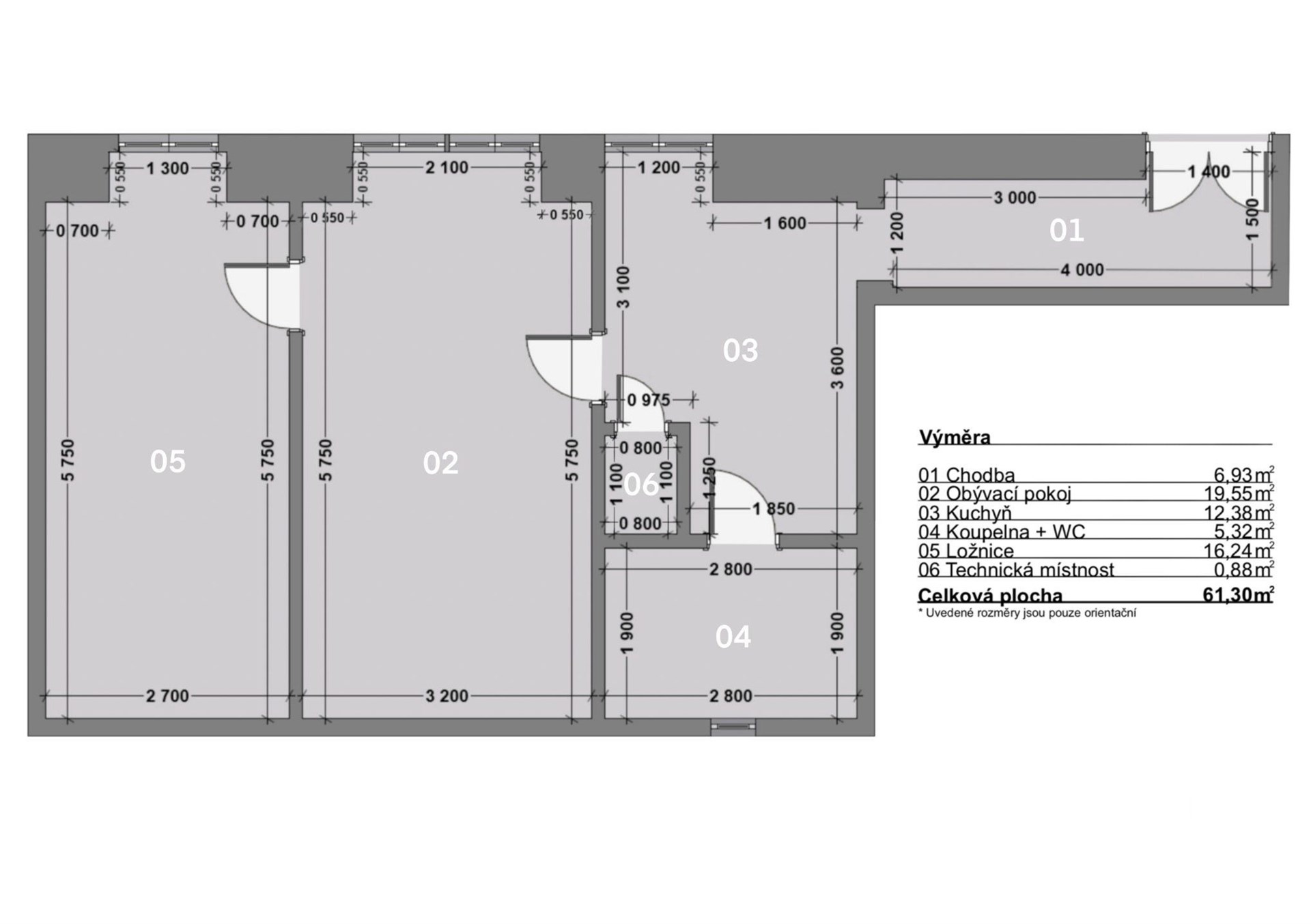
| Dispozice/podlahová plocha: | 2+1/61 m² |
| Číslo zakázky: | REALITYMIX-975824 |
Podrobné informace
- Dispozice bytu: 2+1
- Číslo podlaží v domě: 1
- Počet podlaží objektu: 5
- Celková podlahová plocha: 61 m²
- Druh objektu: cihlová
- Stav objektu: velmi dobrý
- Vlastnictví: osobní
- Vybaveno: ano
- Elektřina: Elektro - 230 V, Elektro - 380 V
- Voda: Zdroj pro celý objekt, Voda - dálkový vodovod
- Odpad: Kanalizace
- Energetická náročnost budovy: G - Mimořádně nehospodárná
- Popis vybavení: .
Mapa
* Umístění na mapě je na základě GPS informací dodaných realitní kanceláří.
* Pozice na mapě je pouze orientační.