Pronájem bytu, 2+1, 54 m²
Konšelská, Praha 8, Libeň
22 000 Kč (za měsíc)Pronájem bytu, 2+1, 54 m²
Konšelská, Praha 8, Libeň
22 000 Kč
(za měsíc)
C
Úsporná
Pronájem bytu 2+1, 54 m² + sklep 2 m² | Konšelská 378/13, Praha 8 – Libeň
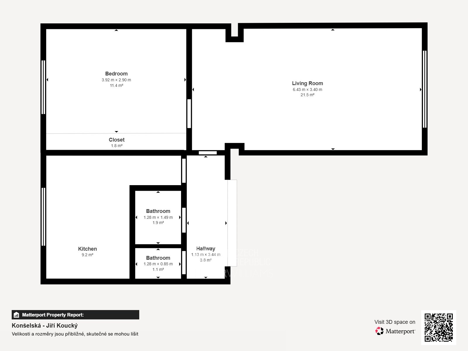
Nabízíme k dlouhodobému pronájmu útulný a velmi klidný byt o dispozici 2+1 o podlahové ploše 54 m², umístěný v 1. patře (2. nadzemní podlaží) bytového domu v ulici Konšelská, Praha 8 - Libeň.
Byt je ideální volbou pro pár, který hledá dlouhodobé bydlení v klidném prostředí s velmi dobrou dostupností do centra Prahy.
Dispozice
- vstupní předsíň s vestavěnou skříní
- samostatné WC
- koupelna se sprchovým koutem
- kuchyň
- obývací pokoj
- ložnice s vestavěnou skříní
- sklep v suterénu domu (cca 2 m²)
Dispozice je funkční a praktická, ideální pro komfortní bydlení.
Vybavení a technické informace
- byt je nevybavený
- kuchyň včetně spotřebičů (mikrovlnka, trouba, varná deska, lednice)
- koupelna s pračkou
- dřevěné parkety v ložnici a obývacím pokoji
- vytápění a ohřev vody je centrální
- elektřina bude převedena na nájemníka
Nájemní podmínky a provozní náklady
- nájemné: 22.000 Kč / měsíc
- poplatky za domovní služby: 3.500 Kč / měsíc / pro 2 osoby (hrazeny nad rámec nájemného)
- elektřina bude převedena na nájemníka
- kauce: 40.000 Kč
K nastěhování
- Ihned
- preferován dlouhodobý nájemní vztah
Lokalita
Ulice Konšelská v Pražské Libni nabízí kombinaci klidného bydlení a výborné dopravní dostupnosti:
- rychlá dostupnost do centra Prahy
- cca 10 minut MHD do historického jádra města
- tramvajové linky v docházkové vzdálenosti
- v okolí obchody, restaurace, kavárny, služby, nákupní centrum Galerie Harfa
- dostatek zeleně v okolí, přímo před domem park Pod Korábem a dětské hřiště
- ideální místo pro sport, procházky i volnočasové aktivity
- kombinace novostaveb a činžovních domů
Lokalita je ideální pro každého, kdo chce bydlet v klidu, ale zároveň mít centrum města snadno a rychle dostupné.
Byt je skvělou volbou pro jednotlivce či pár, který hledá dlouhodobé, klidné bydlení.
Jiří Koucký
realitní makléř
Všechny uvedené informace mají pouze orientační charakter a mohou se změnit. Tento inzerát není návrhem na uzavření nájemní smlouvy dle § 1732 občanského zákoníku. Uváděné výměry jsou přibližné. Pronajímatel si vyhrazuje právo upravit podmínky nebo upřednostnit vybraného zájemce.
Byt je ideální volbou pro pár, který hledá dlouhodobé bydlení v klidném prostředí s velmi dobrou dostupností do centra Prahy.
Dispozice
- vstupní předsíň s vestavěnou skříní
- samostatné WC
- koupelna se sprchovým koutem
- kuchyň
- obývací pokoj
- ložnice s vestavěnou skříní
- sklep v suterénu domu (cca 2 m²)
Dispozice je funkční a praktická, ideální pro komfortní bydlení.
Vybavení a technické informace
- byt je nevybavený
- kuchyň včetně spotřebičů (mikrovlnka, trouba, varná deska, lednice)
- koupelna s pračkou
- dřevěné parkety v ložnici a obývacím pokoji
- vytápění a ohřev vody je centrální
- elektřina bude převedena na nájemníka
Nájemní podmínky a provozní náklady
- nájemné: 22.000 Kč / měsíc
- poplatky za domovní služby: 3.500 Kč / měsíc / pro 2 osoby (hrazeny nad rámec nájemného)
- elektřina bude převedena na nájemníka
- kauce: 40.000 Kč
K nastěhování
- Ihned
- preferován dlouhodobý nájemní vztah
Lokalita
Ulice Konšelská v Pražské Libni nabízí kombinaci klidného bydlení a výborné dopravní dostupnosti:
- rychlá dostupnost do centra Prahy
- cca 10 minut MHD do historického jádra města
- tramvajové linky v docházkové vzdálenosti
- v okolí obchody, restaurace, kavárny, služby, nákupní centrum Galerie Harfa
- dostatek zeleně v okolí, přímo před domem park Pod Korábem a dětské hřiště
- ideální místo pro sport, procházky i volnočasové aktivity
- kombinace novostaveb a činžovních domů
Lokalita je ideální pro každého, kdo chce bydlet v klidu, ale zároveň mít centrum města snadno a rychle dostupné.
Byt je skvělou volbou pro jednotlivce či pár, který hledá dlouhodobé, klidné bydlení.
Jiří Koucký
realitní makléř
Všechny uvedené informace mají pouze orientační charakter a mohou se změnit. Tento inzerát není návrhem na uzavření nájemní smlouvy dle § 1732 občanského zákoníku. Uváděné výměry jsou přibližné. Pronajímatel si vyhrazuje právo upravit podmínky nebo upřednostnit vybraného zájemce.
| Cena: | 22 000 Kč / (za měsíc) |
| Poznámka: | Poplatky za domovní služby: 3.500 Kč / měs / pro 2 osoby + přepis el. na nájemníka, + provize RK |
| Dispozice/podlahová plocha: | 2+1/54 m² |
| Číslo zakázky: | REALITYMIX-29817 |
Podrobné informace
- Dispozice bytu: 2+1
- Číslo podlaží v domě: 2
- Počet podlaží objektu: 1
- Celková podlahová plocha: 54 m²
- Druh objektu: cihlová
- Stav objektu: po rekonstrukci
- Vlastnictví: osobní
- Sklep: 2 m²
- Vybaveno: ano
- Umístění objektu: klidná část obce
- Voda: Voda - dálkový vodovod
- Topení: Ústřední - dálkové
- Odpad: Kanalizace
- Energetická náročnost budovy: C - Úsporná
- Ukazatel energetické náročnosti budovy: 92 kWh/m²
- Energetický ukazatel podle vyhlášky: č. 264/2020 Sb.
Mapa
* Umístění na mapě je na základě GPS informací dodaných realitní kanceláří.
* Pozice na mapě je pouze orientační.
Podobné nemovitosti
Pronájem bytu, 2+1, 60 m²
Pod Čertovou skalou, Praha 8, Libeň
22 000 Kč za měsíc
Pronájem bytu, 2+1, 41 m²
Nekvasilova, Praha 8, Karlín
19 500 Kč za měsíc
Pronájem bytu, 2+1, 55 m²
Paláskova, Praha 8, Kobylisy
22 000 Kč za měsíc
Pronájem bytu, 2+1, 45 m²
Na Stírce, Praha 8, Kobylisy
23 900 Kč za měsíc