Prodej - dům/vila, 213 m²
Čábelecká, Praha-Lysolaje, Lysolaje
36 000 000 KčProdej - dům/vila, 213 m²
Čábelecká, Praha-Lysolaje, Lysolaje
Exkluzivní investiční příležitost v Praze 6 Lysolaje
Rodinný dům se 3 bytovými jednotkami + rozvojový potenciál
Nabízíme k prodeji atraktivní nemovitost v jedné z nejžádanějších a klidných lokalit Prahy 6 Lysolaje.
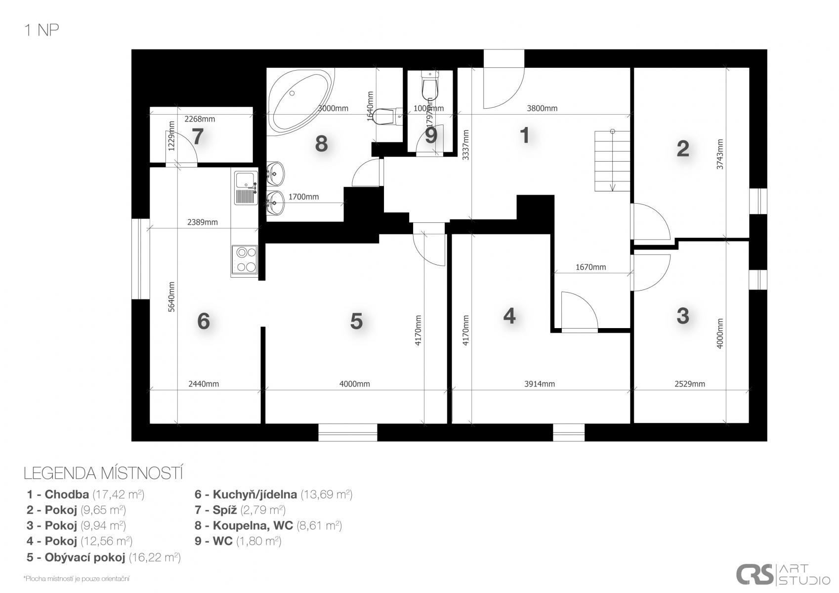
Jedná se o rodinný dům rozdělený na 3 bytové jednotky, který stojí na pozemku o celkové výměře cca 3 019 m and sup2; (z toho zahrada cca 2 714 m and sup2;) . Nemovitost představuje ideální kombinaci okamžitého využití a dlouhodobého developerského potenciálu.
Klíčové přednosti nemovitosti:
3 samostatné bytové jednotky vhodné pro nájemní bydlení či vícegenerační užívání
Částečná rekonstrukce (přízemí a podkroví), zbytek v původním stavu možnost realizace dle vlastních představ
Rozlehlý pozemek se zahradou poskytující soukromí i další využití
Výjimečná lokalita klid, zeleň, zároveň výborná dostupnost centra Prahy
Developerský potenciál:
Pozemek umožňuje realizaci nového stavebního záměru o velikosti cca 7 až 8 bytových jednotek, v závislosti na zvoleném architektonickém řešení.
Projekt je nutné přizpůsobit:
konfiguraci a svažitosti terénu
požadavkům na parkovací kapacity
regulativům územního plánování
Ideální příležitost pro investora nebo developera hledajícího projekt v prémiové lokalitě s omezenou nabídkou.
Nabídková cena: 36 000 000 Kč
Lokalita Lysolaje, Praha 6
Vyhledávaná rezidenční čtvrť s venkovským charakterem, množstvím zeleně a rychlou dostupností do centra i na letiště. Oblast nabízí kombinaci klidu, prestiže a dlouhodobě stabilní hodnoty nemovitostí.
| Cena: | 36 000 000 Kč |
| Číslo zakázky: | REALITYMIX-30 |
Podrobné informace
- Poloha objektu: samostatný
- Druh objektu: cihlová
- Stav objektu: před rekonstrukcí
- Počet podlaží objektu: 3
- Typ domu: patrový
- Zastavěná plocha: 306 m²
- Plocha parcely: 3019 m²
- Užitná plocha: 213 m²
- Umístění objektu: klidná část obce
- Doprava: silnice, MHD, autobus
- Elektřina: Elektro - 230 V
- Voda: Zdroj pro celý objekt
- Topení: Lokální - elektrické
- Odpad: Kanalizace
- Energetická náročnost budovy: G - Mimořádně nehospodárná
Právní rádce
-
Detail
V tomto článku shrneme nejdůležitější věci, které byste si měli promyslet, pokud se chystáte prodat svou nemovitost a chcete, abyste s kupujícím nemusel následně řešit vzniklé problémy.
Jako prodávající nesete rizika spojená nejen se samotným obchodem, ale i se stavem nemovitosti v době prodeje a pro minimalizaci rizik, je dobré se zamyslet nad uvedenými oblastmi.
-
Detail
Realitní makléř má své nezastupitelné místo v realitním obchodu. Realitním makléřem nemyslím nevzdělané jelito, které absolvovalo dvoudenní školení a ví, jak se nahraje inzerát na inzertní portál.
Realitním makléřem, který se Vám skutečně vyplatí, je zkušený profesionál, který je schopen Vám dobře poradit jak prodat za co nejvíc a s nejmenším rizikem a hlavně je Vás schopen obratně provést celým realitním obchodem.
Mapa
Podobné nemovitosti
Prodej - dům/vila, 310 m²
K Housličkám, Praha-Lysolaje
47 990 000 Kč
Prodej - dům/vila, 850 m²
Čábelecká, Praha-Lysolaje, Lysolaje
Cena na vyžádání
Prodej - dům/vila, 315 m²
Lysolajské údolí, Praha-Lysolaje, Lysolaje
Cena na vyžádání
Prodej - dům/vila, 310 m²
K Housličkám, Praha-Lysolaje
49 990 000 Kč