Prodej - jiné, 460 m²
Linecká, Kaplice, Český Krumlov
Cena na vyžádáníProdej - jiné, 460 m²
Linecká, Kaplice, Český Krumlov
Prodej komerčního objektu 395 m2, Kaplice
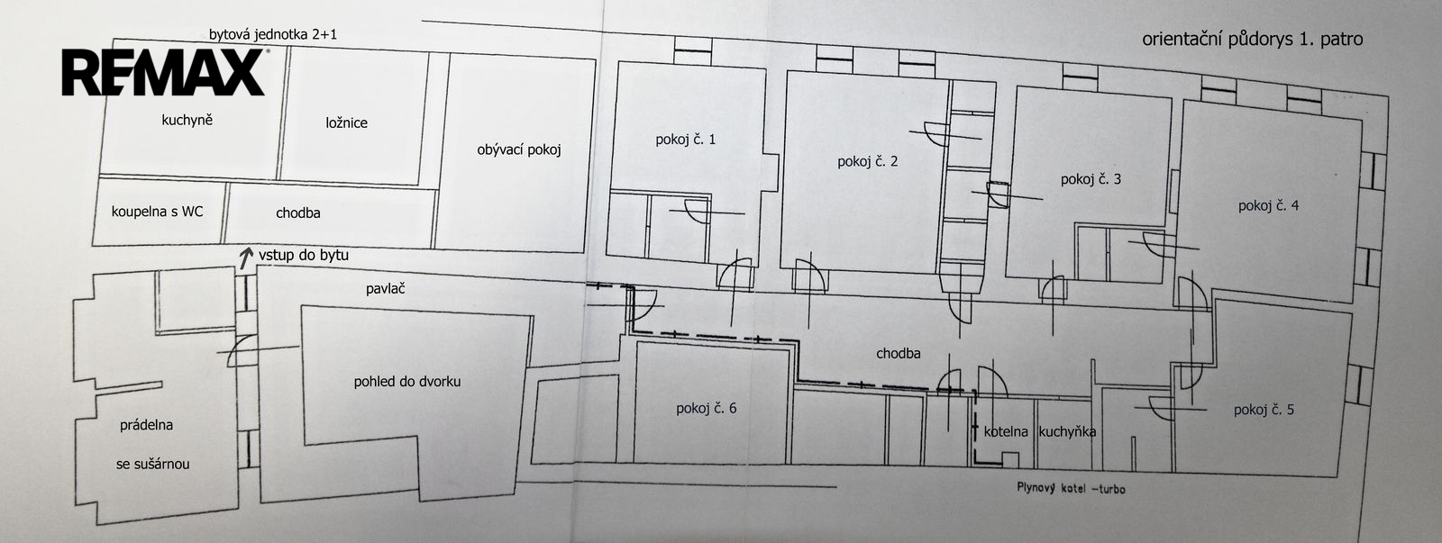
Objekt, tvořící roh náměstí je dvoupodlažní, částečně podsklepený, v dobrém stavu. Celková zastavěná plocha včetně dvorku je 395 m2.
V přízemí se nachází větší prodejna se samostatným vchodem z náměstí 120 m2. V současné době využívaná jako prodejna textilu. Sestává se z prostorné prodejní místnosti, chodby, skladu a sociálního zařízení. Dále se v přízemí se vstupem z boční Linecké ulice nachází další komerční prostory 61 m2, které byly využívány jako vinotéka. Sestávají se ze vstupní přepažené místnosti, kuchyňky, skladu, kanceláře a sociálního zařízení. Vchodem z boční ulice se také vchází průchodem do menšího uzavřeného dvorku odkud je po kamenném venkovním schodišti umožněn přístup do patra na pavlač 15,3 m2, ze které se vchází do místností, sloužících jako prádelna se sušárnou 19,3 m2 a do bytové jednotky o dispozici 2+1, 60 m2. Dále na pavlač navazuje chodba 30,2 m2 odkud se samostatně vstupuje do šesti pokojů, sloužících k soukromému ubytování. Každý pokoj má vlastní sociální zařízení včetně společné kuchyňky 2,7 m2 s úklidovou komorou 0,95 m2 a skladem 1,26 m2. Rozměry samostatných pokojů se sociálním zařízením jsou 21 m2, 29,5 m2, 24 m2, 22,5 m2, 22,7 m2 a 17 m2. V 1. patře je místnost 3 m2 pro umístění plynového kotle. Recepce sloužící k ubytování se nachází v přízemí v průchodu. Z Linecké ulice se také vchází do samostatné místnosti 11,7 m2, kterou lze využít jako menší kancelář či sklad.
Technický stav objektu je dobrý, v roce 2001 prošel rozsáhlejší rekonstrukcí, nová střecha, fasáda, plastová okna, topení, ve 2. NP bylo vybudováno 6 pokojů. Půdu lze zčásti v budoucnu využít k půdní vestavbě. Nemovitost je napojena veškeré veřejné sítě – voda, elektřina, kanalizace. Objekt je také napojen na plynovou přípojku, ústřední vytápění celé nemovitosti kromě bytové jednotky je řešeno 2 plynovými kotly. Byt se vytápí elektřinou, v každé místnosti je elektrický přímotop.
V Kaplici ležící 11 km od hraničního přechodu Dolní Dvořiště do Rakouska se nachází veškerá občanská vybavenost. Rozsáhlost a lukrativní poloha nemovitosti nabízí mnoho možností k podnikání, je vhodná k provozování prodejen, restaurační činnosti, zřízení kanceláří a ubytovacích služeb, které jsou v Kaplici velmi žádané.
Vzhledem k lokalitě a atraktivnímu umístění nemovitosti doporučuji prohlídku, kterou si prosím domluvte na telefonním čísle +420 605 252 401.
S financováním Vám ráda pomohu s naším odborným hypotečním makléřem.
| Cena: | Cena na vyžádání |
| Poznámka: | cena u makléře |
| Číslo zakázky: | REALITYMIX-298116 |
Podrobné informace
- Plocha kanceláří: 460 m²
- Plocha parcely: 395 m²
- Druh objektu: smíšená
- Stav objektu: dobrý
- Druh prostor: Jiné
- Umístění objektu: centrum obce
- Energetická náročnost budovy: G - Mimořádně nehospodárná
- Ukazatel energetické náročnosti budovy: 571 kWh/m²
- Energetický ukazatel podle vyhlášky: č. 78/2013 Sb.
Právní rádce
-
Detail
V tomto článku shrneme nejdůležitější věci, které byste si měli promyslet, pokud se chystáte prodat svou nemovitost a chcete, abyste s kupujícím nemusel následně řešit vzniklé problémy.
Jako prodávající nesete rizika spojená nejen se samotným obchodem, ale i se stavem nemovitosti v době prodeje a pro minimalizaci rizik, je dobré se zamyslet nad uvedenými oblastmi.
-
Detail
Realitní makléř má své nezastupitelné místo v realitním obchodu. Realitním makléřem nemyslím nevzdělané jelito, které absolvovalo dvoudenní školení a ví, jak se nahraje inzerát na inzertní portál.
Realitním makléřem, který se Vám skutečně vyplatí, je zkušený profesionál, který je schopen Vám dobře poradit jak prodat za co nejvíc a s nejmenším rizikem a hlavně je Vás schopen obratně provést celým realitním obchodem.
Mapa
Podobné nemovitosti
Prodej - výrobní prostor, 10 848 m²
Pohorská, Kaplice, Český Krumlov
Cena na vyžádání
Prodej - jiné, 780 m²
Český Krumlov
2 990 000 Kč
Prodej - obchodní prostor, 2 656 m²
Nádražní, Nádražní Předměstí, Český Krumlov
Cena na vyžádání
Prodej - obchodní prostor, 270 m²
Chvalšinská, Latrán, Český Krumlov
Cena na vyžádání