Prodej - obchodní prostor, 283 m²
Ruská, Děčín IV-Podmokly, Děčín
15 000 000 KčProdej - obchodní prostor, 283 m²
Ruská, Děčín IV-Podmokly, Děčín
Obchodně-komerční prostor se zázemím, Děčín-Podmokly, ul. Ruská
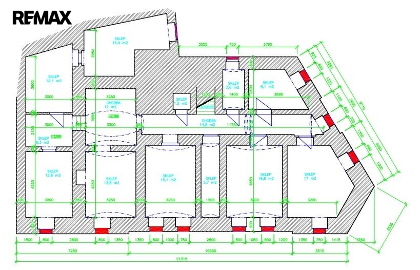
Samotná prodejna 1.NP (zastavěná plocha 283,90 m2, užitná plocha 220 m2) je nyní koncipována jako provozovna-prodejna maso-uzeniny s technickým zázemím pro vlastní provoz, skladování a činnost. Celý prostor je kompletně chlazený, a to již od nákladové rampy. Certifikovaná provozovna pro bourárenskou (červeného a bílého masa) a výrobní činnost vč. skladování. Prodejna je kompletně vybavena vč. skladově-pokladního systému, vážného systému vah do PC, datových rozvodů a kamerového systému a kompletního strojního vybavení pro výrobu a expedici masa.
Technické zázemí je situováno do 1.PP a jedná se o strojovnu chlazení, šatny, odpočinkovou místnost, umývárnu přepravek a obalů. Původní sklepní prostory jsou po kompletní rekonstrukci (rozvody odpadních vod, vč. jímací a přečerpávající stanice odp. vod a tuhých částí, elektrické rozvody vč. nové rozvodové skříně, rozvody datových kabelů vč. nové servrovny, zálohové PC stanice a úložiště dat, podlahy s izolací).
Zásobování je řešeno vlastní nákladovou rampou přímo do chlazeného prostoru.
Dům prošel v letech 2008-2016 nákladnou rekonstrukcí v několika etapách (střecha, bytové jednotky, odpady a stoupačky, kompletně nebytové prostory i se zázemím v 1.PP). Dům je zateplen a je připojen na veškeré dostupné sítě (voda, el. Energie, plyn, kanalizace). Přístup a příjezd i nákladních vozidel po obecních komunikacích.
V případě většího podnikatelského záměru, lze koupit celou nemovitost vč. 6 BJ (3 x 97,3 m2 a 3 x 85,6 m2) a půdního prostoru, kde lze zbudovat mezonetové byty či další samostatné jednotky.
Unikátní výhody této nabídky jsou: umístění polohy v centru, vlastní nákladová rampa přímo do chlazeného prostoru v 1.NP (agregáty v 1.PP), kompletní vybavení prodejny vč. pokladního systému propojeného se skladovým systémem, datové rozvody, kamerový systém a přenos do PC, klimatizovaný prostor celé prodejny, veškerá povolení a certifikáty k činnosti, dostatečná kapacita příkonu od ČEZ, historie podnikání.
Prostor je ideální pro prodejnu a výrobnu stávajícího sortimentu (maso-uzeniny, lahůdky) nebo malo i velkoobchod O/Z či květin (s využitím stávajícího systému chlazení) či jakékoli další podnikání s provozovnou se vstupem z ulice a velkými výlohami.
Pokud Vás nabídka zaujala, tak kontaktujte makléře nabídky, který Vám poskytne veškeré další podrobné informace. Prodávající si vyhrazuje právo vybrat kupujícího na základě jím zvolených kritérií.
| Cena: | 15 000 000 Kč |
| Poznámka: | vč. kompletního právního a realitního servisu a provize |
| Číslo zakázky: | REALITYMIX-435181 |
Podrobné informace
- Plocha kanceláří: 283 m²
- Plocha parcely: 295 m²
- Druh objektu: cihlová
- Stav objektu: velmi dobrý
- Druh prostor: Obchodní
- Umístění objektu: centrum obce
- Doprava: vlak, silnice, MHD, autobus
- Komunikace: asfaltová
- Elektřina: Elektro - 230 V, Elektro - 400 V
- Voda: Voda - dálkový vodovod
- Telekomunikace: Internet
- Plyn: Plynovod
- Odpad: Kanalizace
- Energetická náročnost budovy: D - Méně úsporná
- Ukazatel energetické náročnosti budovy: 184 kWh/m²
- Energetický ukazatel podle vyhlášky: č. 264/2020 Sb.
Právní rádce
-
Detail
V tomto článku shrneme nejdůležitější věci, které byste si měli promyslet, pokud se chystáte prodat svou nemovitost a chcete, abyste s kupujícím nemusel následně řešit vzniklé problémy.
Jako prodávající nesete rizika spojená nejen se samotným obchodem, ale i se stavem nemovitosti v době prodeje a pro minimalizaci rizik, je dobré se zamyslet nad uvedenými oblastmi.
-
Detail
Realitní makléř má své nezastupitelné místo v realitním obchodu. Realitním makléřem nemyslím nevzdělané jelito, které absolvovalo dvoudenní školení a ví, jak se nahraje inzerát na inzertní portál.
Realitním makléřem, který se Vám skutečně vyplatí, je zkušený profesionál, který je schopen Vám dobře poradit jak prodat za co nejvíc a s nejmenším rizikem a hlavně je Vás schopen obratně provést celým realitním obchodem.