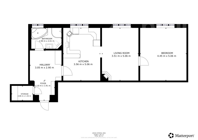
Prodej bytu, 2+1, 86 m²
Pražská, Znojmo
4 589 800 KčProdej bytu, 2+1, 86 m²
Pražská, Znojmo
Prodej bytu 2+1 Pražská, Znojmo, 76,5 m2
Nabízím k prodeji byt s dispozicí 2+1 o výměře 76,5 m2 na u lici Pražská ve Znojmě.
Byt se nachází se ve 3. patře cihlového domu z roku 1932. Plocha bytu je dle prohlášení vlastníka 76,5m2, k němu náleží sklepní kóje.
Dominantou obývacího pokoje je krb, který vytváří jedinečnou atmosféru a dává bytu charakter.
Nad bytem se nachází půdní prostor, který je možné po dohodě odkoupit a využít pro vytvoření mezonetového bydlení.
Byt prošel částečnou rekonstrukcí: kuchyňská linka včetně spotřebičů, rozvody elektroinstalace v mědi, výměna oken, klimatizace v kuchyni, plovoucí podlaha v ložnici a v kuchyni PVC, koupelna.
V technické místnosti se nachází vlastní vytápění plynovým kotlem, ohřev vody bojlerem a najdete v ní i místo na pračku.
Bytový dům byl revitalizován - nová střecha, výměna oken za plastová, nové stoupačky, nové vstupní dveře.
Měsíční náklady činí 1.690,-Kč, plus záloha na spotřebu zemního plynu a elektřiny.
Byt je k nastěhování od 1.7.2026 ( po domluvě i dříve).
Ulice Pražská nabízí kompletní občanskou vybavenost - školy, školky, obchody, dětské hřiště, služby i dobrou dostupnost do centra Znojma.
Doporučuji osobní prohlídku této nemovitosti. S financováním Vám ráda pomůžu. Pro více informací či domluvení prohlídky mne kontaktujte.
| Cena: | 4 589 800 Kč |
| Poznámka: | včetně právního servisu a provize RK |
| Dispozice/podlahová plocha: | 2+1/86 m² |
| Číslo zakázky: | REALITYMIX-234909 |
Podrobné informace
- Dispozice bytu: 2+1
- Číslo podlaží v domě: 4
- Počet podlaží objektu: 4
- Celková podlahová plocha: 86 m²
- Druh objektu: cihlová
- Stav objektu: dobrý
- Vlastnictví: osobní
- Vybaveno: ano
- Energetická náročnost budovy: E - Nehospodárná
Právní rádce
-
Detail
V tomto článku shrneme nejdůležitější věci, které byste si měli promyslet, pokud se chystáte prodat svou nemovitost a chcete, abyste s kupujícím nemusel následně řešit vzniklé problémy.
Jako prodávající nesete rizika spojená nejen se samotným obchodem, ale i se stavem nemovitosti v době prodeje a pro minimalizaci rizik, je dobré se zamyslet nad uvedenými oblastmi.
-
Detail
Realitní makléř má své nezastupitelné místo v realitním obchodu. Realitním makléřem nemyslím nevzdělané jelito, které absolvovalo dvoudenní školení a ví, jak se nahraje inzerát na inzertní portál.
Realitním makléřem, který se Vám skutečně vyplatí, je zkušený profesionál, který je schopen Vám dobře poradit jak prodat za co nejvíc a s nejmenším rizikem a hlavně je Vás schopen obratně provést celým realitním obchodem.