Prodej - dům/vila, 120 m²
Zlončice, Mělník
11 890 000 KčProdej - dům/vila, 120 m²
Zlončice, Mělník
Exkluzivně: Prodej dům, cca 113 ㎡, pozemek 550 ㎡, dřevostavba
Obec leží pouhé 4 km od Kralup nad Vltavou a díky výborné dopravní dostupnosti se na dálnici D8 dostanete během 5 minut. Do Prahy – OC Letňany pak dojedete autem zhruba za 15 minut. Ideální kombinace venkovského klidu a pohodlného spojení s hlavním městem.
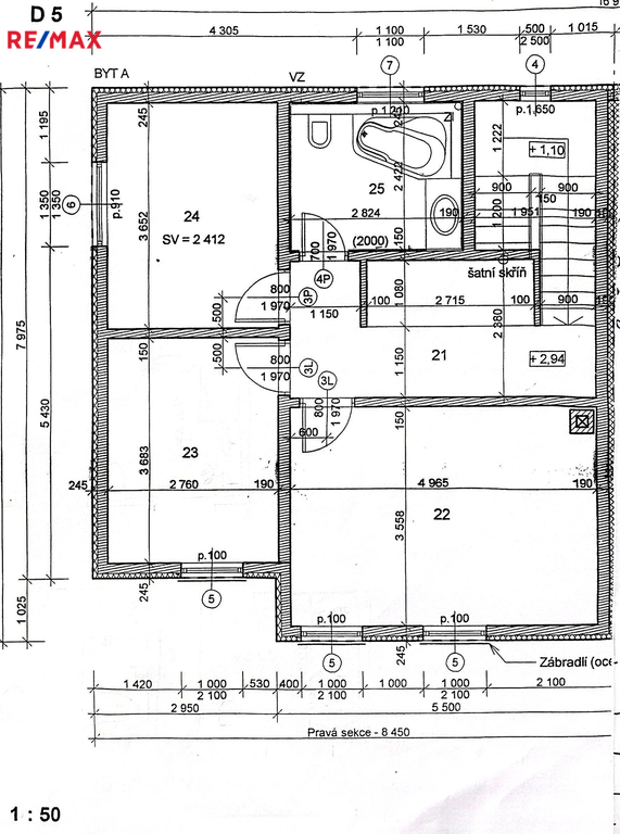
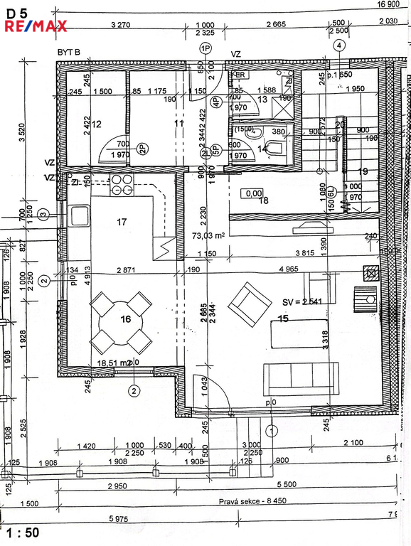
Celková plocha pozemku činí 550 m² (zahrada + zastavěná plocha). Dům je dřevostavbou sendvičového typu z roku 2007, jedná se o dvojdům bez podsklepení, rozdělený do dvou obytných podlaží.
Dispozice domu:
V přízemí se nachází světlý a prostorný obývací pokoj s jižní orientací, který navazuje na plně vybavený kuchyňský kout. Z obývacího pokoje je přímý vstup na terasovou část (cca 30 m²) a zahradu, ideální pro relaxaci i rodinné posezení.
Dále zde najdete samostatnou toaletu, technickou místnost, prostornou chodbu a šatnu.
V patře se nachází tři samostatné pokoje a koupelna s vanou. Součástí horního podlaží je i vestavěná skříň s dostatkem úložného prostoru.
Technické informace:
V roce 2018 proběhla rekonstrukce střechy včetně výměny střešní krytiny, což zlepšilo izolační vlastnosti domu.
Dům je napojen na obecní vodovod, elektřinu a kanalizační síť (přes vlastní čerpadlo do ČOV).
Vytápění je řešeno elektrokotlem umístěným v technické místnosti.
Plyn není zaveden.
Energetický štítek (PENB) bude doložen před prodejem, proto prozatím uvádíme třídu G.
Na pozemku se nachází samostatný zahradní domek/sklad o velikosti cca 14 m² a parkovací stání na vlastním pozemku.
Lokalita a okolí:
Zlončice jsou vyhledávanou lokalitou díky své přátelské sousedské komunitě, naprostému klidu a bezpečné atmosféře ideální pro rodinný život.
V okolí najdete školku, školu, obchody, sportoviště i krásnou přírodu. Místo, kde se budete opravdu cítit doma.
Rodinný dům ve Zlončicích představuje ideální volbu pro ty, kdo hledají pohodové rodinné bydlení v blízkosti Prahy, s veškerým komfortem, klidem a soukromím.
V případě zájmu o prohlídku mě neváhejte kontaktovat – rád vám dům osobně představím.
| Cena: | 11 890 000 Kč |
| Poznámka: | Majitel si vyhrazuje právo výběru nového majitele. |
| Datum k nastěhování: | 01.05.2025 |
| Číslo zakázky: | REALITYMIX-411124 |
Podrobné informace
- Poloha objektu: rohový
- Druh objektu: smíšená
- Stav objektu: velmi dobrý
- Počet podlaží objektu: 2
- Typ domu: patrový
- Zastavěná plocha: 73 m²
- Plocha parcely: 550 m²
- Zahrada: 477 m²
- Užitná plocha: 120 m²
- Umístění objektu: klidná část obce
- Voda: Voda - dálkový vodovod
- Odpad: Kanalizace
- Energetická náročnost budovy: G - Mimořádně nehospodárná
- Energetický ukazatel podle vyhlášky: č. 264/2020 Sb.
Právní rádce
-
Detail
V tomto článku shrneme nejdůležitější věci, které byste si měli promyslet, pokud se chystáte prodat svou nemovitost a chcete, abyste s kupujícím nemusel následně řešit vzniklé problémy.
Jako prodávající nesete rizika spojená nejen se samotným obchodem, ale i se stavem nemovitosti v době prodeje a pro minimalizaci rizik, je dobré se zamyslet nad uvedenými oblastmi.
-
Detail
Realitní makléř má své nezastupitelné místo v realitním obchodu. Realitním makléřem nemyslím nevzdělané jelito, které absolvovalo dvoudenní školení a ví, jak se nahraje inzerát na inzertní portál.
Realitním makléřem, který se Vám skutečně vyplatí, je zkušený profesionál, který je schopen Vám dobře poradit jak prodat za co nejvíc a s nejmenším rizikem a hlavně je Vás schopen obratně provést celým realitním obchodem.