Prodej - dům/vila, 1 350 m²
Louny
16 900 000 KčProdej - dům/vila, 1 350 m²
Louny
Prodej domu a bytového domu v Žatci
INFORMACE K DOMU:
Dům prošel kompletní rekonstrukcí včetně zateplení, nové střechy a fasády, což zajišťuje moderní a úsporné bydlení. Je napojen na Žateckou teplárenskou, což přináší nízké provozní náklady. Dispozice domu nabízí široké možnosti využití. V suterénu se nachází kuchyňka, koupelna, WC, dvě místnosti a technické zázemí (vytápění ze Žatecké teplárenské. Přízemí tvoří byt 2+1 se dvěma pokoji, kuchyní, koupelnou s vanou, samostatným WC a spíží. V podkroví je další byt s kuchyní spojenou s obývacím pokojem, WC, koupelnou se sprchovým koutem a dvěma samostatnými místnostmi. K domu náleží také garáž.
Díky svému uspořádání je dům vhodný jak pro vícegenerační bydlení, tak i pro kombinaci bydlení s podnikáním. Zároveň můžete jednotky pronajímat jen pronajímat.
INFORMACE K BUDOUCÍMU BYTOVÉMU DOMU SE STAVEBNÍM POVOLENÍM NA 16 BYTŮ:
Objekt nabízí v současné chvíli 2.NP, příčemž v 1.NP byl využíván k účelům výroby a další prostory sloužily jako garáže, zatímco 2.NP bylo využíváno převážně k potřebám kancelářským.
V současné chvíli byl objekt v územním plánu změněn na bytový dům, přičemž součástí prodeje je také projekt společně se stavebním povolením. Projekt počítá s nástavbou 3.NP, jenž poskytne budoucímu majiteli celkem 16 bytových jednotek o dispozicích 1+KK, 2+KK, 2+1 a 3+KK. Výměrou se byty pohybují v rozmezí od 39,9 m2 – 95,2 m2. Celková plocha bytů činí 1000 m2.
V 1.NP se počítá s pěti byty o dispozicích – 1+KK, 2+KK, 2+1, 1+KK, 1+KK
V 2.NP se počítá se sedmi byty o dispozicích – 3+KK, 1+KK, 1+KK, 3+KK, 2+KK, 1+KK, 1+KK
Ve 3.NP se počítá se čtyřmi byty o dispozicích - 3+KK, 3+KK, 2+KK, 3+KK.
Z největší bytové jednotky o rozloze 95,2 m2 ve 3.NP je možné vybudovat vstup na terasu s výhledem k okolí.
V 1.NP v pravé části budou dále vybudovány dvě společné kolárny a kočárkárny se samostatnými vstupy. Dále se v objektu bude nacházet nebytový prostor se samostatným vstupem z ulice skládající se z prodejny, skladu a toalety. Celková plocha těchto prostor bude činit 55,4 m2. Komerční část a obytná část nebude průchozí.
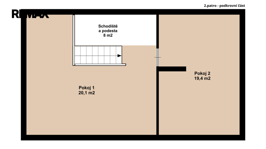
Pro lepší představivost přikládám výkresy jednotlivých nadzemních podlaží z projektové dokumentace, které Vám lépe představí jednotlivá uspořádání bytových jednotek.
V projektu je zakomponováno 12 parkovacích stání přímo u domu, přičemž dalších 14 parkovacích stání vznikne v objektu, který se nachází v dochozí vzdálenosti.
Bytový dům bude napojen na veškeré inženýrské sítě, přičemž jeho vytápění bude zajištěno dálkovým horkovodem ze Žatecké teplárenské.
V případě, že Vás tato nabídka zajímá, zavolejte mi nebo napište a domluvte si prohlídku ještě dnes.
| Cena: | 16 900 000 Kč |
| Datum k nastěhování: | 09.10.2024 |
| Číslo zakázky: | REALITYMIX-409483 |
Podrobné informace
- Poloha objektu: samostatný
- Druh objektu: smíšená
- Stav objektu: dobrý
- Počet podlaží objektu: 2
- Typ domu: patrový
- Zastavěná plocha: 700 m²
- Plocha parcely: 1427 m²
- Užitná plocha: 1350 m²
- Umístění objektu: klidná část obce
- Elektřina: Elektro - 230 V
- Voda: Voda - dálkový vodovod
- Odpad: Kanalizace
- Energetická náročnost budovy: G - Mimořádně nehospodárná
- Energetický ukazatel podle vyhlášky: č. 264/2020 Sb.
Právní rádce
-
Detail
V tomto článku shrneme nejdůležitější věci, které byste si měli promyslet, pokud se chystáte prodat svou nemovitost a chcete, abyste s kupujícím nemusel následně řešit vzniklé problémy.
Jako prodávající nesete rizika spojená nejen se samotným obchodem, ale i se stavem nemovitosti v době prodeje a pro minimalizaci rizik, je dobré se zamyslet nad uvedenými oblastmi.
-
Detail
Realitní makléř má své nezastupitelné místo v realitním obchodu. Realitním makléřem nemyslím nevzdělané jelito, které absolvovalo dvoudenní školení a ví, jak se nahraje inzerát na inzertní portál.
Realitním makléřem, který se Vám skutečně vyplatí, je zkušený profesionál, který je schopen Vám dobře poradit jak prodat za co nejvíc a s nejmenším rizikem a hlavně je Vás schopen obratně provést celým realitním obchodem.