Prodej - dům/vila, 123 m²
Martinov, Praha-východ
14 500 000 KčProdej - dům/vila, 123 m²
Martinov, Praha-východ
Moderní pasivní dům 5+kk s FVE 8kWh, baterií 11,6 kWh, wallboxem a parkováním až pro 5 aut.
Nemovitost byla postavena v pasivním režimu se státní dotací Zelená úsporám (vázanost dotace na 10 let) a disponuje průkazem PENB v třídě A podle tehdejší legislativy.
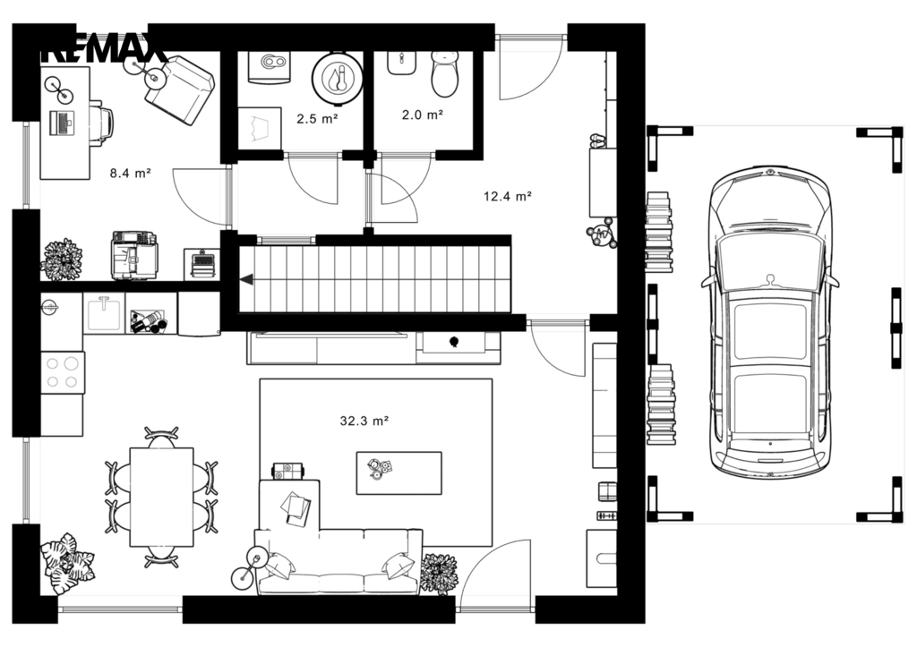
Dům o dispozici 5+kk a výměře 123 m² stojí na pozemku 530 m² a nabízí velmi promyšlenou konstrukci: sedlovou plechovou střechu, cihlové zdivo Heluz 25 a kvalitní zateplení 20 cm polystyrenu. Plastová okna s trojskly jsou doplněna ochrannými sítěmi, v horním patře vnitřními žaluziemi, v celém přízemí a ve dvou ložnicích v horním patře navíc elektricky ovládanými roletami. V interiéru se střídají dlažby a laminátové podlahy.
Energetické řešení domu je jedním z jeho největších benefitů. Veškeré vyrobené teplo je akumulováno do bojleru o objemu 123 litrů. O vytápění se stará kombinace radiátorů, klimatizace, peletových kamen s napojením na bojler a samozřejmě také rekuperace vzduchu. Klimatizace byla instalována v roce 2023. Celý systém doplňuje moderní fotovoltaika z roku 2024 — 16 solárních panelů o celkovém výkonu 8kWh , baterie 11,6 kWh a wallbox 11kWh, vše od značky Solax. Díky tomu činily celkové roční provozní náklady za minulý rok pouhých 22 000 Kč, a to včetně dobíjení auta. Náklady na vodu jsou přibližně 500 Kč na dospělou osobu.
Dům je napojen na obecní vodu, elektřinu a tlakovou kanalizaci. Internet je řešen bezdrátově, plyn v lokalitě není. Parkování je komfortní — na vlastním pozemku lze zaparkovat 4 až 5 vozidel, další místa jsou k dispozici před domem. Orientace domu na východ, jih a západ zajišťuje dostatek světla po celý den. Součástí zahrady je také praktický zahradní domek, terasa, pergola a přístřešek na auta vč. dalšího úložného prostoru.
Z interiéru zůstává plně vybavená kuchyňská linka a vestavěné skříně. Velkou přidanou hodnotou jsou také velmi dobré sousedské vztahy v celé ulici — funguje zde aktivní sousedská skupina.
Pokud hledáte úsporný útulný dům s velmi nízkými provozními náklady a příjemnou komunitou, toto je nabídka, kterou rozhodně doporučuji vidět osobně.
Prohlídky se budou konat po předchozí telefonické či e-mailové dohodě.
Dovolujeme si upozornit, že v případě více vážných zájemců může být nemovitost prodána nejlepší nabídce.
| Cena: | 14 500 000 Kč |
| Číslo zakázky: | REALITYMIX-428601 |
Podrobné informace
- Poloha objektu: samostatný
- Druh objektu: cihlová
- Stav objektu: novostavba
- Počet podlaží objektu: 2
- Typ domu: patrový
- Zastavěná plocha: 80 m²
- Plocha parcely: 530 m²
- Užitná plocha: 123 m²
- Umístění objektu: okraj obce
- Doprava: silnice, autobus
- Komunikace: dlážděná
- Elektřina: Elektro - 230 V
- Voda: Voda - dálkový vodovod
- Telekomunikace: Internet
- Energetická náročnost budovy: A - Mimořádně úsporná
- Energetický ukazatel podle vyhlášky: č. 78/2013 Sb.
Právní rádce
-
Detail
V tomto článku shrneme nejdůležitější věci, které byste si měli promyslet, pokud se chystáte prodat svou nemovitost a chcete, abyste s kupujícím nemusel následně řešit vzniklé problémy.
Jako prodávající nesete rizika spojená nejen se samotným obchodem, ale i se stavem nemovitosti v době prodeje a pro minimalizaci rizik, je dobré se zamyslet nad uvedenými oblastmi.
-
Detail
Realitní makléř má své nezastupitelné místo v realitním obchodu. Realitním makléřem nemyslím nevzdělané jelito, které absolvovalo dvoudenní školení a ví, jak se nahraje inzerát na inzertní portál.
Realitním makléřem, který se Vám skutečně vyplatí, je zkušený profesionál, který je schopen Vám dobře poradit jak prodat za co nejvíc a s nejmenším rizikem a hlavně je Vás schopen obratně provést celým realitním obchodem.
Mapa
Podobné nemovitosti
Prodej - dům/vila, 160 m²
Ondřejovská, Struhařov, Praha-východ
15 490 000 Kč
Prodej - dům/vila, 183 m²
Výletní, Brandýs nad Labem, Praha-východ
11 500 000 Kč
Prodej - dům/vila, 200 m²
Haškova, Radošovice, Praha-východ
14 900 000 Kč
Prodej - dům/vila, 579 m²
Českobrodská, Kostelec nad Černými lesy, Praha-východ
15 000 000 Kč