Pronájem - výrobní prostor, 610 m²
Vsetín
69 000 Kč (za měsíc)Pronájem - výrobní prostor, 610 m²
Vsetín
69 000 Kč
(za měsíc)
G
Mimořádně nehospodárná
Výrobní a skladovací hala s manipulační plochou ve Vsetíně, Rokytnici
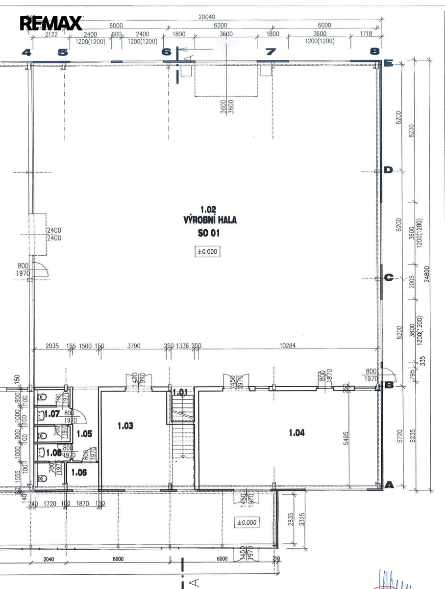
Nabízíme k pronájmu moderní výrobní nebo skladovou halu o zastavěné ploše 500 m² + kancelářské zázemí o výměře 110 m² ve 2. nadzemním podlaží, která se nachází v zavedeném průmyslovém areálu na okraji Vsetína - Rokytnice, výpadovka směr Zlín.
K dispozici je také asfaltová manipulační plocha před budovou o výměře 400 m2.
Hala je vhodná pro lehkou výrobu, montáž, kompletaci i skladování. Prostor je světlý, má vysoké stropy (čistá výška 5,1 m) a odolnou betonovou podlahu s vysokou nosností. Vstupní vrata o rozměrech 3,6 x 3,6 m.
Kanceláře jsou moderní, vybavené a nabízí příjemné pracovní prostředí s výhledem do haly i venkovního prostoru.
Objekt je postaven ze sendvičových panelů, které zajišťují výborné izolační vlastnosti. Vytápění je řešeno samostatnou kotelnou s vlastním plynovým kotlem. V hale je k dispozici sociální zázemí + menší sklady. Nemovitost má samostatné měření elektřiny, plynu i vody.
Areál je oplocený, monitorovaný kamerovým systémem a vjezd je zajištěn elektricky ovládanou bránou. Příjezd je bezproblémový i pro nákladní dopravu.
Velkou výhodou je napojení na vlastní trafostanici, která umožňuje i vyšší odběry elektrické energie. Prostory jsou k dispozici ihned a případné úpravy lze řešit individuálně dle potřeb nájemce.
Pro více informací kontaktujte makléře nabídky. Pronajímající si vyhrazuje právo vybrat nájemce na základě jím zvolených kritérií.
K dispozici je také asfaltová manipulační plocha před budovou o výměře 400 m2.
Hala je vhodná pro lehkou výrobu, montáž, kompletaci i skladování. Prostor je světlý, má vysoké stropy (čistá výška 5,1 m) a odolnou betonovou podlahu s vysokou nosností. Vstupní vrata o rozměrech 3,6 x 3,6 m.
Kanceláře jsou moderní, vybavené a nabízí příjemné pracovní prostředí s výhledem do haly i venkovního prostoru.
Objekt je postaven ze sendvičových panelů, které zajišťují výborné izolační vlastnosti. Vytápění je řešeno samostatnou kotelnou s vlastním plynovým kotlem. V hale je k dispozici sociální zázemí + menší sklady. Nemovitost má samostatné měření elektřiny, plynu i vody.
Areál je oplocený, monitorovaný kamerovým systémem a vjezd je zajištěn elektricky ovládanou bránou. Příjezd je bezproblémový i pro nákladní dopravu.
Velkou výhodou je napojení na vlastní trafostanici, která umožňuje i vyšší odběry elektrické energie. Prostory jsou k dispozici ihned a případné úpravy lze řešit individuálně dle potřeb nájemce.
Pro více informací kontaktujte makléře nabídky. Pronajímající si vyhrazuje právo vybrat nájemce na základě jím zvolených kritérií.
| Cena: | 69 000 Kč / (za měsíc) |
| Poznámka: | + DPH a energie |
| Datum k nastěhování: | 01.04.2026 |
| Číslo zakázky: | REALITYMIX-435663 |
Podrobné informace
- Plocha kanceláří: 610 m²
- Druh objektu: skeletová
- Stav objektu: velmi dobrý
- Druh prostor: Výrobní
- Umístění objektu: okraj obce
- Doprava: silnice, autobus
- Komunikace: asfaltová
- Elektřina: Elektro - 230 V, Elektro - 400 V
- Voda: Voda - dálkový vodovod
- Odpad: Kanalizace
- Energetická náročnost budovy: G - Mimořádně nehospodárná
- Energetický ukazatel podle vyhlášky: č. 264/2020 Sb.
Mapa
* Umístění na mapě je na základě GPS informací dodaných realitní kanceláří.
* Pozice na mapě je pouze orientační.
Podobné nemovitosti
Pronájem - výrobní prostor, 8 000 m²
Zašovská, Krásno nad Bečvou, Vsetín
Cena na vyžádání
Pronájem - skladovací prostor, 15 800 m²
Zašovská, Krásno nad Bečvou, Vsetín
Cena na vyžádání
Pronájem - skladovací prostor, 5 000 m²
Zašovská, Krásno nad Bečvou, Vsetín
Cena na vyžádání
Pronájem - obchodní prostor, 228 m²
Sychrov, Vsetín
26 990 Kč za měsíc