Prodej bytu, 3+kk, 72 m²
Jirchářská, Vimperk II, Prachatice
4 071 000 KčProdej bytu, 3+kk, 72 m²
Jirchářská, Vimperk II, Prachatice
AKCE PREMIUM: UŽ NEČEKEJTE! Rezidence Volyňka, Vimperk, byt 3+KK Ihned k nastěhování
NEJLEPŠÍ CENA ZA NOVÉ BYDLENÍ VE VIMPERKU! Jedinečné 3+KK v Rezidenci Volyňka .
STOP ZVYŠOVÁNÍ CEN! Nenechte si ujít nejvýhodnější nabídku v celém projektu Rezidence Volyňka. Máte jedinečnou šanci získat moderní, zrekonstruovaný byt k okamžitému nastěhování za PREMIUM CENU, která se již nebude opakovat!
Majitel spouští časově omezenou prodejní akci:
PREMIUM CENA: JEN 59 000 Kč/m²!
Podmínky pro získání slevy
Tato exkluzivní nabídka platí pouze pro nejrychlejší zájemce a je striktně podmíněna:
1. Podpisem kupní smlouvy
2. Složením celé kupní ceny
A to vše nejpozději do: 31. LEDNA 2026!
Proč jednat IHNED?
FINANČNÍ JISTOTA: Fixní cena 59 000 Kč/m² je výrazně pod standardní tržní hodnotou nového bydlení v lokalitě. Je to transparentní úspora.
K OKAMŽITÉMU UŽÍVÁNÍ: Byty jsou dokončené, zkolaudované a připravené k nastěhování. Žádné čekání na dokončení stavby, bydlíte hned!
KVALITA A PRESTIGE: Získáváte byt v unikátním projektu Rezidence Volyňka (bývalé tiskárny), který kombinuje industriální historii s moderním rezidenčním komfortem, přímo u řeky Volyňky a na dohled od Šumavy.
Neodkládejte prohlídku! Volejte dnes a zarezervujte si svůj byt, než ho získá někdo jiný za PREMIUM CENU 59 000 Kč/m²!
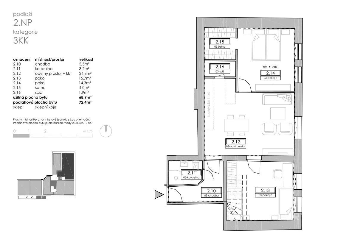
Představujeme Vám další volný byt z oblíbeného developerského projektu "Rezidence Volyňka" v klidné části Vimperku. Jedná se o byt s dispozicí 3+KK a velkorysou užitnou plochou 69 m², který je připraven k okamžitému předání klíčů.
Tento byt je ideální volbou pro mladé rodiny, páry hledající moderní zázemí, nebo pro ty, kteří touží po klidném bydlení v šumavském podhůří s plnou občanskou vybaveností.
TOP 3 Důvody pro koupi:
FINANČNÍ BONUS NA VYBAVENÍ: Jako speciální nabídku získává nový majitel slevu 30 % v majitelově nábytkářském studiu, kterou lze využít na novou kuchyňskou linku a kompletní zařízení interiéru na míru. To Vám výrazně sníží počáteční náklady!
IHNED K NASTĚHOVÁNÍ: Nemusíte čekat na dokončení stavby – stačí podepsat smlouvu, vybrat nábytek a můžete bydlet.
Detaily bytu a domu
Byt se nachází v nově dokončené Rezidenci Volyňka. Je navržen s důrazem na funkčnost a moderní standardy:
Lokalita a okolí
Rezidence Volyňka je situována v klidné části Vimperku, avšak s rychlou dostupností do centra.
Vimperk: Nabízí veškerou občanskou vybavenost: školy, školky, obchody, zdravotnická zařízení.
Příroda: Lokalita je perfektním výchozím bodem pro milovníky Šumavy, turistiky a cyklistiky. Řeka Volyňka a okolní lesy jsou na dosah ruky.
Nenechte si ujít poslední příležitost k nákupu bytu v tomto úspěšném projektu. Financování hypotékou je samozřejmě možné.
Pro více informací a sjednání prohlídky kontaktujte:
| Cena: | 4 071 000 Kč |
| Datum k nastěhování: | 02.01.2026 |
| Dispozice/podlahová plocha: | 3+kk/72 m² |
| Číslo zakázky: | REALITYMIX-969398 |
Podrobné informace
- Dispozice bytu: 3+kk
- Číslo podlaží v domě: 2
- Počet podlaží objektu: 3
- Celková podlahová plocha: 72 m²
- Druh objektu: cihlová
- Stav objektu: po rekonstrukci
- Vlastnictví: osobní
- Doprava: vlak, silnice
- Elektřina: Elektro - 230 V
- Voda: Zdroj pro celý objekt, Voda - dálkový vodovod
- Telekomunikace: Internet
- Plyn: Plynovod
- Odpad: Kanalizace
- Energetická náročnost budovy: G - Mimořádně nehospodárná
Právní rádce
-
Detail
V tomto článku shrneme nejdůležitější věci, které byste si měli promyslet, pokud se chystáte prodat svou nemovitost a chcete, abyste s kupujícím nemusel následně řešit vzniklé problémy.
Jako prodávající nesete rizika spojená nejen se samotným obchodem, ale i se stavem nemovitosti v době prodeje a pro minimalizaci rizik, je dobré se zamyslet nad uvedenými oblastmi.
-
Detail
Realitní makléř má své nezastupitelné místo v realitním obchodu. Realitním makléřem nemyslím nevzdělané jelito, které absolvovalo dvoudenní školení a ví, jak se nahraje inzerát na inzertní portál.
Realitním makléřem, který se Vám skutečně vyplatí, je zkušený profesionál, který je schopen Vám dobře poradit jak prodat za co nejvíc a s nejmenším rizikem a hlavně je Vás schopen obratně provést celým realitním obchodem.