Prodej - dům/vila, 102 m²
Masarykova, Velké Popovice, Praha-východ
8 400 000 KčProdej - dům/vila, 102 m²
Masarykova, Velké Popovice, Praha-východ
Prodej rodinného domu 102 m2 Masarykova, Velké Popovice
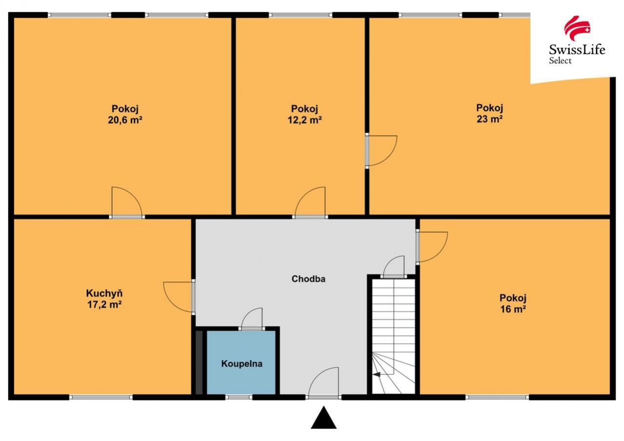
Jedná se o zděnou stavbu s dispozicí 4+1. Podlahová plocha obytné části v přízemí je 102,19 m, další velký potenciál nabízí půda o výměře 95 m, kde je možné vybudovat další obytné místnosti. Celková výměra pozemku je 656 m.
Nemovitost je určena k rekonstrukci, nicméně některé prvky již byly v minulých letech obnoveny plastová okna i střecha byly rekonstruovány přibližně před 12 lety. Vytápění zajišťuje plynový kotel s rozvodem do radiátorů. Nemovitost je napojena na elektřinu, plyn a veřejnou kanalizaci, k dispozici je také vlastní studna.
Dům nabízí ideální zázemí pro rodinu a díky své poloze představuje ideální příležitost pro ty, kteří chtějí bydlet na dosah Prahy, a přesto mít vlastní zahradu a dostatek prostoru. V obci se nachází mateřská i základní škola, obchody, sportoviště, dětská hřiště i známý pivovar.
Pro více informací nebo sjednání prohlídky nás neváhejte kontaktovat. Rádi Vám zajistím také financování koupě této nemovitosti.
| Cena: | 8 400 000 Kč |
| Poznámka: | Včetně provize RK a právních služeb. |
| Číslo zakázky: | REALITYMIX-25331 |
Podrobné informace
- Poloha objektu: samostatný
- Druh objektu: cihlová
- Stav objektu: před rekonstrukcí
- Počet podlaží objektu: 2
- Typ domu: patrový
- Zastavěná plocha: 141 m²
- Plocha parcely: 656 m²
- Užitná plocha: 102 m²
- Umístění objektu: centrum obce
- Doprava: silnice, autobus
- Odpad: Kanalizace
- Energetická náročnost budovy: G - Mimořádně nehospodárná
Právní rádce
-
Detail
V tomto článku shrneme nejdůležitější věci, které byste si měli promyslet, pokud se chystáte prodat svou nemovitost a chcete, abyste s kupujícím nemusel následně řešit vzniklé problémy.
Jako prodávající nesete rizika spojená nejen se samotným obchodem, ale i se stavem nemovitosti v době prodeje a pro minimalizaci rizik, je dobré se zamyslet nad uvedenými oblastmi.
-
Detail
Realitní makléř má své nezastupitelné místo v realitním obchodu. Realitním makléřem nemyslím nevzdělané jelito, které absolvovalo dvoudenní školení a ví, jak se nahraje inzerát na inzertní portál.
Realitním makléřem, který se Vám skutečně vyplatí, je zkušený profesionál, který je schopen Vám dobře poradit jak prodat za co nejvíc a s nejmenším rizikem a hlavně je Vás schopen obratně provést celým realitním obchodem.