Prodej - dům/vila, 300 m²
Úzká, Vejprty, Chomutov
3 970 000 KčProdej - dům/vila, 300 m²
Úzká, Vejprty, Chomutov
Prodej domu Vejprty
Hledáte nemovitost, která není jen „další dům“, ale skutečná investiční příležitost s příběhem? Právě jste ji našli.
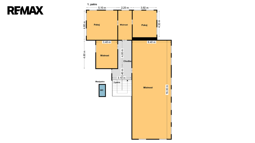
Tento třípatrový dům ve Vejprtech pochází pravděpodobně již z první poloviny 19. století, kdy město zažívalo rozmach řemesel a průmyslu. Dům byl původně využíván jako obytný prostor spojený s dílnami, což bylo pro tuto lokalitu typické. Spodní část domu historicky sloužila jako pracovní zázemí a tento charakter si zachovává dodnes.
Nemovitost nabízí široké možnosti využití a představuje ideální příležitost pro investory, developery i podnikatele. Díky své dispozici umožňuje vytvořit bytový dům s více jednotkami, kombinaci bydlení a podnikání, školící či vzdělávací prostory, ordinace, kanceláře nebo obchodní prostory v přízemí. Vhodná je také pro řemeslné dílny, ateliéry nebo menší výrobu. Objekt lze koncipovat jako multifunkční celek s komerční částí v přízemí a bytovými jednotkami ve vyšších podlažích.
Dům nabízí tři podlaží s velkorysým prostorem, zachovaný historický charakter a možnost kompletní rekonstrukce dle vlastních představ. Velkou výhodou je také dostatek prostoru pro parkování a celková flexibilita využití.
Vejprty jsou město s bohatou historií na hranici s Německem a s rostoucím potenciálem pro bydlení, podnikání i přeshraniční spolupráci. Lokalita tak nabízí zajímavé příležitosti jak pro vlastní realizaci, tak pro investiční záměry.
Takové nemovitosti se na trhu objevují jen zřídka. Spojují v sobě historickou hodnotu, velkorysý prostor, variabilní využití a výrazný investiční potenciál. Dům na adrese Úzká 402 není jen nemovitost, ale příležitost vytvořit něco výjimečného – ať už pro bydlení, podnikání, nebo jejich kombinaci.
Pro více informací a domluvení prohlídky mě neváhejte kontaktovat. Rádi vám představíme potenciál této jedinečné nemovitosti osobně. Prodávající si vyhrazuje právo vybrat kupujícího na základě jím zvolených kritérií.
| Cena: | 3 970 000 Kč |
| Datum k nastěhování: | 20.03.2026 |
| Číslo zakázky: | REALITYMIX-435082 |
Podrobné informace
- Poloha objektu: řadový
- Druh objektu: cihlová
- Stav objektu: dobrý
- Počet podlaží objektu: 1
- Typ domu: přízemní
- Zastavěná plocha: 257 m²
- Plocha parcely: 721 m²
- Zahrada: 100 m²
- Užitná plocha: 300 m²
- Sklep: 80 m²
- Umístění objektu: centrum obce
- Doprava: vlak, silnice, MHD, autobus
- Komunikace: betonová
- Elektřina: Elektro - 230 V
- Voda: Voda - dálkový vodovod
- Odpad: Kanalizace
- Energetická náročnost budovy: G - Mimořádně nehospodárná
- Energetický ukazatel podle vyhlášky: č. 264/2020 Sb.
Právní rádce
-
Detail
V tomto článku shrneme nejdůležitější věci, které byste si měli promyslet, pokud se chystáte prodat svou nemovitost a chcete, abyste s kupujícím nemusel následně řešit vzniklé problémy.
Jako prodávající nesete rizika spojená nejen se samotným obchodem, ale i se stavem nemovitosti v době prodeje a pro minimalizaci rizik, je dobré se zamyslet nad uvedenými oblastmi.
-
Detail
Realitní makléř má své nezastupitelné místo v realitním obchodu. Realitním makléřem nemyslím nevzdělané jelito, které absolvovalo dvoudenní školení a ví, jak se nahraje inzerát na inzertní portál.
Realitním makléřem, který se Vám skutečně vyplatí, je zkušený profesionál, který je schopen Vám dobře poradit jak prodat za co nejvíc a s nejmenším rizikem a hlavně je Vás schopen obratně provést celým realitním obchodem.