Pronájem bytu, 3+1, 82 m²
Nová, Ústí nad Labem-Střekov, Ústí nad Labem
12 000 Kč (za měsíc)Pronájem bytu, 3+1, 82 m²
Nová, Ústí nad Labem-Střekov, Ústí nad Labem
12 000 Kč
(za měsíc)
D
Méně úsporná
Pronájem bytu 3+1 s lodžií v Ústí nad Labem, 82 m2, Nová - Střekov
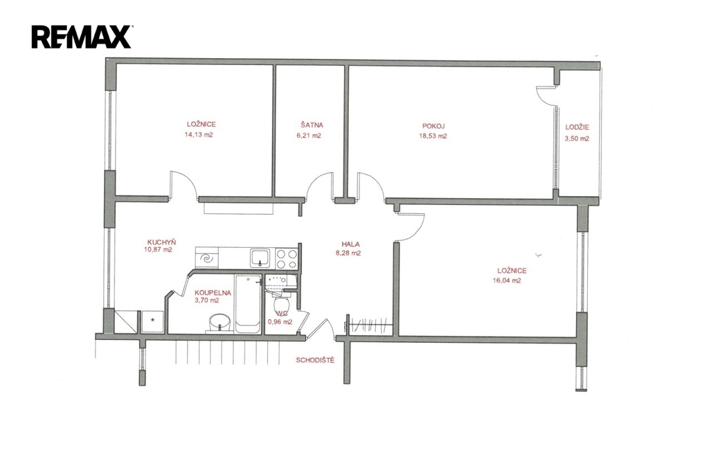
V ústecké čtvrti Střekov, v Nové ulici, nabízíme k pronájmu byt o velikosti 3+1 s lodžií a výměře 82 m². Byt se nachází v sedmém patře zatepleného panelového bytového domu s výtahem. Předností nabídky je velmi dobrý stav prostorného bytu s velkou šatnou, hezký výhled a dobrý poměr cena : velikost a stav bytu.
Cenové podmínky: Měsíční nájemné činí 12 000,- Kč, zálohy na energie a služby: vytápění 1532,- Kč, voda a ohřev vody: podle počtu osob, aktuálně 1530,- Kč + další položky ve výši 177,- Kč (osvětlení společných prostor a úklid chodeb). Smlouvu k odběru elektřiny a plynu si sjednává nájemce sám. Vratná kauce je ve výši dvou měsíčních nájmů, tj. 24 000,- Kč. Rezervační poplatek 4 000,- Kč.
Před kontaktováním makléře ke sjednání prohlídky vyplňte prosím dotazník, který se vám otevře po zkopírování této adresy: https://forms.gle/LFRw2MmpuE6SjtSZ8 do internetového prohlížeče. Makléř se vám po odeslání vyplněného formuláře ozve sám s návrhem času prohlídky. Vyplnění dotazníku je podmínkou pro uskutečnění prohlídky.
Nejbližší prohlídkový den: pátek 24.4.
Byt je ve velmi dobrém stavu. Bytové jádro je zděné, samostatná toaleta s přístupem z předsíně, v bytě je velká šatna (komora) pro uložení věcí. V kuchyni je kuchyňská linka s plynovým sporákem a myčkou nádobí (60 cm). K dispozici je kombinovaná lednice a automatická pračka (na fotografiích v inzerci).
Okna jsou plastová, s izolačními dvojskly. Orientována jsou k jihu a severu. V obytných místnostech a v kuchyni jsou plovoucí podlahy, v koupelně, na toaletě a v části předsíně je položena keramická dlažba. Celková výměra bytu je 82,58 m2, lodžie má výměru 3,5 m2. Byt je částečně vybaven nábytkem, v případě zájmu budoucího nájemce může být v bytě ponechán.
Vnitřní prostory domu jsou čisté, udržované. Zastávka MHD do 5 minut chůze od domu.
Pro více informací a domluvu prohlídky kontaktujte makléře nabídky prostřednictvím výše uvedeného odkazu na dotazník pro zájemce. Těšíme se na Vaši návštěvu!
Pronajímatel má zájem o slušné a pravidelně platící nájemníky.
Pronajímatel požaduje, aby počet osob užívajících byt byl přiměřený k jeho dispozici a výměře.
Pronajímající si vyhrazuje právo vybrat nájemce na základě jím zvolených kritérií.
Cenové podmínky: Měsíční nájemné činí 12 000,- Kč, zálohy na energie a služby: vytápění 1532,- Kč, voda a ohřev vody: podle počtu osob, aktuálně 1530,- Kč + další položky ve výši 177,- Kč (osvětlení společných prostor a úklid chodeb). Smlouvu k odběru elektřiny a plynu si sjednává nájemce sám. Vratná kauce je ve výši dvou měsíčních nájmů, tj. 24 000,- Kč. Rezervační poplatek 4 000,- Kč.
Před kontaktováním makléře ke sjednání prohlídky vyplňte prosím dotazník, který se vám otevře po zkopírování této adresy: https://forms.gle/LFRw2MmpuE6SjtSZ8 do internetového prohlížeče. Makléř se vám po odeslání vyplněného formuláře ozve sám s návrhem času prohlídky. Vyplnění dotazníku je podmínkou pro uskutečnění prohlídky.
Nejbližší prohlídkový den: pátek 24.4.
Byt je ve velmi dobrém stavu. Bytové jádro je zděné, samostatná toaleta s přístupem z předsíně, v bytě je velká šatna (komora) pro uložení věcí. V kuchyni je kuchyňská linka s plynovým sporákem a myčkou nádobí (60 cm). K dispozici je kombinovaná lednice a automatická pračka (na fotografiích v inzerci).
Okna jsou plastová, s izolačními dvojskly. Orientována jsou k jihu a severu. V obytných místnostech a v kuchyni jsou plovoucí podlahy, v koupelně, na toaletě a v části předsíně je položena keramická dlažba. Celková výměra bytu je 82,58 m2, lodžie má výměru 3,5 m2. Byt je částečně vybaven nábytkem, v případě zájmu budoucího nájemce může být v bytě ponechán.
Vnitřní prostory domu jsou čisté, udržované. Zastávka MHD do 5 minut chůze od domu.
Pro více informací a domluvu prohlídky kontaktujte makléře nabídky prostřednictvím výše uvedeného odkazu na dotazník pro zájemce. Těšíme se na Vaši návštěvu!
Pronajímatel má zájem o slušné a pravidelně platící nájemníky.
Pronajímatel požaduje, aby počet osob užívajících byt byl přiměřený k jeho dispozici a výměře.
Pronajímající si vyhrazuje právo vybrat nájemce na základě jím zvolených kritérií.
| Cena: | 12 000 Kč / (za měsíc) |
| Poznámka: | cenové podmínky nájmu jsou uvedeny v textu inzerátu |
| Datum k nastěhování: | 01.05.2026 |
| Dispozice/podlahová plocha: | 3+1/82 m² |
| Číslo zakázky: | REALITYMIX-437711 |
Podrobné informace
- Dispozice bytu: 3+1
- Číslo podlaží v domě: 8
- Počet podlaží objektu: 8
- Užitná plocha: 79 m²
- Celková podlahová plocha: 82 m²
- Druh objektu: panelová
- Stav objektu: velmi dobrý
- Vlastnictví: osobní
- Lodžie: 3 m²
- Vybaveno: ano
- Umístění objektu: sídliště
- Doprava: vlak, dálnice, silnice, MHD, autobus
- Elektřina: Elektro - 230 V
- Voda: Voda - dálkový vodovod
- Telekomunikace: Internet
- Plyn: Plynovod
- Odpad: Kanalizace
- Energetická náročnost budovy: D - Méně úsporná
- Ukazatel energetické náročnosti budovy: 105 kWh/m²
- Energetický ukazatel podle vyhlášky: č. 264/2020 Sb.
Mapa
* Umístění na mapě je na základě GPS informací dodaných realitní kanceláří.
* Pozice na mapě je pouze orientační.
Podobné nemovitosti
Pronájem bytu, 3+1, 66 m²
Kamenná, Ústí nad Labem-Střekov, Ústí nad Labem
11 000 Kč za měsíc
Pronájem bytu, 1+1, 45 m²
Šaldova, Ústí nad Labem-město, Ústí nad Labem
8 500 Kč za měsíc
Pronájem bytu, 1+1, 36 m²
Větrná, Ústí nad Labem-Severní Terasa, Ústí nad Labem
11 000 Kč za měsíc
Pronájem bytu, 1+kk, 22 m²
Hoření, Ústí nad Labem-město, Ústí nad Labem
8 000 Kč za měsíc