Prodej - obchodní prostor, 1 705 m²
Palackého, Úpice, Trutnov
4 999 999 KčProdej - obchodní prostor, 1 705 m²
Palackého, Úpice, Trutnov
Prodej komerčních prostory 1705m2 v Úpici
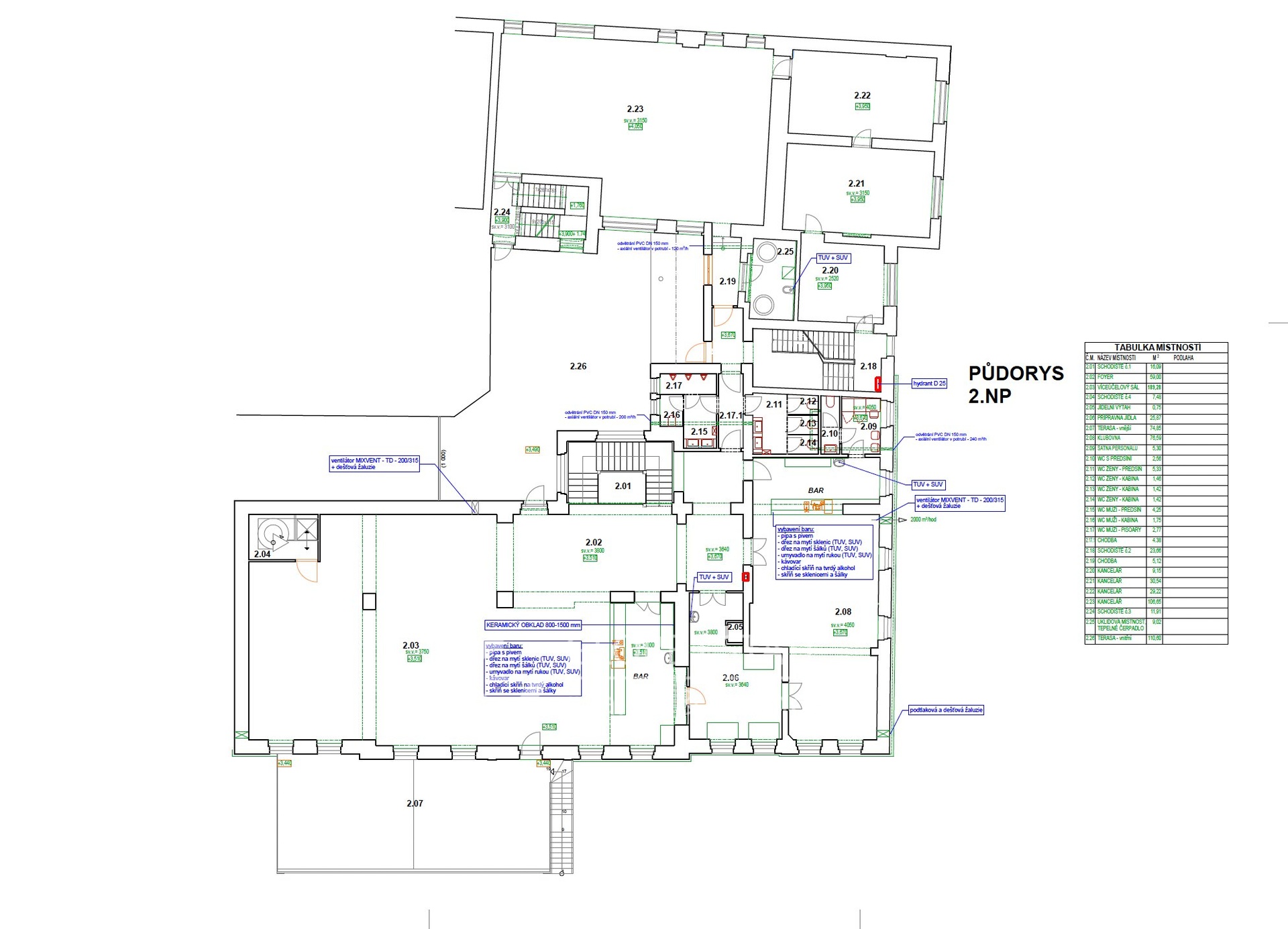
V současné době jsou prostory flexibilně využívány pro skladování nebo jako místo pro pořádání kulturních akcí, což dokazuje jejich okamžitou adaptabilitu. Druhé nadzemní podlaží bylo částečně zrekonstruováno právě pro tyto účely a nabízí moderní vzduchotechniku, kompletně zrekonstruované sociální zařízení a osazené požární hydranty, zajišťující bezpečnost a komfort pro návštěvníky. Tato již existující infrastruktura poskytuje okamžitou hodnotu a možnost generovat příjem, zatímco plánujete další rozvoj.
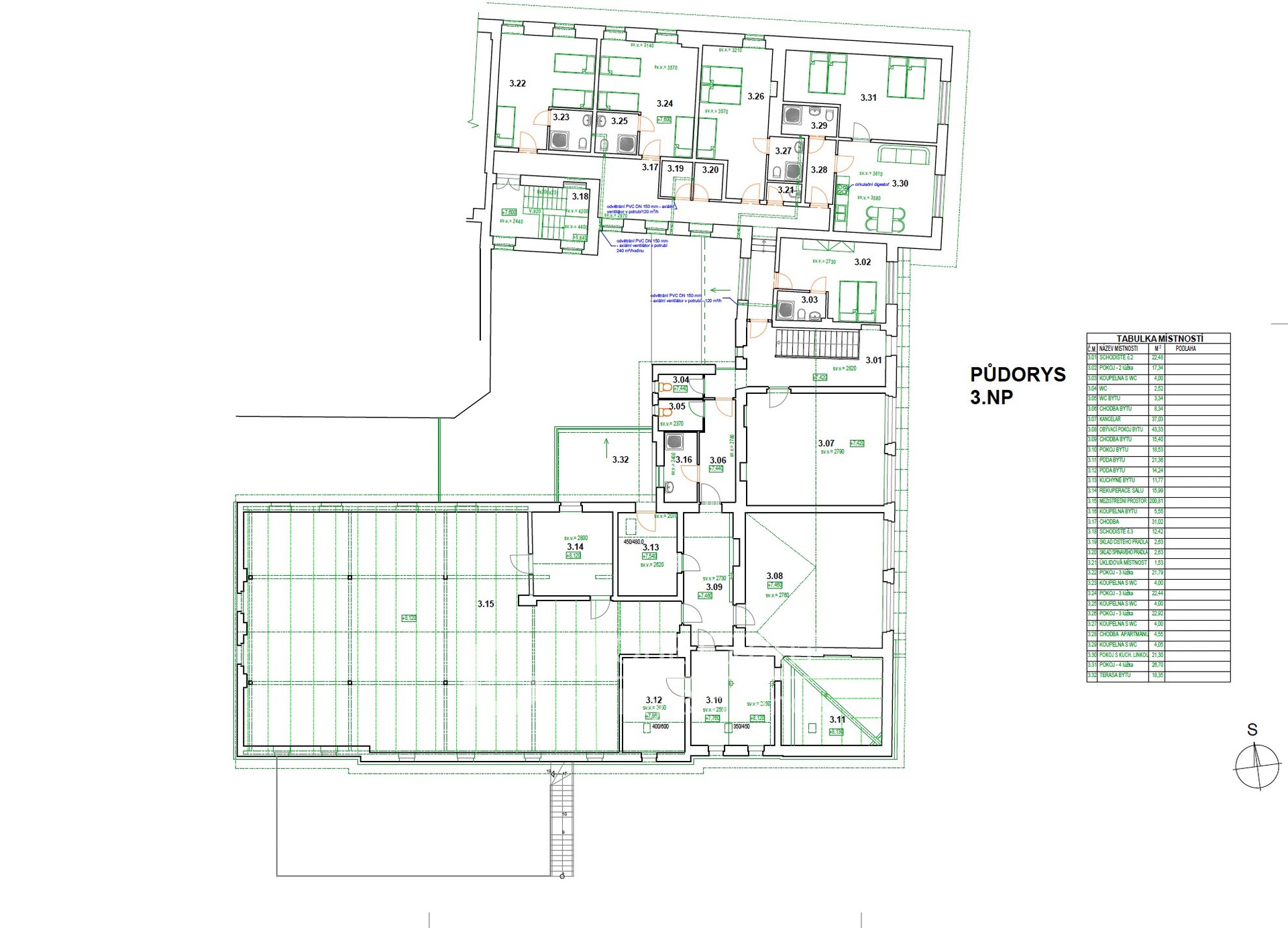
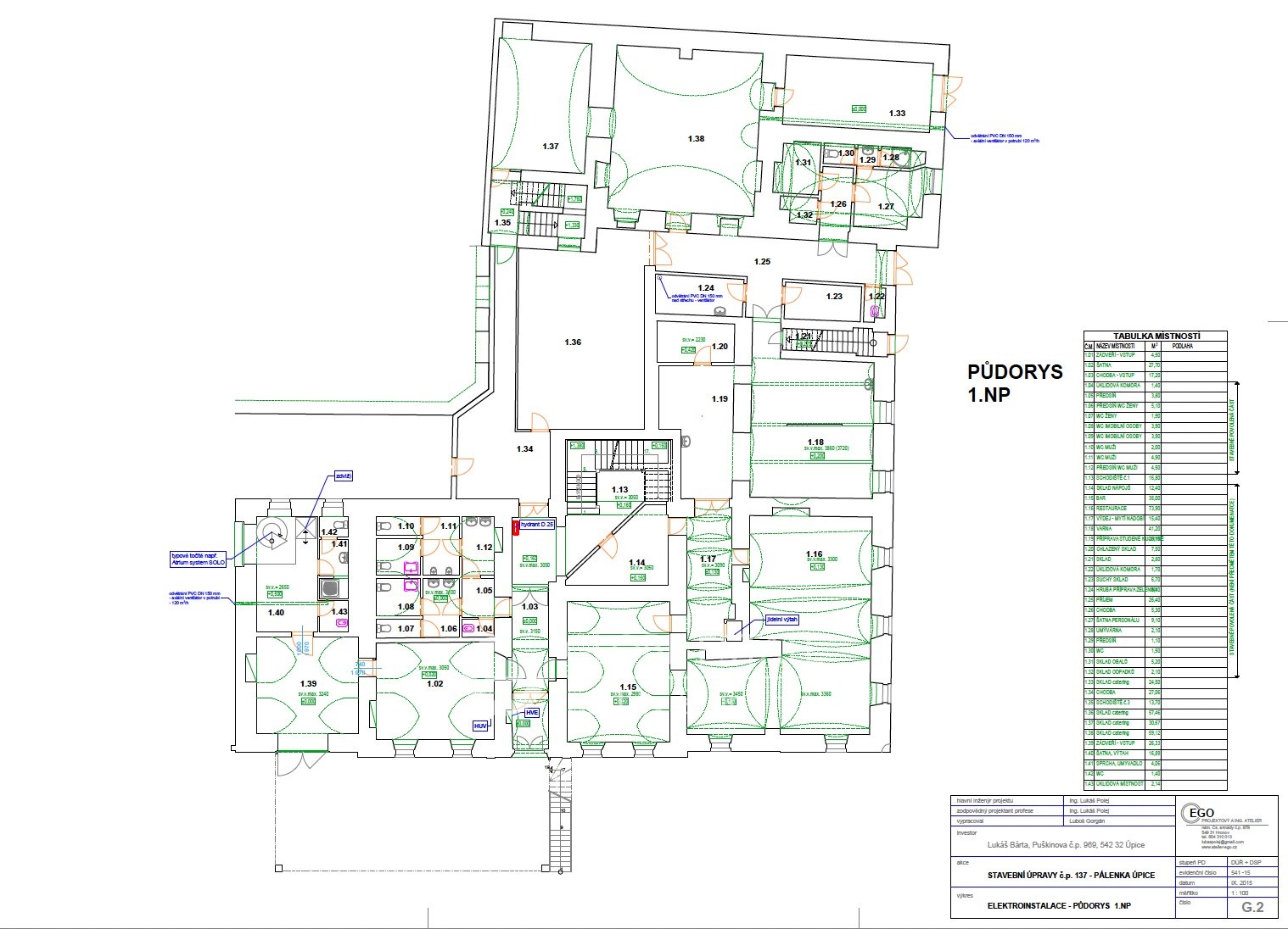
Kromě stávajícího stavu je součástí prodeje i kompletní projektová dokumentace, která detailně rozpracovává potenciál budovy. Podle tohoto projektu se v přízemí může nacházet atraktivní restaurace, v prvním nadzemním podlaží je pak plánován moderní bar, klubovna a veškeré potřebné zázemí. Druhé nadzemní podlaží je ideálně navrženo pro vytvoření komfortních bytových jednotek, což z objektu činí ideální mix pro komerční i rezidenční využití. Tato flexibilita otevírá široké spektrum investičních strategií, od pronájmu komerčních prostor po prodej bytů.
Tato nemovitost představuje mimořádnou šanci pro vizionáře a investory, kteří hledají projekt s pevným základem a jasnou cestou k budoucímu zhodnocení. S již provedenou sanací a připravenou projektovou dokumentací se jedná o investici s obrovským potenciálem v žádané lokalitě. Neváhejte a objevte všechny možnosti, které tento unikátní objekt v Úpici nabízí.
Kontaktujte nás pro bližší informace a prohlídku, abyste si mohli představit vaši budoucí úspěšnou realizaci.
| Cena: | 4 999 999 Kč |
| Poznámka: | včetně právního a hypotečního servisu, včetně provize RK |
| Číslo zakázky: | REALITYMIX-00226 |
Podrobné informace
- Plocha kanceláří: 1705 m²
- Druh objektu: cihlová
- Stav objektu: dobrý
- Druh prostor: Obchodní
- Ostatní: Parkoviště
- Doprava: silnice, MHD, autobus
- Komunikace: asfaltová
- Elektřina: Elektro - 230 V, Elektro - 400 V
- Telekomunikace: Internet
- Topení: Lokální - elektrické
- Energetická náročnost budovy: G - Mimořádně nehospodárná
Právní rádce
-
Detail
V tomto článku shrneme nejdůležitější věci, které byste si měli promyslet, pokud se chystáte prodat svou nemovitost a chcete, abyste s kupujícím nemusel následně řešit vzniklé problémy.
Jako prodávající nesete rizika spojená nejen se samotným obchodem, ale i se stavem nemovitosti v době prodeje a pro minimalizaci rizik, je dobré se zamyslet nad uvedenými oblastmi.
-
Detail
Realitní makléř má své nezastupitelné místo v realitním obchodu. Realitním makléřem nemyslím nevzdělané jelito, které absolvovalo dvoudenní školení a ví, jak se nahraje inzerát na inzertní portál.
Realitním makléřem, který se Vám skutečně vyplatí, je zkušený profesionál, který je schopen Vám dobře poradit jak prodat za co nejvíc a s nejmenším rizikem a hlavně je Vás schopen obratně provést celým realitním obchodem.