Prodej - dům/vila, 72 m²
Dědkův mlýn, Unhošť, Kladno
6 950 000 KčProdej - dům/vila, 72 m²
Dědkův mlýn, Unhošť, Kladno
SLEVA: Prodej rozestavěného domu se dvěma pozemky – KÚ Unhošť (okres Kladno)
Hledáte místo v přírodě, kde si vytvoříte domov přesně podle sebe a přitom budete za 20 minut v Praze? Nabízíme rozestavěný dům na pozemku o velikosti 1 151 m² v klidné a vyhledávané lokalitě u Dědkova Mlýna v Unhošti.
Nemovitost nabízí nejen soukromí, výhledy do zeleně a velkorysý prostor, ale také možnost dokončení přesně podle vašich představ.
Tato nemovitost představuje ideální kombinaci soukromí, přírody a výborné dostupnosti do Prahy, která je vzdálena pouhých 20 km. Tady nekupujete jen stavbu. Kupujete si místo, kde můžete zpomalit, nadechnout se a vytvořit si domov přesně podle svých představ.
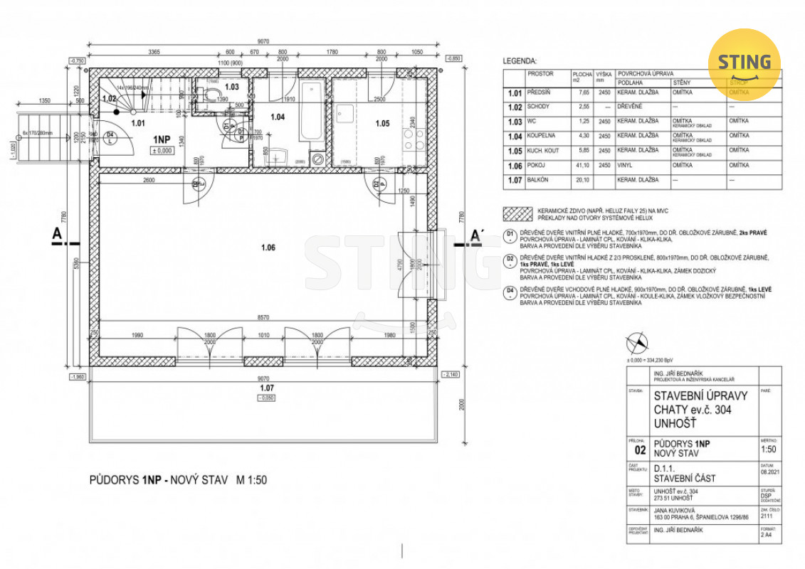
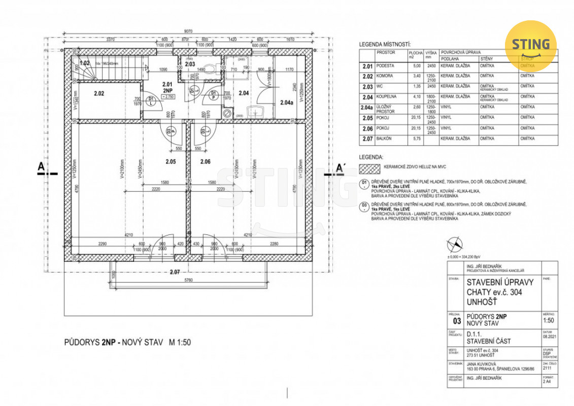
Dům s č. ev. o zastavěné ploše 72 m² je ve fázi hrubé stavby z roku 2022 a disponuje platným stavebním povolením. Nabízí promyšlenou dispozici s důrazem na světlo, výhledy a funkční uspořádání prostoru.
Přízemí je navrženo jako otevřený obytný prostor s přirozeným světlem a výhledem do okolní krajiny, s místem pro kuchyňský kout a koupelnu s toaletou.
V podkroví je připravena dispozice pro dvě ložnice, šatnu a druhou koupelnu.
Nemovitost se nachází na dvou navazujících parcelách:
Hlavní pozemek (467 m²) s rozestavěným domem a dvěma dřevníky a druhý pozemek sloužící jako zahrada a příjezdová cesta.
Součástí je také garáž situovaná ve svahu s přístupem z obecní komunikace.
Inženýrské sítě: studna, dotažené odpady, příprava na ČOV, přívod elektřiny
Pozemky jsou v osobním vlastnictví a přístup zajištěn z obecní komunikace.
Oblast Dědkova Mlýna je dlouhodobě vyhledávaná pro své přírodní okolí, lesy a možnosti aktivního odpočinku. Nabízí klidné prostředí s minimem ruchu a dostatkem soukromí.
Zároveň zde dochází k postupné proměně rekreační oblasti na lokalitu vhodnou pro celoroční bydlení, což zvyšuje dlouhodobý investiční potenciál nemovitosti.
Kontaktujte mě a domluvíme prohlídku.
| Cena: | 6 950 000 Kč |
| Číslo zakázky: | REALITYMIX-134156 |
Podrobné informace
- Poloha objektu: samostatný
- Druh objektu: cihlová
- Stav objektu: ve výstavbě (hrubá stavba)
- Počet podlaží objektu: 2
- Typ domu: patrový
- Zastavěná plocha: 72 m²
- Plocha parcely: 1151 m²
- Užitná plocha: 72 m²
- Umístění objektu: klidná část obce
- Komunikace: neupravená
Právní rádce
-
Detail
V tomto článku shrneme nejdůležitější věci, které byste si měli promyslet, pokud se chystáte prodat svou nemovitost a chcete, abyste s kupujícím nemusel následně řešit vzniklé problémy.
Jako prodávající nesete rizika spojená nejen se samotným obchodem, ale i se stavem nemovitosti v době prodeje a pro minimalizaci rizik, je dobré se zamyslet nad uvedenými oblastmi.
-
Detail
Realitní makléř má své nezastupitelné místo v realitním obchodu. Realitním makléřem nemyslím nevzdělané jelito, které absolvovalo dvoudenní školení a ví, jak se nahraje inzerát na inzertní portál.
Realitním makléřem, který se Vám skutečně vyplatí, je zkušený profesionál, který je schopen Vám dobře poradit jak prodat za co nejvíc a s nejmenším rizikem a hlavně je Vás schopen obratně provést celým realitním obchodem.