Pronájem bytu, 3+1, 104 m²
Otakara Kádnera, Úhonice, Praha-západ
29 500 Kč (za měsíc)Pronájem bytu, 3+1, 104 m²
Otakara Kádnera, Úhonice, Praha-západ
29 500 Kč
(za měsíc)
B
Velmi úsporná
Pronájem bytu 3+1, 104 m2, Úhonice, Praha - západ
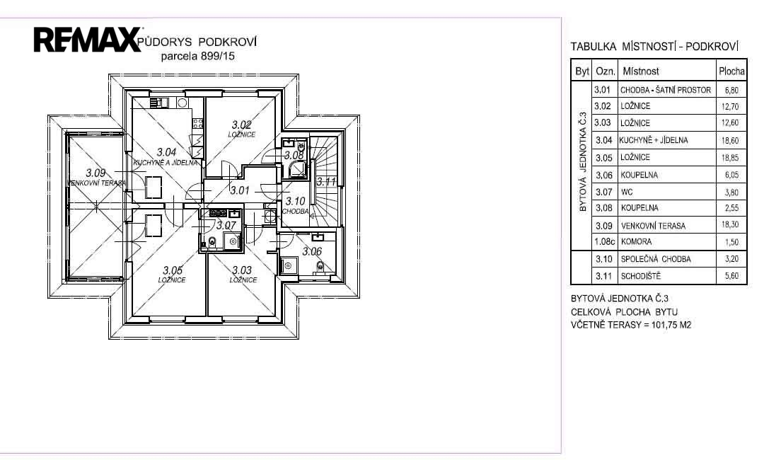
K pronájmu nabízíme zcela nový byt 3+1, který se nachází ve druhém patře domu se třemi bytovými jednotkami.
Dominantou tohoto bytu je prostorný obývací pokoj s kuchyňským koutem a linkou včetně spotřebičů. Z této místnosti je vstup na cca 18 m2 velkou zastřešenou terasu.
Dále zde nalezneme dvě samostatné ložnice a dvě koupelny s podlahovým vytápěním.
Vytápění zajišťuje tepelné čerpadlo, podlahy jsou vinylové, okna plastová, součástí je též klimatizace.
K bytu náleží komora v přízemí domu.
Dvě parkovací stání na oploceném pozemku u domu.
Jedná se o klidné a hezké místo s dobrou dopravní dostupností do Prahy.
Doporučujeme! Pronajímající si vyhrazuje právo vybrat nájemce na základě jím zvolených kritérií.
Dominantou tohoto bytu je prostorný obývací pokoj s kuchyňským koutem a linkou včetně spotřebičů. Z této místnosti je vstup na cca 18 m2 velkou zastřešenou terasu.
Dále zde nalezneme dvě samostatné ložnice a dvě koupelny s podlahovým vytápěním.
Vytápění zajišťuje tepelné čerpadlo, podlahy jsou vinylové, okna plastová, součástí je též klimatizace.
K bytu náleží komora v přízemí domu.
Dvě parkovací stání na oploceném pozemku u domu.
Jedná se o klidné a hezké místo s dobrou dopravní dostupností do Prahy.
Doporučujeme! Pronajímající si vyhrazuje právo vybrat nájemce na základě jím zvolených kritérií.
| Cena: | 29 500 Kč / (za měsíc) |
| Poznámka: | + poplatky 3.000,- Kč bez elektřiny |
| Datum k nastěhování: | 20.06.2026 |
| Dispozice/podlahová plocha: | 3+1/104 m² |
| Číslo zakázky: | REALITYMIX-436029 |
Podrobné informace
- Dispozice bytu: 3+1
- Číslo podlaží v domě: 3
- Počet podlaží objektu: 3
- Užitná plocha: 104 m²
- Celková podlahová plocha: 104 m²
- Druh objektu: cihlová
- Stav objektu: novostavba
- Vlastnictví: osobní
- Sklep: 3 m²
- Terasa: 18 m²
- Umístění objektu: klidná část obce
- Doprava: silnice, MHD, autobus
- Voda: Zdroj pro celý objekt
- Odpad: Kanalizace
- Energetická náročnost budovy: B - Velmi úsporná
- Energetický ukazatel podle vyhlášky: č. 264/2020 Sb.
Mapa
* Umístění na mapě je na základě GPS informací dodaných realitní kanceláří.
* Pozice na mapě je pouze orientační.
Podobné nemovitosti
Pronájem bytu, 2+kk, 60 m²
Krátká, Tursko, Praha-západ
21 000 Kč za měsíc
Pronájem bytu, 2+1, 63 m²
Žlutá, Chrášťany, Praha-západ
20 500 Kč za měsíc
Pronájem bytu, 1+kk, 22 m²
V Kněžívce, Tuchoměřice, Praha-západ
14 400 Kč za měsíc
Pronájem bytu, 4+kk, 62 m²
Jílovská, Psáry, Praha-západ
30 000 Kč za měsíc