Prodej - dům/vila, 294 m²
Prof. Krbce, Tmaň, Beroun
19 900 000 KčProdej - dům/vila, 294 m²
Prof. Krbce, Tmaň, Beroun
Moderní rodinný dům 294 m² v obci Tmaň s panoramatickými výhledy na Český kras
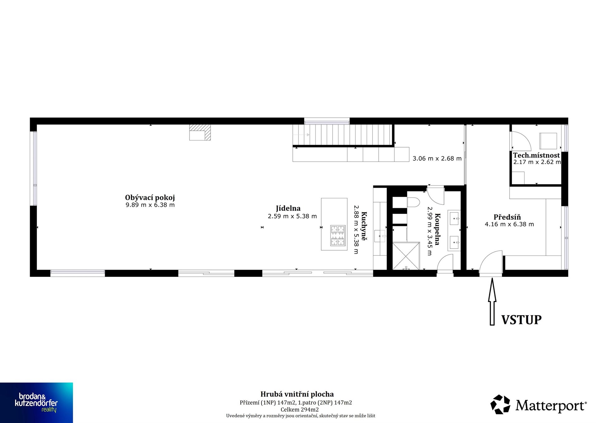
Nemovitost představuje kombinaci kvalitní architektury, moderních technologií a vysokého uživatelského komfortu. V domě je instalováno teplovodní podlahové vytápění s tepelným čerpadlem Vaillant systému země/voda. Ohřev vody je řešen kombinací bojleru a tepelného čerpadla. Dům je vybaven inteligentním systémem chytré domácnosti ABB včetně střešní meteostanice. Komfort v letních měsících může zajišťovat klimatizační systém instalovaný v přízemí i patře domu s centrální jednotkou na střeše objektu; po dokončení interiérových jednotek umožní plnohodnotnou regulaci teploty v jednotlivých obytných místnostech. Samozřejmostí je zavedená datová přípojka pro vysokorychlostní internet a TV.
Dešťové vody jsou svedeny do retenční nádrže, v dolní části pozemku je vybudován závlahový systém travního porostu a k dispozici je vlastní vrt studny se silným, vydatným pramenem. Parkování je aktuálně řešeno na zpevněné štěrkové ploše před zastřešenou terasou domu s kapacitou pro dvě vozidla.
Součástí pozemku jsou rozestavěné venkovní stavby určené k dokončení, konkrétně bazén a technický domek, oba ve fázi hrubé stavby. Pozemek je zčásti oplocen.
Lokalita nabízí velmi dobrou dopravní dostupnost. Napojení na dálnici D5 (exit Králův Dvůr) je vzdáleno přibližně 5 km, s dojezdovým časem zhruba 10 minut. Do centra Berouna na Husovo náměstí je to 11 km, tedy cca 12 minut jízdy autem. Do Prahy na Zličín lze dojet za 35 minut, vzdálenost činí zhruba 32 km.
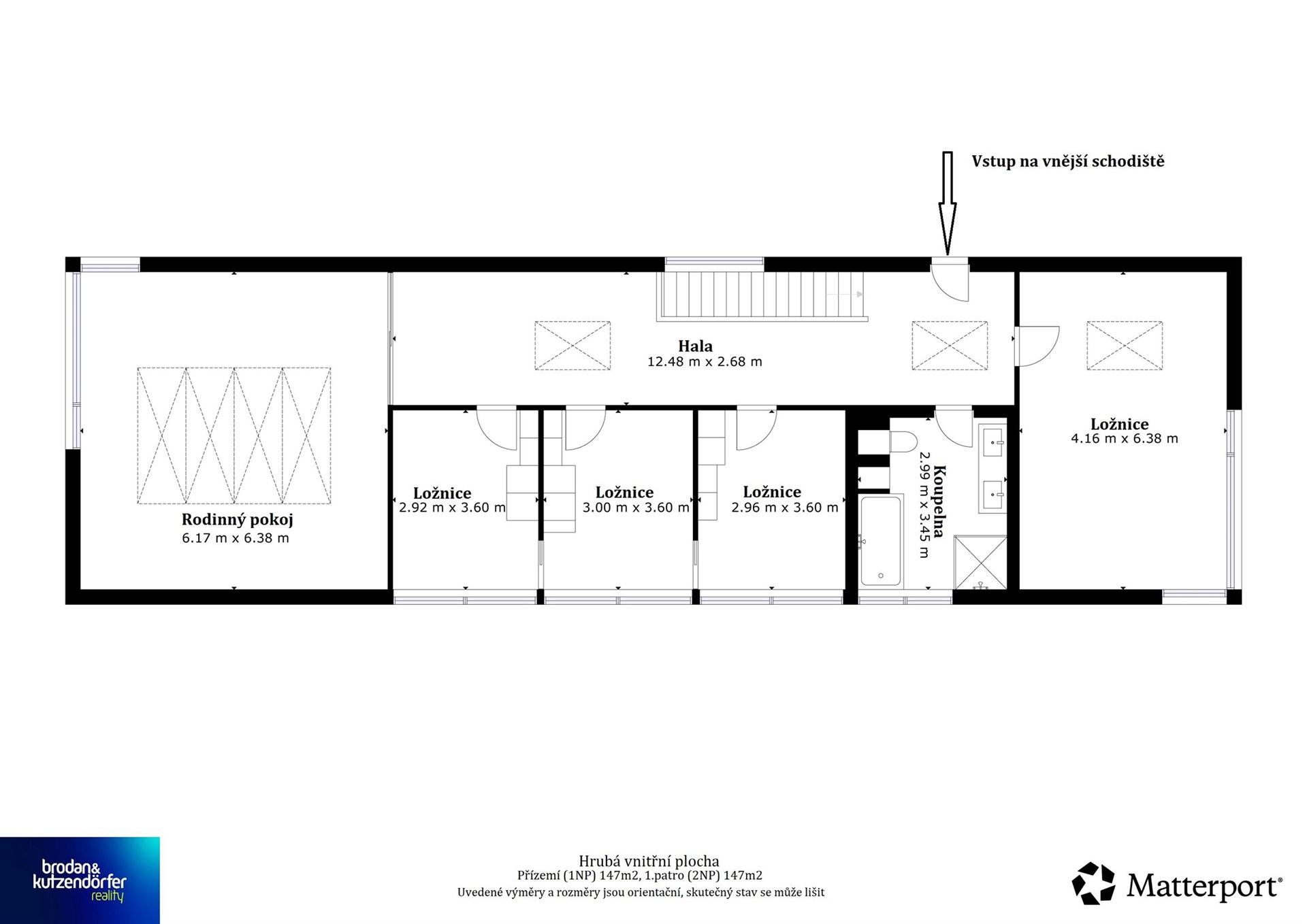
Součástí prodeje je kuchyňská linka včetně vestavěných spotřebičů, kompletní koupelny a sociální zařízení včetně příslušenství a vestavěný nábytek, zejména šatna ve vstupní hale.
Nemovitost je vhodná pro klienty, kteří hledají reprezentativní, technologicky vyspělé bydlení s velkorysým pozemkem, vysokou mírou soukromí a možností finální personalizace exteriéru v klidné lokalitě s výjimečnými výhledy a výbornou dostupností do Berouna i Prahy.
Pokud máte zájem o prohlídku nebo více informací, neváhejte nás kontaktovat.
Disclaimer:
Uvedené výměry jsou orientační. V případě více zájemců bude nemovitost prodána nejlepší nabídce a majitel si vyhrazuje právo vybrat kupujícího na základě jím zvolených kritérií. Veškeré zveřejněné údaje obsažené v tomto inzerátu mají pouze informativní charakter a nejsou nabídkou ve smyslu § 1731 nebo § 1732 občanského zákoníku, ani se nejedná o veřejný příslib dle § 1733 občanského zákoníku.
| Cena: | 19 900 000 Kč |
| Poznámka: | Cena je uvedena včetně provize a kompletního právního servisu včetně advokátní úschovy kupní ceny, Disclaimer: Uvedené výměry jsou orientační. V případě více zájemců bude nemovitost prodána nejlepší n |
| Datum k nastěhování: | 01.03.2026 |
| Číslo zakázky: | REALITYMIX-973723 |
Podrobné informace
- Poloha objektu: samostatný
- Druh objektu: cihlová
- Stav objektu: novostavba
- Počet podlaží objektu: 2
- Typ domu: patrový
- Zastavěná plocha: 168 m²
- Plocha parcely: 1634 m²
- Zahrada: 1466 m²
- Užitná plocha: 294 m²
- Terasa: ano
- Doprava: silnice, MHD
- Elektřina: Elektro - 230 V
- Voda: Zdroj pro celý objekt, Voda - dálkový vodovod
- Telekomunikace: Internet
- Odpad: Kanalizace
- Energetická náročnost budovy: B - Velmi úsporná
- Energetický ukazatel podle vyhlášky: č. 264/2020 Sb.
- Popis vybavení: .
Právní rádce
-
Detail
V tomto článku shrneme nejdůležitější věci, které byste si měli promyslet, pokud se chystáte prodat svou nemovitost a chcete, abyste s kupujícím nemusel následně řešit vzniklé problémy.
Jako prodávající nesete rizika spojená nejen se samotným obchodem, ale i se stavem nemovitosti v době prodeje a pro minimalizaci rizik, je dobré se zamyslet nad uvedenými oblastmi.
-
Detail
Realitní makléř má své nezastupitelné místo v realitním obchodu. Realitním makléřem nemyslím nevzdělané jelito, které absolvovalo dvoudenní školení a ví, jak se nahraje inzerát na inzertní portál.
Realitním makléřem, který se Vám skutečně vyplatí, je zkušený profesionál, který je schopen Vám dobře poradit jak prodat za co nejvíc a s nejmenším rizikem a hlavně je Vás schopen obratně provést celým realitním obchodem.