Prodej - dům/vila, 180 m²
Zaháj, Ústí nad Orlicí
6 950 000 KčProdej - dům/vila, 180 m²
Zaháj, Ústí nad Orlicí
Prodej rodinného domu 180 m2, pozemek 1666 m2, Zaháj - Tisová
Prostorný rodinný dům 5+1 na okraji obce Zaháj nabízí ideální kombinaci venkovského klidu a skvělé dostupnosti – pouhé 3 minuty od Vysokého Mýta a 18 minut od Litomyšle.
Dům stojí na rozlehlém pozemku o výměře 1 666 m², který poskytuje dostatek místa pro rodinný život, zahradu i odpočinek v naprostém soukromí.
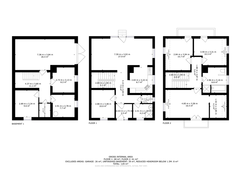
Dispozice
Přízemí:
- garáž (26,4 m²)
- 3× sklep (9,6 m² a 7,7 m²)
- kotelna (8,2 m²)
1. NP:
- obývací pokoj se vstupem na zahradu (27,9 m²)
- kuchyně (8,7 m²)
- pokoj (10 m²)
- koupelna + samostatné WC (5,5 m²)
2. NP:
- ložnice se šatnou (20,7 m²)
- 2 pokoje (10,7 m² a 10,3 m²)
- koupelna s WC (8,8 m²)
Hlavní benefity:
- pozemek o velikosti 1 666 m²
- umístění na samém kraji obce → maximální soukromí
- výhled na výběh s koňmi
- klidná lokalita obklopená přírodou
- přímý vstup na zahradu z obývacího pokoje
- garáž + sklepy + technické zázemí
- skvělá dostupnost: Vysoké Mýto (3 min), Litomyšl (18 min)
Cena: 6 950 000 Kč (včetně provize)
Pokud hledáte dům s velkým pozemkem, soukromím a dobrou dostupností, ráda vám ho osobně představím.
Pro domluvení prohlídky mě neváhejte kontaktovat.
| Cena: | 6 950 000 Kč |
| Datum k nastěhování: | 18.03.2026 |
| Číslo zakázky: | REALITYMIX-0002 |
Podrobné informace
- Poloha objektu: samostatný
- Druh objektu: cihlová
- Stav objektu: velmi dobrý
- Počet podlaží objektu: 3
- Typ domu: patrový
- Zastavěná plocha: 90 m²
- Plocha parcely: 1666 m²
- Zahrada: 1576 m²
- Užitná plocha: 180 m²
- Umístění objektu: klidná část obce
- Komunikace: asfaltová
- Odpad: ČOV pro celý objekt
- Energetická náročnost budovy: B - Velmi úsporná
- Energetický ukazatel podle vyhlášky: č. 264/2020 Sb.
Právní rádce
-
Detail
V tomto článku shrneme nejdůležitější věci, které byste si měli promyslet, pokud se chystáte prodat svou nemovitost a chcete, abyste s kupujícím nemusel následně řešit vzniklé problémy.
Jako prodávající nesete rizika spojená nejen se samotným obchodem, ale i se stavem nemovitosti v době prodeje a pro minimalizaci rizik, je dobré se zamyslet nad uvedenými oblastmi.
-
Detail
Realitní makléř má své nezastupitelné místo v realitním obchodu. Realitním makléřem nemyslím nevzdělané jelito, které absolvovalo dvoudenní školení a ví, jak se nahraje inzerát na inzertní portál.
Realitním makléřem, který se Vám skutečně vyplatí, je zkušený profesionál, který je schopen Vám dobře poradit jak prodat za co nejvíc a s nejmenším rizikem a hlavně je Vás schopen obratně provést celým realitním obchodem.
Mapa
Podobné nemovitosti
Prodej - dům/vila, 105 m²
Tylova, Česká Třebová, Ústí nad Orlicí
5 900 000 Kč
Prodej - dům/vila, 320 m²
Nádražní, Žamberk, Ústí nad Orlicí
6 800 000 Kč
Prodej - dům/vila, 322 m²
Taušlova, Letohrad, Ústí nad Orlicí
5 499 000 Kč
Prodej - dům/vila, 260 m²
Slovenská, Žichlínské Předměstí, Ústí nad Orlicí
5 200 000 Kč