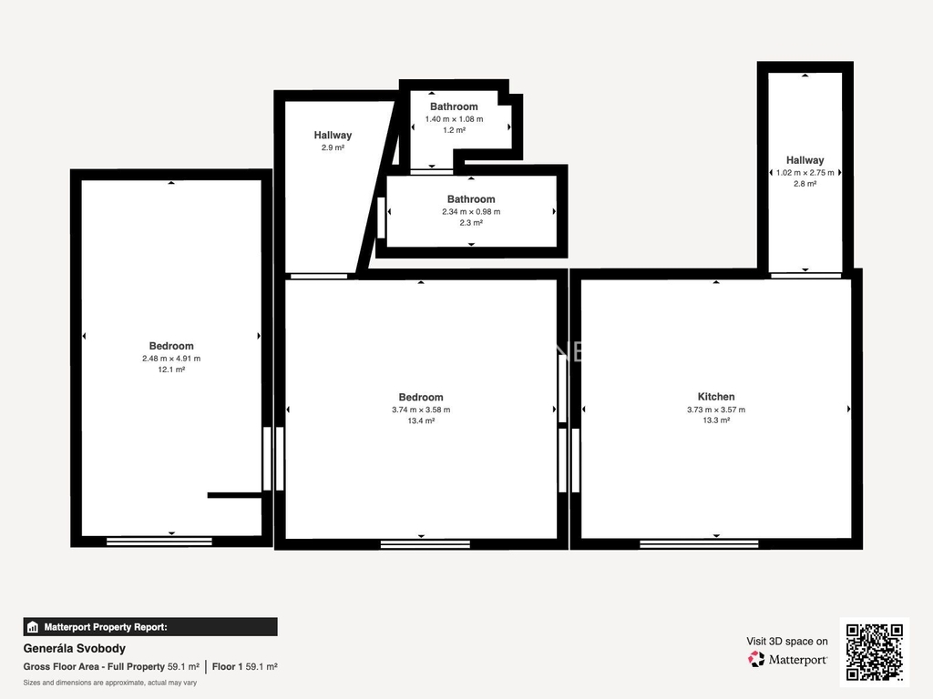
Pronájem bytu, 2+1, 35 m²
gen. Svobody, Trnovany, Teplice
12 500 Kč (za měsíc)Pronájem bytu, 2+1, 35 m²
gen. Svobody, Trnovany, Teplice
12 500 Kč
(za měsíc)
G
Mimořádně nehospodárná
Pronájem bytu 2+1, na adrese Gen. Svobody 798/2, Teplice, 415 01
Ve výhradním zastoupení majitele nabízím k pronájmu byt 2+1 v přízemí na adrese Gen. Svobody 798/2, Teplice, 415 01.
Byt je po právě ukončené kompletní rekonstrukci, Vytápění a ohřev vody je plynovým kotlem.
Občanská vybavenost je v dosahu (škola, školka, MHD a pod.)
Nájem 12 500,- Kč/ měs.; záloha na vodu 1 000,- Kč/ os., osvětlení společných prostor 120,- Kč; nájemné se platí 1 měsíc dopředu + enrgie se přepisují na nájemníka
Kauce 25 000,- Kč
Provize 13 000,- Kč
V případě zájmu kontaktujte makléře zakázky: Po-Pá od 8-16hod.
Byt je po právě ukončené kompletní rekonstrukci, Vytápění a ohřev vody je plynovým kotlem.
Občanská vybavenost je v dosahu (škola, školka, MHD a pod.)
Nájem 12 500,- Kč/ měs.; záloha na vodu 1 000,- Kč/ os., osvětlení společných prostor 120,- Kč; nájemné se platí 1 měsíc dopředu + enrgie se přepisují na nájemníka
Kauce 25 000,- Kč
Provize 13 000,- Kč
V případě zájmu kontaktujte makléře zakázky: Po-Pá od 8-16hod.
| Cena: | 12 500 Kč / (za měsíc) |
| Poznámka: | Kauce ve výši 2 měsíčních nájmů |
| Datum k nastěhování: | 17.04.2026 |
| Dispozice/podlahová plocha: | 2+1/35 m² |
| Číslo zakázky: | REALITYMIX-1631 |
Podrobné informace
- Dispozice bytu: 2+1
- Číslo podlaží v domě: 1
- Počet podlaží objektu: 4
- Užitná plocha: 35 m²
- Celková podlahová plocha: 35 m²
- Druh objektu: smíšená
- Stav objektu: velmi dobrý
- Vlastnictví: osobní
- Umístění objektu: klidná část obce
- Doprava: vlak, silnice, MHD, autobus
- Elektřina: Elektro - 230 V
- Voda: Voda - dálkový vodovod
- Plyn: Plynovod
- Odpad: Kanalizace
- Energetická náročnost budovy: G - Mimořádně nehospodárná
- Energetický ukazatel podle vyhlášky: č. 264/2020 Sb.
Mapa
* Umístění na mapě je na základě GPS informací dodaných realitní kanceláří.
* Pozice na mapě je pouze orientační.