Prodej bytu, 3+1, 83,5 m²
Sokolovská, Tábor
4 190 000 KčProdej bytu, 3+1, 83,5 m²
Sokolovská, Tábor
Prodej bytu 3+1 83m and sup2;s balkonem, Tábor - Sokolovská
Byt má všechny pokoje neprůchozí a velkou výhodou je, že jej můžete zrekonstruovat naprosto dle vašich potřeb.
Prohlédněte si virtuální prohlídku, umístěnou ve fotogalerii.
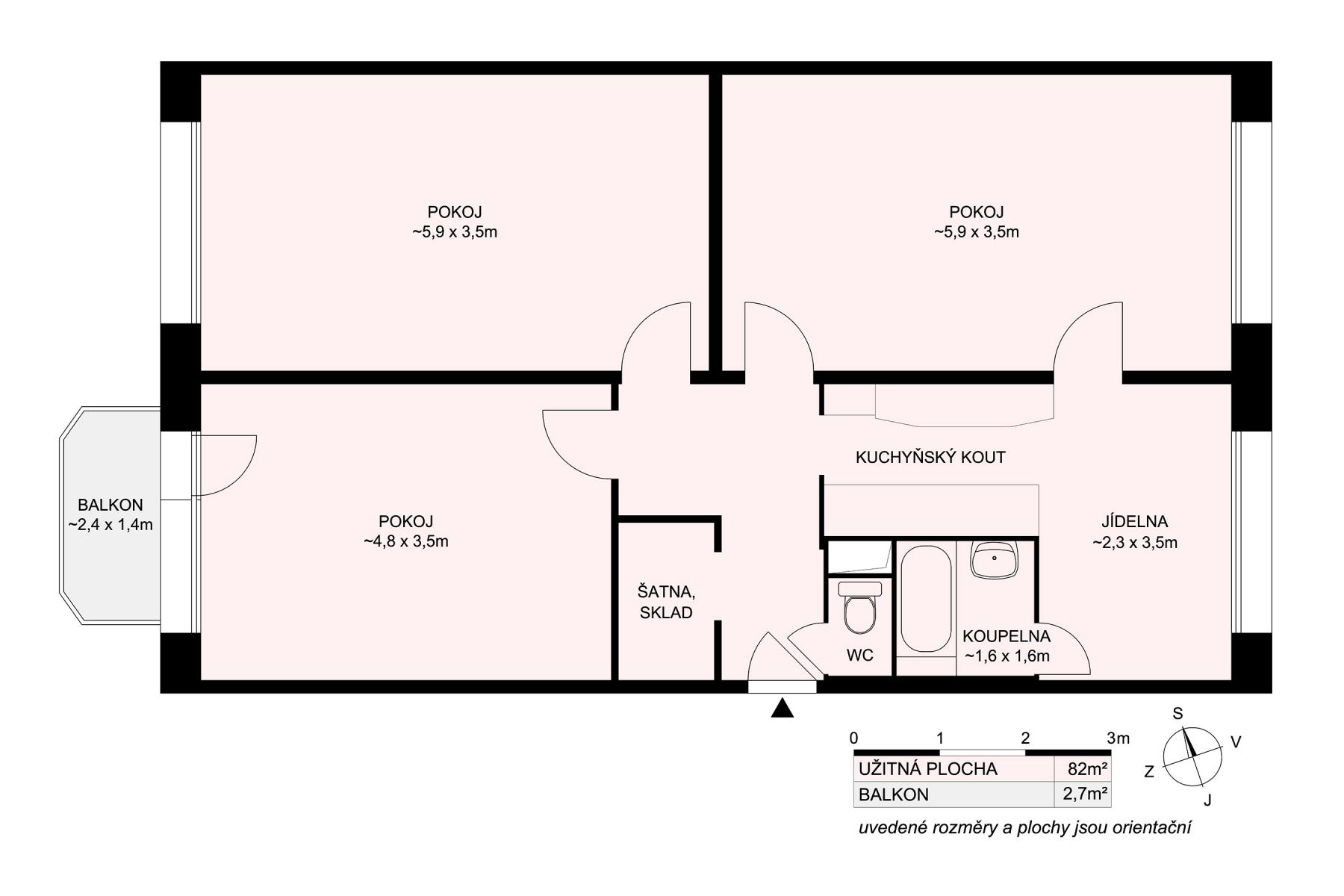
Byt je balkonem orientovaný na jih, dům i lokalita jsou klidné. Umístění je ve čtvrtém patře, výtah je v plánu.
Byt je vytápěn ústředním topením, okna plastová. Na podlahách lino a koberce, v koupelně dlažba.
Byt je veliký dle prohlášení vlastníka 83,49 m and sup2;, jednotlivé rozlohy místností a příslušenství:
kuchyně 12.44 m2
pokoj 20.44 m2
pokoj 20.44 m2
pokoj 16.53 m2
balkon 1.22 m2
koupelna 2.70 m2
WC 1.43 m2
předsíň 5.72 m2
šatna 2.18 m2
sklep 1.61 m
V současné době jsou celkové náklady (vyjma elektřiny) 5.026,-Kč/měsíčně. Z toho fond oprav 1.638,-Kč.
Energetický štítek nebyl zatím dodán, uvádím tedy G. Bude doplněno.
Uvedené výměry jsou orientační. Veškeré zveřejněné údaje obsažené v tomto inzerátu mají pouze informativní charakter a nejsou nabídkou ve smyslu § 1731 nebo § 1732 občanského zákoníku, ani se nejedná o veřejný příslib dle § 1733 občanského zákoníku.
Vybraná fota obsahují vizualizaci možného stavu.
V případě více zájemců bude nemovitost prodána nejlepší nabídce a majitel si vyhrazuje právo vybrat kupujícího na základě jim zvolených kritérií.
| Cena: | 4 190 000 Kč |
| Dispozice/podlahová plocha: | 3+1/83.5 m² |
| Číslo zakázky: | REALITYMIX-20068 |
Podrobné informace
- Dispozice bytu: 3+1
- Číslo podlaží v domě: 5
- Počet podlaží objektu: 5
- Užitná plocha: 83.5 m²
- Celková podlahová plocha: 83.5 m²
- Druh objektu: panelová
- Stav objektu: dobrý
- Vlastnictví: osobní
- Balkon: 1.2 m²
- Sklep: 1.6 m²
- Umístění objektu: klidná část obce
- Doprava: silnice, MHD, autobus
- Elektřina: Elektro - 230 V
- Voda: Zdroj pro celý objekt
- Plyn: Plynovod
- Topení: Ústřední - dálkové
- Odpad: Kanalizace
- Energetická náročnost budovy: G - Mimořádně nehospodárná
Právní rádce
-
Detail
V tomto článku shrneme nejdůležitější věci, které byste si měli promyslet, pokud se chystáte prodat svou nemovitost a chcete, abyste s kupujícím nemusel následně řešit vzniklé problémy.
Jako prodávající nesete rizika spojená nejen se samotným obchodem, ale i se stavem nemovitosti v době prodeje a pro minimalizaci rizik, je dobré se zamyslet nad uvedenými oblastmi.
-
Detail
Realitní makléř má své nezastupitelné místo v realitním obchodu. Realitním makléřem nemyslím nevzdělané jelito, které absolvovalo dvoudenní školení a ví, jak se nahraje inzerát na inzertní portál.
Realitním makléřem, který se Vám skutečně vyplatí, je zkušený profesionál, který je schopen Vám dobře poradit jak prodat za co nejvíc a s nejmenším rizikem a hlavně je Vás schopen obratně provést celým realitním obchodem.