Prodej bytu, 5+kk, 133 m²
U Výboru, Svinařov, Kladno
7 390 000 KčProdej bytu, 5+kk, 133 m²
U Výboru, Svinařov, Kladno
Nový byt 5+kk, 132,8m2, zahrada 313 m2, Svinařov
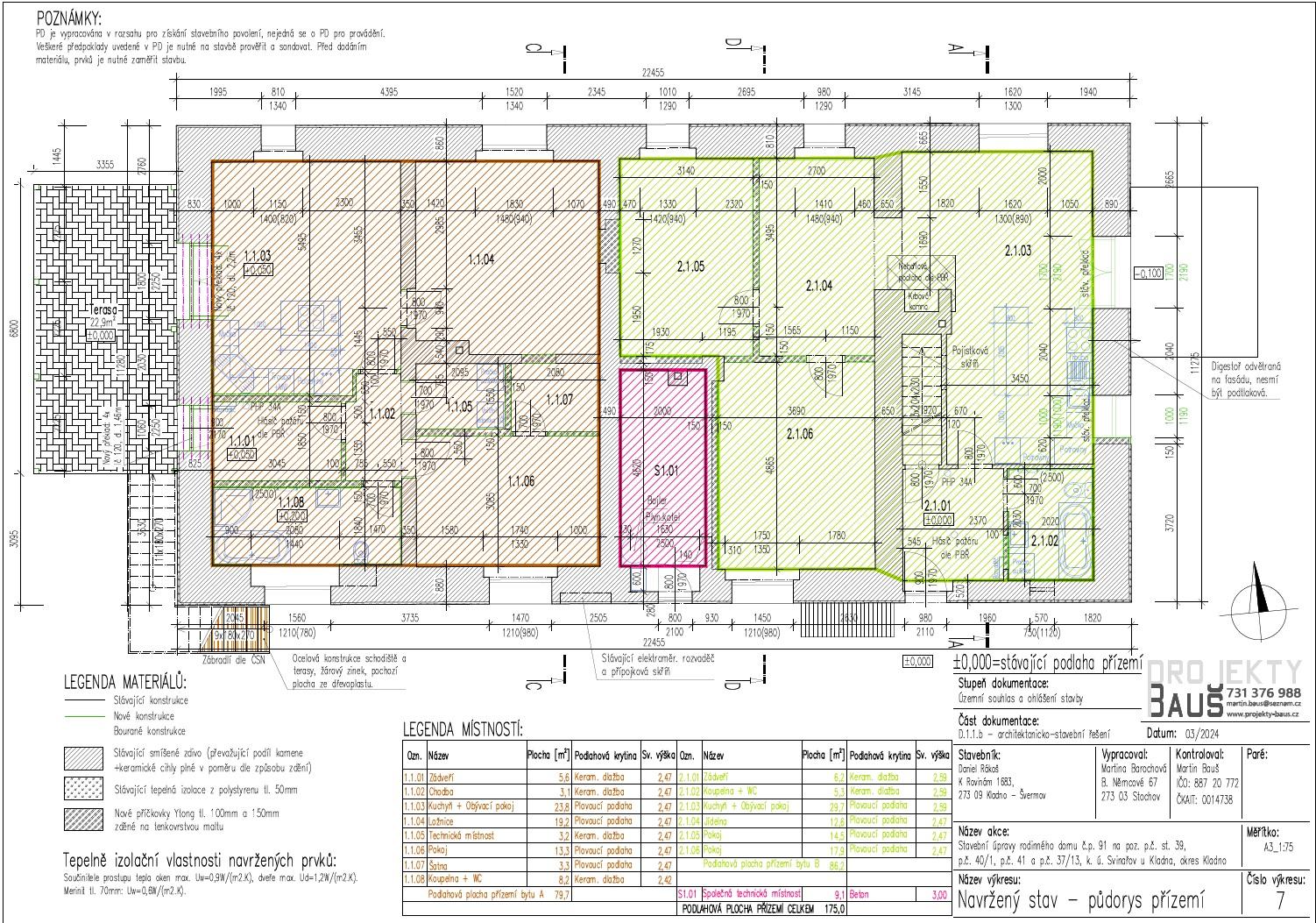
Vytápění přízemní části bytu 4+kk jsou vinylové podlahy, podlahové teplovodní vytápění z vlastního plynového kotle se zásobníkem na teplou vodu a možno využít také vytápění vlastními krbovými kamny v obývacím pokoji, v patře vytápěno radiátory.
Byt je kompletně nový včetně rozvodů, skladeb podlah stropních konstrukcí, platových oken.
K dispozici také společný sklep a technická místnost - pro tři byty.
Bližší informace v RK. Rádi vyřídíme. Financování možné hypotečním úvěrem.
| Cena: | 7 390 000 Kč |
| Dispozice/podlahová plocha: | 5+kk/133 m² |
| Číslo zakázky: | REALITYMIX-N17848 |
Podrobné informace
- Dispozice bytu: 5+kk
- Číslo podlaží v domě: 1
- Počet podlaží objektu: 1
- Užitná plocha: 155 m²
- Celková podlahová plocha: 133 m²
- Druh objektu: smíšená
- Stav objektu: po rekonstrukci
- Vlastnictví: osobní
- Sklep: 6 m²
- Terasa: 18 m²
- Umístění objektu: klidná část obce
- Topení: Ústřední - dálkové
- Energetická náročnost budovy: C - Vyhovující
Právní rádce
-
Detail
V tomto článku shrneme nejdůležitější věci, které byste si měli promyslet, pokud se chystáte prodat svou nemovitost a chcete, abyste s kupujícím nemusel následně řešit vzniklé problémy.
Jako prodávající nesete rizika spojená nejen se samotným obchodem, ale i se stavem nemovitosti v době prodeje a pro minimalizaci rizik, je dobré se zamyslet nad uvedenými oblastmi.
-
Detail
Realitní makléř má své nezastupitelné místo v realitním obchodu. Realitním makléřem nemyslím nevzdělané jelito, které absolvovalo dvoudenní školení a ví, jak se nahraje inzerát na inzertní portál.
Realitním makléřem, který se Vám skutečně vyplatí, je zkušený profesionál, který je schopen Vám dobře poradit jak prodat za co nejvíc a s nejmenším rizikem a hlavně je Vás schopen obratně provést celým realitním obchodem.