Prodej bytu, 4+1, 105 m²
Masná, Studená, Jindřichův Hradec
RezervovánoProdej bytu, 4+1, 105 m²
Masná, Studená, Jindřichův Hradec
Prodej bytu 4+1 105 m2 Masná, Studená
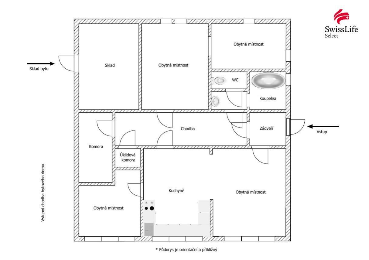
Bytová jednotka je velmi prostorná a dobře prosvětlená díky pozici větších obytných místností na jihovýchodní stranu. Menší obytné místnosti mají okna na severní a východní stranu. K bytu náleží i sklad 15 m přístupný z chodby bytového domu. Vytápění je centrální teplovodní s měřidly na radiátorech.
Obec Studená se nachází přibližně na půli cesty mezi Jindř. Hradcem a Telčí. Občanská vybavenost je velmi dobrá a zahrnuje např. mateřskou a základní školu, knihovnu, obecní úřad s matričním a stavebním úřadem, poštu, bankomat, obchody s potravinami, oblečením a domácími potřebami, zdravotní středisko, lékárnu, čerpací stanici, sportovní areál s fotbalovým hřištěm a tenisovými kurty atd.
Pro domluvení prohlídky zavolejte nebo vyplňte formulář.
| Cena: | Rezervováno |
| Dispozice/podlahová plocha: | 4+1/105 m² |
| Číslo zakázky: | REALITYMIX-24482 |
Podrobné informace
- Dispozice bytu: 4+1
- Číslo podlaží v domě: 1
- Počet podlaží objektu: 3
- Užitná plocha: 105 m²
- Celková podlahová plocha: 105 m²
- Druh objektu: cihlová
- Stav objektu: dobrý
- Vlastnictví: osobní
- Sklep: 15 m²
- Energetická náročnost budovy: G - Mimořádně nehospodárná
Právní rádce
-
Detail
V tomto článku shrneme nejdůležitější věci, které byste si měli promyslet, pokud se chystáte prodat svou nemovitost a chcete, abyste s kupujícím nemusel následně řešit vzniklé problémy.
Jako prodávající nesete rizika spojená nejen se samotným obchodem, ale i se stavem nemovitosti v době prodeje a pro minimalizaci rizik, je dobré se zamyslet nad uvedenými oblastmi.
-
Detail
Realitní makléř má své nezastupitelné místo v realitním obchodu. Realitním makléřem nemyslím nevzdělané jelito, které absolvovalo dvoudenní školení a ví, jak se nahraje inzerát na inzertní portál.
Realitním makléřem, který se Vám skutečně vyplatí, je zkušený profesionál, který je schopen Vám dobře poradit jak prodat za co nejvíc a s nejmenším rizikem a hlavně je Vás schopen obratně provést celým realitním obchodem.
Prodáváte nemovitost a potřebujete zjistit její reálnou hodnotu?
Zjistit reálnou cenuVývoj průměrné ceny za m2 v lokalitě Jihočeský kraj
Prodáváte nemovitost a potřebujete zjistit její reálnou hodnotu?
Zjistit reálnou cenuMapa
Podobné nemovitosti
Prodej bytu, 2+1, 50 m²
Staré Město pod Landštejnem, Jindřichův Hradec
1 999 999 Kč
Prodej bytu, 2+1, 57 m²
Komenského, Studená, Jindřichův Hradec
2 390 000 Kč
Prodej bytu, 3+1, 80 m²
Jungmannova, České Velenice, Jindřichův Hradec
3 650 000 Kč
Prodej bytu, 2+1, 63 m²
K. H. Borovského, Nová Bystřice, Jindřichův Hradec
2 890 000 Kč