Prodej bytu, 3+kk, 96 m²
Brno-venkov
11 597 160 KčProdej bytu, 3+kk, 96 m²
Brno-venkov
Prodej bytu 3+KK o výměře 77,7m2
Představujeme Vám 3.etapu, která je zaměřena na výstavbu viladomů. V každém viladomě jsou 3 bytové jednotky a ateliér. Je to ideální místo pro ty, kteří hledají kvalitní, moderní, prostorné a dispozičně chytře řešené bydlení.
Nabízíme k prodeji byt 3+KK se zahradou, terasou, sklepem a 1 parkovacím stáním.
Součástí prodeje bytu je kuchyňská linka, dělaná na míru. K bytu náleží i sklep, který je součástí kupní ceny. V celém bytě jsou venkovní žaluzie.
Viladum č.7 na ulici Stanislava Hanzelky
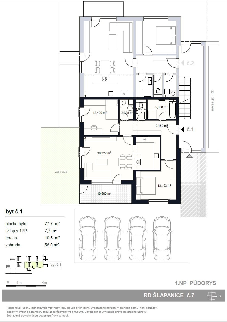
Byt č.1 je umístěn v 1.NP
Dispozice: chodba 12,42m2, obývací pokoj s kuchyňským koutem 30,3m2 s přímým vstupem na terasu 10,5m2 a zahradu 56m2, ložnice 13,19m2, dětský pokoj 12,42m2 se vstupem na balkon, koupelna s vanou a sprchovým koutem 5,6m2, WC zvlášť 1,65m2. a technickou místností 2,38m2.
Standarty bytu, které jsou součástí kupní ceny:
- podlahy vinyl, keramická dlažba
- sanitární technika, sprchový kout, včetně sprchového setu, umyvadlo včetně baterie, vana, závěsné WC, zrcadlo, obklady - mramor
- interiérové dveře + obložkové zárubně, vstupní dveře
- podlahové vytápění, topné těleso
- příprava na klimatizaci
Samotná lokalita nabízí širokou škálu pracovních možností a veškerou potřebnou občanskou vybavenost a výbornou dojezdnost díky dálnici D1 a D2. Také zde v docházkové vzdálenosti nalezneme školu, školku, řadu obchodů, restaurací a služeb, trolejbusovou zastávku, ale především vlakové nádraží, z kterého jste na Hlavním vlakovém nádraží v Brně za 15 min.
Dokončení bytů je plánované na 3Q roku 2026. Výhodou je model financování nemovitosti.
Pokud by Vás nabídka tohoto či jakéhokoliv jiného bytu v tomto projektu zaujala, kontaktujte prosím makléře, u kterého se dozvíte více.
Děláme moderní bydlení dostupnější.
| Cena: | 11 597 160 Kč |
| Dispozice/podlahová plocha: | 3+kk/96 m² |
| Číslo zakázky: | REALITYMIX-00003 |
Podrobné informace
- Dispozice bytu: 3+kk
- Číslo podlaží v domě: 1
- Počet podlaží objektu: 2
- Celková podlahová plocha: 96 m²
- Druh objektu: cihlová
- Stav objektu: ve výstavbě (hrubá stavba)
- Stáří objektu: 2025
- Vlastnictví: osobní
- Sklep: 8 m²
- Terasa: 11 m²
- Vybaveno: ano
- Umístění objektu: okraj obce
- Voda: Voda - dálkový vodovod
- Energetická náročnost budovy: G - Mimořádně nehospodárná
Právní rádce
-
Detail
V tomto článku shrneme nejdůležitější věci, které byste si měli promyslet, pokud se chystáte prodat svou nemovitost a chcete, abyste s kupujícím nemusel následně řešit vzniklé problémy.
Jako prodávající nesete rizika spojená nejen se samotným obchodem, ale i se stavem nemovitosti v době prodeje a pro minimalizaci rizik, je dobré se zamyslet nad uvedenými oblastmi.
-
Detail
Realitní makléř má své nezastupitelné místo v realitním obchodu. Realitním makléřem nemyslím nevzdělané jelito, které absolvovalo dvoudenní školení a ví, jak se nahraje inzerát na inzertní portál.
Realitním makléřem, který se Vám skutečně vyplatí, je zkušený profesionál, který je schopen Vám dobře poradit jak prodat za co nejvíc a s nejmenším rizikem a hlavně je Vás schopen obratně provést celým realitním obchodem.