Prodej - dům/vila, 163 m²
Revoluční, Šestajovice, Praha-východ
Cena na vyžádáníProdej - dům/vila, 163 m²
Revoluční, Šestajovice, Praha-východ
Prodej rodinného domu v obci Šestajovice, jen 2 minuty jízdy autem od hranice hlavního města Prahy
Dům je napojen na všechny inženýrské sítě --- Vodovodní řád, plynovod, kanalizace a EL.
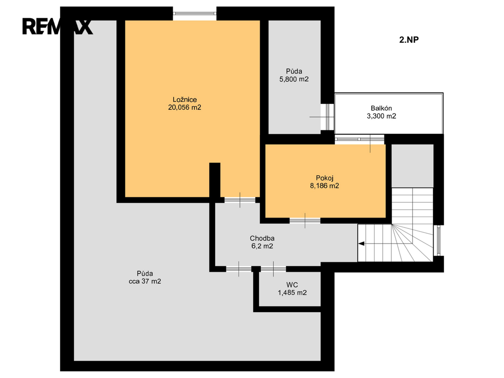
Výměra:
Obytná část - cca 117 m² + balkon 3,3 m² (rozdělena do dvou pater)
Půda - cca 42,8 m²
Stodola - cca 43 m²
Ohřev vody a vytápění je řešeno plynovým kondenzačním kotlem značky BOSH. Vytápění je rozvedeno po celém domě do radiátorů. Okna jsou dřevěná - dvojitá.
Aktuální měsíční režie rodinného domu činí --- plyn cca 5.000,-Kč, el. cca 1.900,-Kč měsíčně
Zahrada nabízí mnoho ovocných stromu. Nabízí se zde možnost i realizace bazénu či zastřešené garáže. Velkým příjemným benefitem je, že se pozemek nachází hned vedle vodní plochy Beranka.
V Šestajovicích se nachází plná občanská vybavenost vč. základní školy a školky. Dále je k dispozici supermarket Billa a Penny, drogerie Teta, kavárny a restaurace. V blízké vzdálenosti se nachází dálnice D11, po které se za 15 minut dostanete na Černý most. Velkou výhodou je autobusové spojení ze zastávky Šestajovice, Balkán, která je vzdálená 2 min chůzí od nabízené nemovitosti.
S financováním vám moc rádi pomůžeme.
Pro více informací neváhejte kontaktovat makléře nabídky. Prodávající si vyhrazuje právo vybrat kupujícího na základě jím zvolených kritérií.
| Cena: | Cena na vyžádání |
| Poznámka: | cena u makléře |
| Číslo zakázky: | REALITYMIX-424614 |
Podrobné informace
- Poloha objektu: samostatný
- Druh objektu: cihlová
- Stav objektu: dobrý
- Počet podlaží objektu: 2
- Typ domu: patrový
- Zastavěná plocha: 118 m²
- Plocha parcely: 1309 m²
- Užitná plocha: 163 m²
- Umístění objektu: klidná část obce
- Voda: Voda - dálkový vodovod
- Plyn: Plynovod
- Odpad: Kanalizace
- Energetická náročnost budovy: G - Mimořádně nehospodárná
- Energetický ukazatel podle vyhlášky: č. 264/2020 Sb.
Právní rádce
-
Detail
V tomto článku shrneme nejdůležitější věci, které byste si měli promyslet, pokud se chystáte prodat svou nemovitost a chcete, abyste s kupujícím nemusel následně řešit vzniklé problémy.
Jako prodávající nesete rizika spojená nejen se samotným obchodem, ale i se stavem nemovitosti v době prodeje a pro minimalizaci rizik, je dobré se zamyslet nad uvedenými oblastmi.
-
Detail
Realitní makléř má své nezastupitelné místo v realitním obchodu. Realitním makléřem nemyslím nevzdělané jelito, které absolvovalo dvoudenní školení a ví, jak se nahraje inzerát na inzertní portál.
Realitním makléřem, který se Vám skutečně vyplatí, je zkušený profesionál, který je schopen Vám dobře poradit jak prodat za co nejvíc a s nejmenším rizikem a hlavně je Vás schopen obratně provést celým realitním obchodem.
Mapa
Podobné nemovitosti
Prodej - dům/vila, 230 m²
Vestecká, Stará Boleslav, Praha-východ
17 900 000 Kč
Prodej - dům/vila, 417 m²
V Kukli, Křenice, Praha-východ
26 980 000 Kč
Prodej - dům/vila, 277 m²
Na Křížkách, Želivec, Praha-východ
33 000 000 Kč
Prodej - dům/vila, 243 m²
Mezi Lesy, Přemyšlení, Praha-východ
22 990 000 Kč