Prodej - pozemek pro bydlení, 840 m²
Ostrava-město
2 800 000 KčProdej - pozemek pro bydlení, 840 m²
Ostrava-město
Exkluzivní příležitost: Pozemek se všemi sítěmi a stavebním povolením v Šenově
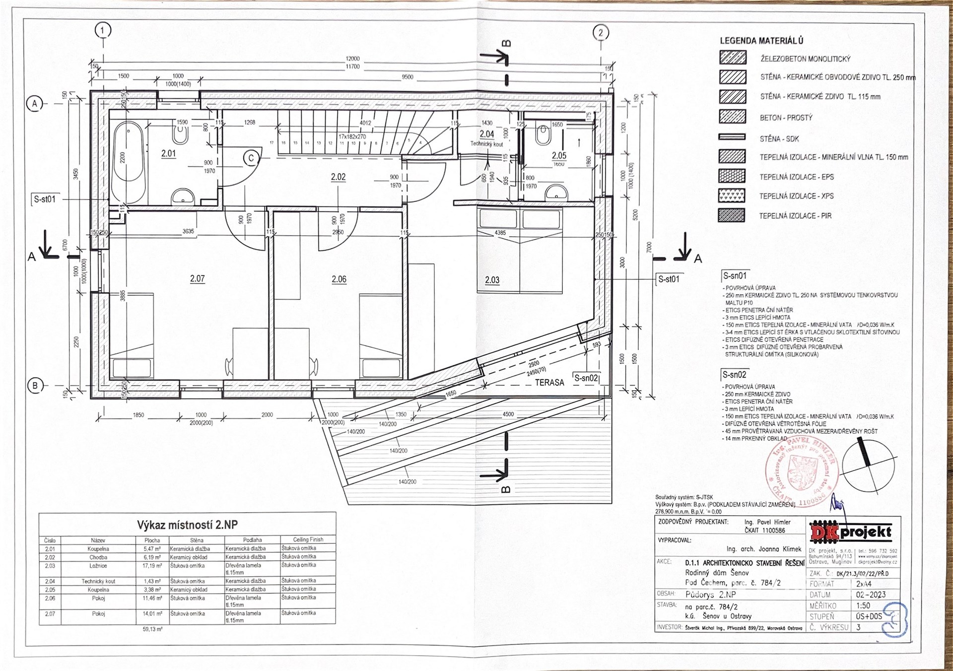
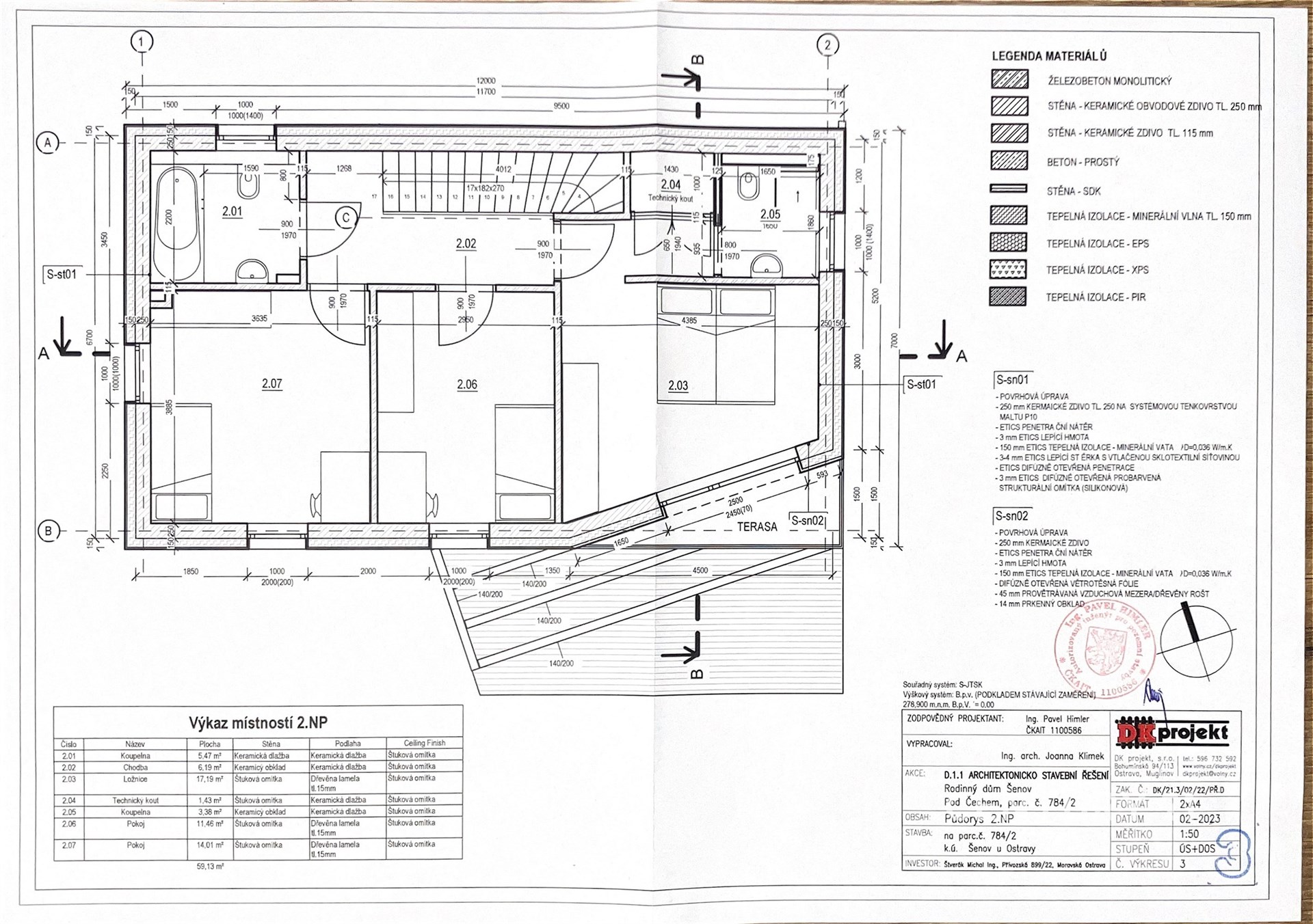
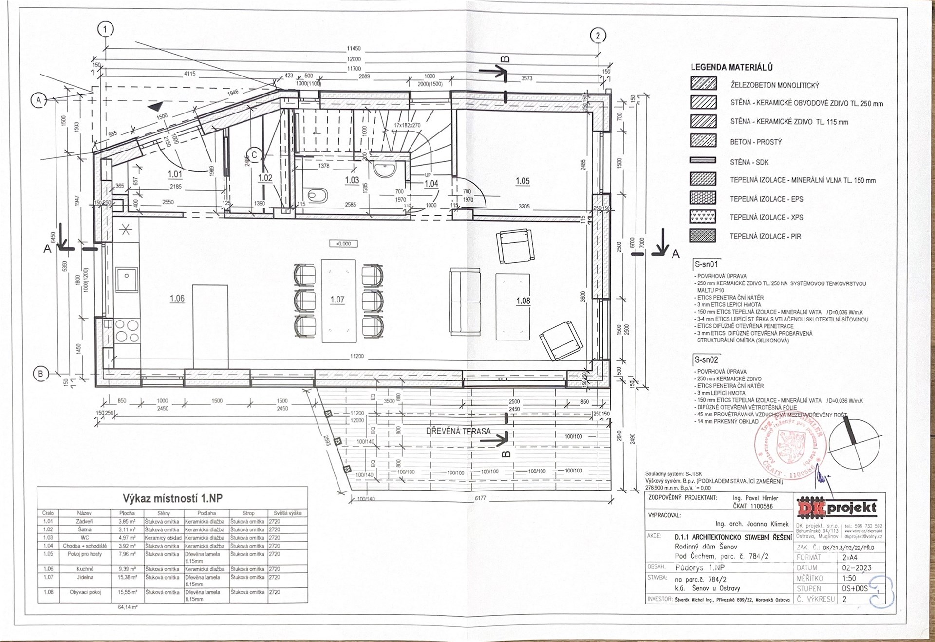
Největší přidanou hodnotou této nabídky je, že k pozemku je již vydáno platné stavební povolení (společný územní souhlas a souhlas s provedením ohlášeného stavebního záměru) na moderní dvoupodlažní rodinný dům. Projekt počítá s domem o užitné ploše 142 m² (balkón a terasa 18 m²) , který je chytře rozdělen na technickou zónu v severní části a velkorysou obytnou zónu orientovanou na jih, aby interiér získal co nejvíce přirozeného světla a byl plynule propojen s dřevěnou terasou a zahradou.
Na pozemku se nachází vodovod a splašková kanalizace (přípojky nejsou zbudovány). Na pozemku se nachází hlavní domovní skříň pro elektřinu. Pro hospodaření s dešťovou vodou je v projektu navržena retenční nádrž s akumulací a následný vsak , což odpovídá nejmodernějším ekologickým i legislativním požadavkům.
Lokalita Šenova je vyhlášená svou vynikající dostupností do Ostravy i Havířova, přičemž si zachovává charakter klidného bydlení s výhledem na Beskydy a na Lysou Horu. Pozemek je mírně vyspádovaný a orientovaný tak, aby budoucí dům nebyl stíněn okolní zástavbou a poskytoval maximální soukromí. Pokud hledáte místo, kde můžete povolat stavební firmu prakticky ihned po podpisu kupní smlouvy, tato nabídka v Šenově je pro vás tou správnou volbou.
Zaujala Vás tato nabídka.
Ozvěte se mi a domluvíme si prohlídku, rád vám toto místo a jeho možnosti ukážu osobně.
| Cena: | 2 800 000 Kč |
| Poznámka: | včetně provize a právního servisu |
| Plocha: | 840 m² |
| Číslo zakázky: | REALITYMIX-974635 |
Podrobné informace
- Celková plocha: 840 m²
- Druh pozemku: pro bydlení
- Inženýrské sítě: vodovod, kanalizace, elektřina
Právní rádce
-
Detail
V tomto článku shrneme nejdůležitější věci, které byste si měli promyslet, pokud se chystáte prodat svou nemovitost a chcete, abyste s kupujícím nemusel následně řešit vzniklé problémy.
Jako prodávající nesete rizika spojená nejen se samotným obchodem, ale i se stavem nemovitosti v době prodeje a pro minimalizaci rizik, je dobré se zamyslet nad uvedenými oblastmi.
-
Detail
Realitní makléř má své nezastupitelné místo v realitním obchodu. Realitním makléřem nemyslím nevzdělané jelito, které absolvovalo dvoudenní školení a ví, jak se nahraje inzerát na inzertní portál.
Realitním makléřem, který se Vám skutečně vyplatí, je zkušený profesionál, který je schopen Vám dobře poradit jak prodat za co nejvíc a s nejmenším rizikem a hlavně je Vás schopen obratně provést celým realitním obchodem.
Mapa
Podobné nemovitosti
Prodej - pozemek pro bydlení, 2 514 m²
Ostrava-město
2 000 000 Kč
Prodej - pozemek pro bydlení, 5 079 m²
Radvanice a Bartovice, Ostrava, Ostrava-město
2 390 000 Kč
Prodej - pozemek pro bydlení, 700 m²
V Údolí, Horní Datyně, Ostrava-město
2 500 000 Kč
Prodej - pozemek pro bydlení, 1 104 m²
Ostrava-město
2 990 000 Kč