Prodej - dům/vila, 162 m²
U zastávky, Roztoky, Praha-západ
12 899 000 KčProdej - dům/vila, 162 m²
U zastávky, Roztoky, Praha-západ
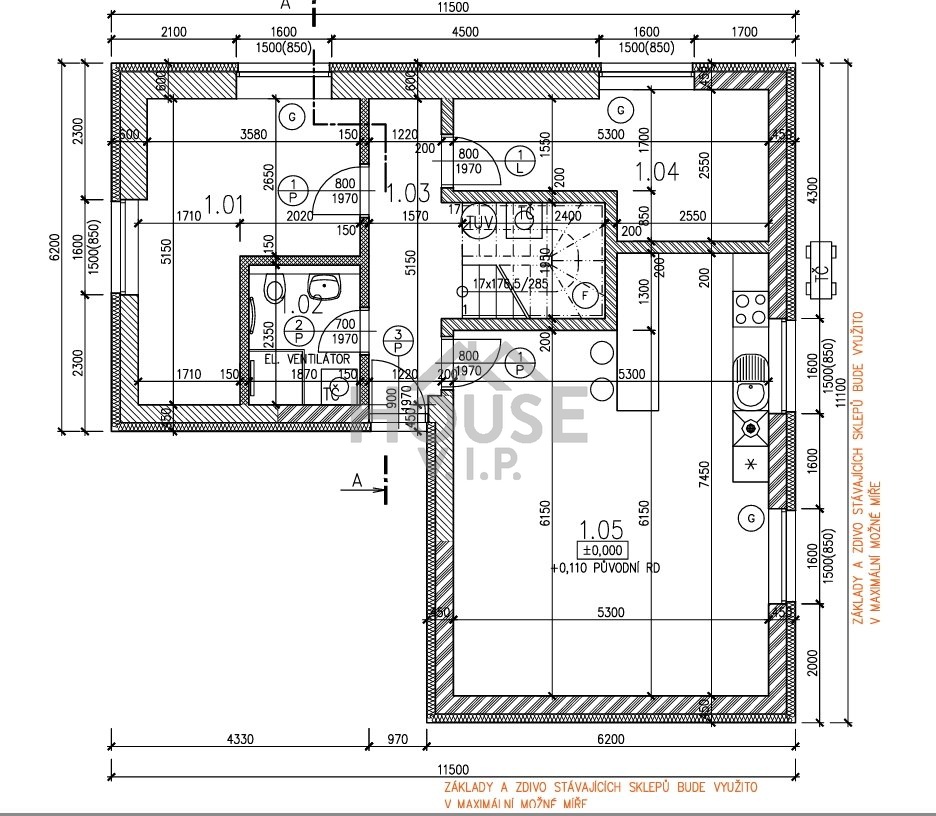
Prodej rozestavěného bytového domu 162 m², Roztoky
Dům je nyní ve výstavbě a jsou schváleny 2 bytové jednotky 3+kk s vlastními zahradami a parkovacím stáním.
Kompletní projektová dokumentace k výstavbě přestavbě se stavebním povolením.
Byly zahájeny práce na 1NP, všechny sítě realizovány, příjezdová cesta a parkovací plochy vybudovány.
Průběžně budeme dodávat fotodokumentaci.
Zajímavá investiční příležitost ve vyhledávané a dostupné lokalitě na hranici Prahy 6.
Klidná lokalita nabízí mnoho možností sportovního vyžití, blízkost řeky a okraj města jsou pro Vaše sportování ideální. Dostupné cyklostezky, prostor pro vodní i kolektivní sporty i kolektivní sporty pro Vaši dobrou kondici.
Nákupní možnosti jsou dobré, rovněž vzdělávací zařízení i veškeré občanská vybavenost jsou bez dojíždění dostupné přímo Roztokách u Prahy.
Historie obce Roztoky, která je tradiční odpočinkovou lokalitou Pražanů.
Roztoky, nacházející se na břehu Vltavy, má bohatou historii, která se zahrnuje do historie města Praha. První písemná zmínka o Roztokách se nachází v panovnické listině z roku 1233, ve které byl zmiňován i Petr z Roztok. Město bylo osídleno již od mladší doby kamenné a v letech 1945–1948 byla vybudována „Penicilinka“, továrna na výrobu penicilinu. V roce 1960 se Roztoky spojily s obcí Žalov a v roce 1968 byly povýšeny na město. Od roku 2005 vzniká v Roztokách nová čtvrť Solníky.
www.roztoky.cz
| Cena: | 12 899 000 Kč |
| Číslo zakázky: | REALITYMIX-01299 |
Podrobné informace
- Poloha objektu: samostatný
- Druh objektu: smíšená
- Stav objektu: před rekonstrukcí
- Počet podlaží objektu: 2
- Typ domu: patrový
- Zastavěná plocha: 239 m²
- Plocha parcely: 594 m²
- Zahrada: 355 m²
- Užitná plocha: 162 m²
- Ostatní: Parkoviště
- Umístění objektu: rušná část obce
- Doprava: vlak, silnice, MHD
- Komunikace: asfaltová
- Elektřina: Elektro - 230 V
- Voda: Voda - dálkový vodovod
Právní rádce
-
Detail
V tomto článku shrneme nejdůležitější věci, které byste si měli promyslet, pokud se chystáte prodat svou nemovitost a chcete, abyste s kupujícím nemusel následně řešit vzniklé problémy.
Jako prodávající nesete rizika spojená nejen se samotným obchodem, ale i se stavem nemovitosti v době prodeje a pro minimalizaci rizik, je dobré se zamyslet nad uvedenými oblastmi.
-
Detail
Realitní makléř má své nezastupitelné místo v realitním obchodu. Realitním makléřem nemyslím nevzdělané jelito, které absolvovalo dvoudenní školení a ví, jak se nahraje inzerát na inzertní portál.
Realitním makléřem, který se Vám skutečně vyplatí, je zkušený profesionál, který je schopen Vám dobře poradit jak prodat za co nejvíc a s nejmenším rizikem a hlavně je Vás schopen obratně provést celým realitním obchodem.