Pronájem - výrobní prostor, 816 m²
Řepov, Mladá Boleslav
Cena na vyžádáníPronájem - výrobní prostor, 816 m²
Řepov, Mladá Boleslav
Cena na vyžádání
C
Vyhovující
Pronájem skladu, výrobních prostor 816 m², Mladá Boleslav
Pronájem skladu, výrobních či obchodních prostor 816 m² Mladá Boleslav.
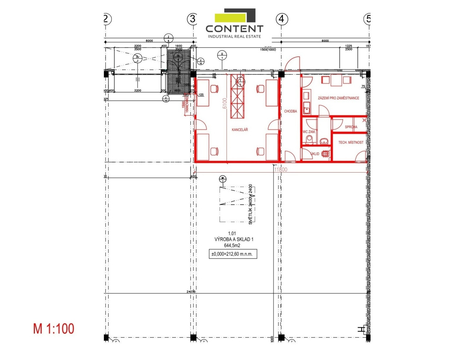
Exkluzivně a bez provize nabízíme novostavbu skladu nebo výrobních prostor o výměře až 1690 m², umístěných v nově vznikajícím průmyslovo-retailovém areálu Ptáček: topení-voda-plyn a Koupelny Ptáček. Areál je přímo u dálnice D10, exit 44 v blízkosti nákupního centra Olympia Mladá Boleslav.
- k dispozici ihned
- dostupné 2 jednotky 874 m², 816 m² - jednotky jsou propojitelné
- světlá výška 9 m,
- LED osvětlení,
- plynové vytápění haly, samostatné topení v kancelářích a šatnách
- oplocený areál s kamerami,
- možnost vlastní konfigurace sociálního zázemí a kanceláří,
- nosnost podlahy minimálně 5 t/m²,
- 3x přímý vjezd,
- dostatečné parkovací a manipulační plochy v rámci areálu,
- bez hydraulické rampy,
- další úpravy možné dle přání a potřeb konkrétního klienta.
Cena na vyžádání
Pro více informací nás kontaktujte, rádi zodpovíme Vaše dotazy.
Exkluzivně a bez provize nabízíme novostavbu skladu nebo výrobních prostor o výměře až 1690 m², umístěných v nově vznikajícím průmyslovo-retailovém areálu Ptáček: topení-voda-plyn a Koupelny Ptáček. Areál je přímo u dálnice D10, exit 44 v blízkosti nákupního centra Olympia Mladá Boleslav.
- k dispozici ihned
- dostupné 2 jednotky 874 m², 816 m² - jednotky jsou propojitelné
- světlá výška 9 m,
- LED osvětlení,
- plynové vytápění haly, samostatné topení v kancelářích a šatnách
- oplocený areál s kamerami,
- možnost vlastní konfigurace sociálního zázemí a kanceláří,
- nosnost podlahy minimálně 5 t/m²,
- 3x přímý vjezd,
- dostatečné parkovací a manipulační plochy v rámci areálu,
- bez hydraulické rampy,
- další úpravy možné dle přání a potřeb konkrétního klienta.
Cena na vyžádání
Pro více informací nás kontaktujte, rádi zodpovíme Vaše dotazy.
| Cena: | Cena na vyžádání |
| Poznámka: | Info o ceně v RK |
| Číslo zakázky: | REALITYMIX-6726 |
Podrobné informace
- Plocha kanceláří: 816 m²
- Druh objektu: skeletová
- Stav objektu: novostavba
- Druh prostor: Výrobní
- Energetická náročnost budovy: C - Vyhovující
Mapa
* Umístění na mapě je na základě GPS informací dodaných realitní kanceláří.
* Pozice na mapě je pouze orientační.
Podobné nemovitosti
Pronájem - skladovací prostor, 9 825 m²
5. května, Veselá, Mladá Boleslav
Cena na vyžádání
Pronájem - výrobní prostor, 4 724 m²
Průmyslová, Benátky nad Jizerou II, Mladá Boleslav
Cena na vyžádání
Pronájem - skladovací prostor, 7 921 m²
Průmyslová, Benátky nad Jizerou II, Mladá Boleslav
Cena na vyžádání
Pronájem - výrobní prostor, 10 232 m²
Průmyslová, Benátky nad Jizerou II, Mladá Boleslav
Cena na vyžádání