Prodej - dům/vila, 118 m²
V Rákosí, Zaječice, Benešov
10 900 000 KčProdej - dům/vila, 118 m²
V Rákosí, Zaječice, Benešov
Prodej Rodinný dům, 118㎡
Hledáte klidné a úsporné bydlení kousek od Prahy?
Nabízíme ke koupi novostavbu krajní jednotky moderního trojdomu v obci Zaječice, která díky své poloze poskytuje maximum soukromí a komfort srovnatelný se samostatně stojícím domem.
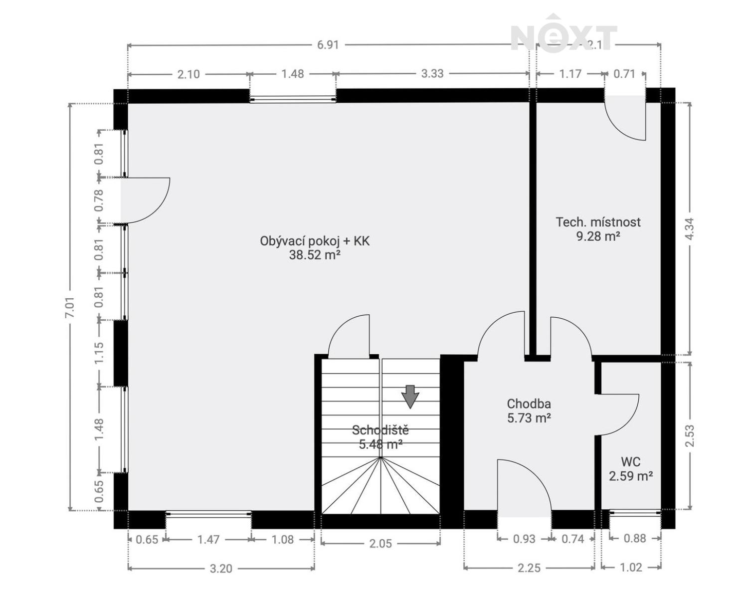
Dům o dispozici 4+kk a užitné ploše 118 m² nabízí promyšlené a funkční uspořádání.
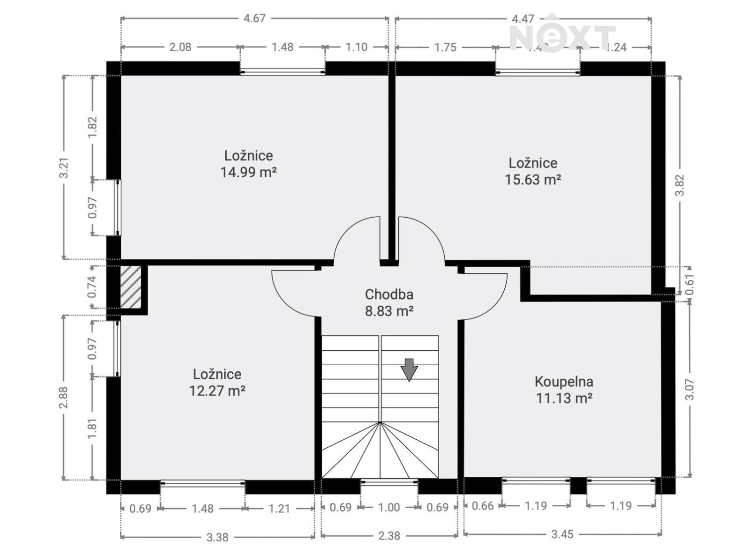
V přízemí se nachází prostorný obývací pokoj s krbovými kamny a přímým vstupem na zahradu, kuchyňský kout, technická místnost, samostatná toaleta a praktický úložný prostor pod schodištěm. V patře jsou tři samostatné ložnice a koupelna s vanou a toaletou.
K domu náleží zahrada o velikosti 280 m², ideální pro relaxaci, či rodinné posezení. Parkování je zajištěno dvěma venkovními stáními přímo u domu.
O vysoký komfort bydlení se stará elektrické podlahové vytápění, venkovní žaluzie a velmi nízké provozní náklady.
Lokalita nabízí klidné bydlení s výbornou dostupností – metro Háje je vzdáleno pouhých 20 minut jízdy autem, za 3 minuty jste na Benešovské a za další 3 minuty již jedete po dálnici D1. V nedalekých Senohrabech je i vlak s linkou na Prahu a kousek od domu jezdí i autobusy. Pro komunikaci uvádějte evidenční číslo zakázky N116021.
| Cena: | 10 900 000 Kč |
| Číslo zakázky: | REALITYMIX-116021 |
Podrobné informace
- Poloha objektu: samostatný
- Druh objektu: dřevěná
- Stav objektu: novostavba
- Počet podlaží objektu: 1
- Typ domu: patrový
- Užitná plocha: 118 m²
- Energetická náročnost budovy: B - Velmi úsporná
- Energetický ukazatel podle vyhlášky: č. 78/2013 Sb.
Právní rádce
-
Detail
V tomto článku shrneme nejdůležitější věci, které byste si měli promyslet, pokud se chystáte prodat svou nemovitost a chcete, abyste s kupujícím nemusel následně řešit vzniklé problémy.
Jako prodávající nesete rizika spojená nejen se samotným obchodem, ale i se stavem nemovitosti v době prodeje a pro minimalizaci rizik, je dobré se zamyslet nad uvedenými oblastmi.
-
Detail
Realitní makléř má své nezastupitelné místo v realitním obchodu. Realitním makléřem nemyslím nevzdělané jelito, které absolvovalo dvoudenní školení a ví, jak se nahraje inzerát na inzertní portál.
Realitním makléřem, který se Vám skutečně vyplatí, je zkušený profesionál, který je schopen Vám dobře poradit jak prodat za co nejvíc a s nejmenším rizikem a hlavně je Vás schopen obratně provést celým realitním obchodem.