Prodej - dům/vila, 25 m²
Hodonínská, Prušánky, Hodonín
4 990 000 KčProdej - dům/vila, 25 m²
Hodonínská, Prušánky, Hodonín
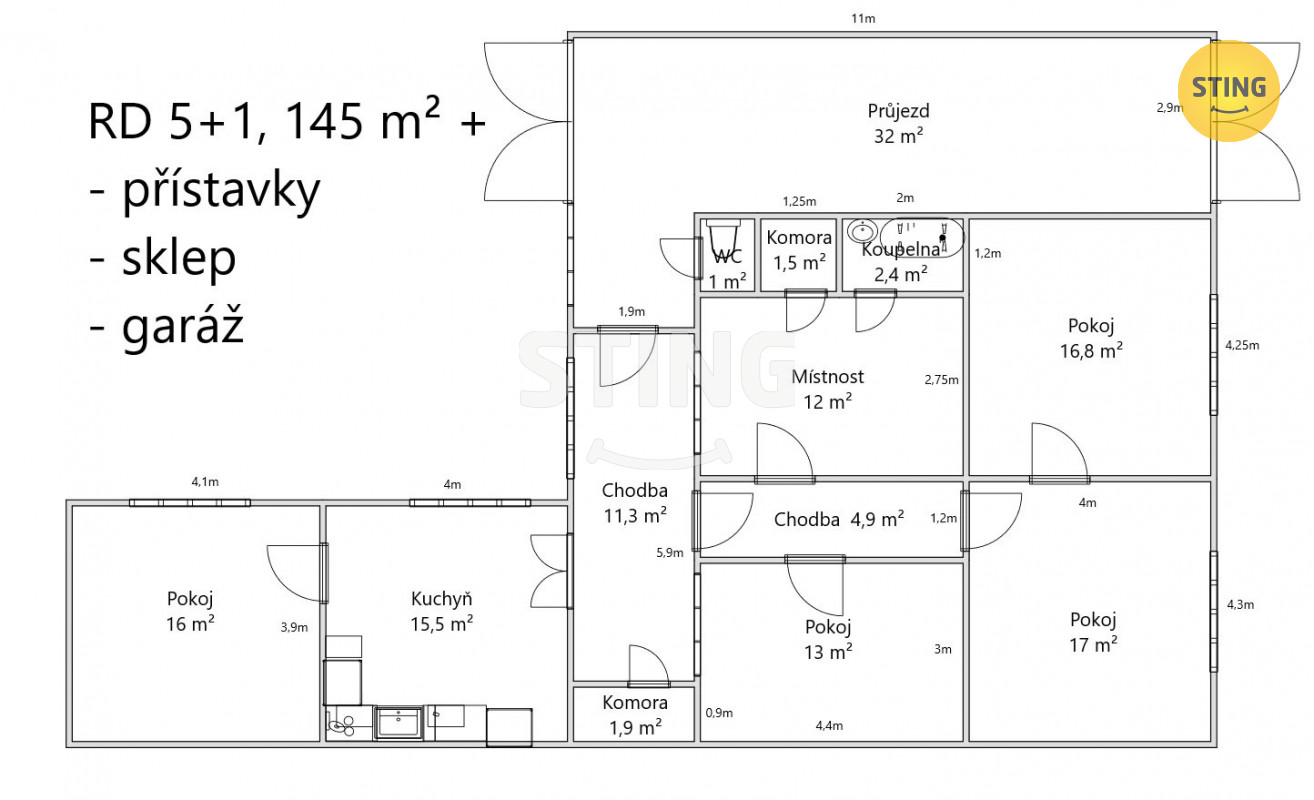
Exkluzivně vám nabízíme dům určený k rekonstrukci o dispozici 5+1 v Prušánkách.
Jedná se o řadový dům napojený na veškeré inženýrské sítě. Dispozice nabízí celkem 5 pokojů, což poskytuje dostatek prostoru i pro větší rodinu. Velkým benefitem je prostorný průjezd, který umožňuje pohodlné parkování až pro dvě auta.
Ve dvoře se dále nachází garáž, hospodářské stavení a menší zahrádka, která nabízí prostor pro relaxaci, pěstování nebo posezení s rodinou.
Dům je určený k rekonstrukci, což dává novému majiteli skvělou příležitost upravit si bydlení přesně podle vlastních představ. Zároveň je možné jej po menších úpravách využívat i k okamžitému bydlení.
Obec Prušánky disponuje kompletní občanskou vybaveností – nachází se zde škola, školka, obchody i další služby, což zajišťuje pohodlný každodenní život bez nutnosti dojíždění.
Pro více informací nebo domluvení prohlídky nás neváhejte kontaktovat. Do konce dubna 2026 nabízíme prostřednictvím našeho partnera úrokové sazby od 4,69 % p.a. Více informací Vám sdělí náš specialista na prohlídce.
| Cena: | 4 990 000 Kč |
| Poznámka: | uvedená cena platí při financování kupní ceny v hotovosti nebo úvěrem zprostředkovaným STING Finance |
| Číslo zakázky: | REALITYMIX-134744 |
Podrobné informace
- Poloha objektu: řadový
- Druh objektu: smíšená
- Stav objektu: před rekonstrukcí
- Počet podlaží objektu: 1
- Typ domu: přízemní
- Zastavěná plocha: 252 m²
- Plocha parcely: 594 m²
- Dílna: 25 m²
- Užitná plocha: 25 m²
- Ostatní: Plot
- Umístění objektu: centrum obce
- Doprava: silnice, autobus
- Občanská vybavenost: Škola, Školka, Zdravotnická zařízení, Pošta
- Elektřina: Elektro - 230 V
- Voda: Voda - rozvod studené a teplé vody
- Plyn: Plynovod
- Topení: Ústřední - plynové
- Odpad: Kanalizace
- Energetická náročnost budovy: G - Mimořádně nehospodárná
- Energetický ukazatel podle vyhlášky: č. 148/2007 Sb.
Právní rádce
-
Detail
V tomto článku shrneme nejdůležitější věci, které byste si měli promyslet, pokud se chystáte prodat svou nemovitost a chcete, abyste s kupujícím nemusel následně řešit vzniklé problémy.
Jako prodávající nesete rizika spojená nejen se samotným obchodem, ale i se stavem nemovitosti v době prodeje a pro minimalizaci rizik, je dobré se zamyslet nad uvedenými oblastmi.
-
Detail
Realitní makléř má své nezastupitelné místo v realitním obchodu. Realitním makléřem nemyslím nevzdělané jelito, které absolvovalo dvoudenní školení a ví, jak se nahraje inzerát na inzertní portál.
Realitním makléřem, který se Vám skutečně vyplatí, je zkušený profesionál, který je schopen Vám dobře poradit jak prodat za co nejvíc a s nejmenším rizikem a hlavně je Vás schopen obratně provést celým realitním obchodem.