Pronájem - skladovací prostor
Plynárenská, Příbram I, Příbram
127 490 Kč (za měsíc)Pronájem - skladovací prostor
Plynárenská, Příbram I, Příbram
127 490 Kč
(za měsíc)
G
Mimořádně nehospodárná
Pronájem skladového prostoru 1.159 m² + kanceláře 1.NP a 2. NP, Plynárenská, Příbram
Nabízíme moderní skladové a kancelářské prostory (1. NP a 2. NP) po rekonstrukci z roku 2014
vhodné pro výrobní, logistické či obchodní společnosti.
K nastěhování od 1. 4. 2026
Preferujeme pronájem celku (skladové i kancelářské prostory).
Základní údaje:
• Nájemné sklad: 110kč/m2
• Parkování: velký počet míst - dle dohody.
• Dopravní dostupnost: 4 minuty pěšky od zastávky Příbram, Plynárenská
• Minimální doba nájmu: 1rok s možností prodloužení
• Možnost úprav prostor dle potřeb nájemce: Ano
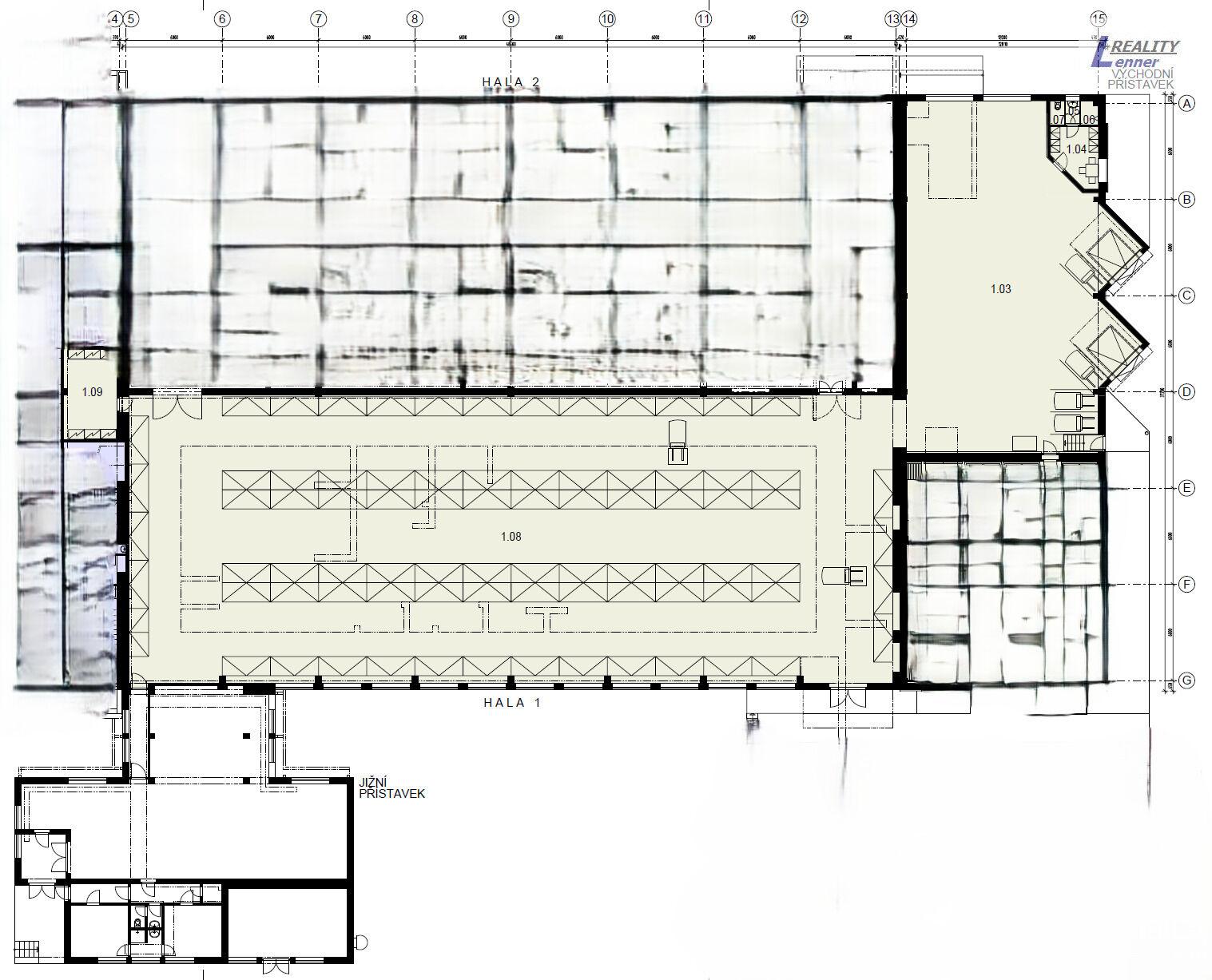
SKLADOVÉ PROSTORY - 1 159,45 m²
Parametry:
• Světla výška: 5m
• Typ podlahy skladu: házený a leštěný drákobeton
• Nosnost podlahy: 2000kg/ m2
• Vybavení: včetně regálového systému
• Zateplení: NE
• Nákladové vjezdy:
2x nakládací rampy SPEDOS vhodné pro vykládku přímo z auta
1x venkovní betovoná rampa s vraty
Volitelná možnost:
Jižní přístavek – 371,6 m²
Multifunkční prostor s infrastrukturou
Užitná plocha: 371,6 m²
Světlá výška: 3,0 m
Sociální zázemí: ano (kuchyňka, WC)
Vytápění: přípojka k dispozici
Voda: přípojka k dispozici
V případě zájmu volejte výhradně zprostředkovatele spravujícího tutu nemovitost.
vhodné pro výrobní, logistické či obchodní společnosti.
K nastěhování od 1. 4. 2026
Preferujeme pronájem celku (skladové i kancelářské prostory).
Základní údaje:
• Nájemné sklad: 110kč/m2
• Parkování: velký počet míst - dle dohody.
• Dopravní dostupnost: 4 minuty pěšky od zastávky Příbram, Plynárenská
• Minimální doba nájmu: 1rok s možností prodloužení
• Možnost úprav prostor dle potřeb nájemce: Ano
SKLADOVÉ PROSTORY - 1 159,45 m²
Parametry:
• Světla výška: 5m
• Typ podlahy skladu: házený a leštěný drákobeton
• Nosnost podlahy: 2000kg/ m2
• Vybavení: včetně regálového systému
• Zateplení: NE
• Nákladové vjezdy:
2x nakládací rampy SPEDOS vhodné pro vykládku přímo z auta
1x venkovní betovoná rampa s vraty
Volitelná možnost:
Jižní přístavek – 371,6 m²
Multifunkční prostor s infrastrukturou
Užitná plocha: 371,6 m²
Světlá výška: 3,0 m
Sociální zázemí: ano (kuchyňka, WC)
Vytápění: přípojka k dispozici
Voda: přípojka k dispozici
V případě zájmu volejte výhradně zprostředkovatele spravujícího tutu nemovitost.
| Cena: | 127 490 Kč / (za měsíc) |
| Poznámka: | + DPH, + energie (cca 10tis Kč), + vratná kauce 1 nájem, neplatíte provizi RK |
| Datum k nastěhování: | 01.04.2026 |
| Číslo zakázky: | REALITYMIX-N04105 |
Podrobné informace
- Druh objektu: cihlová
- Stav objektu: po rekonstrukci
- Druh prostor: Skladovací
- Umístění objektu: okraj obce
- Doprava: vlak, dálnice, silnice, MHD, autobus
- Komunikace: asfaltová
- Elektřina: Elektro - 230 V
- Telekomunikace: Telefon, Internet
- Topení: Lokální - elektrické, Jiné
- Odpad: Kanalizace
- Energetická náročnost budovy: G - Mimořádně nehospodárná
- Energetický ukazatel podle vyhlášky: č. 78/2013 Sb.
Mapa
* Umístění na mapě je na základě GPS informací dodaných realitní kanceláří.
* Pozice na mapě je pouze orientační.
Podobné nemovitosti
Pronájem - kanceláře, 21 m²
Novohospodská, Příbram IX, Příbram
5 000 Kč za měsíc
Pronájem - skladovací prostor, 5 668 m²
Dubno, Příbram
Cena na vyžádání
Pronájem - výrobní prostor, 1 000 m²
Obecnická, Příbram I, Příbram
Cena na vyžádání
Pronájem - skladovací prostor, 2 050 m²
Plynárenská, Příbram I, Příbram
110 Kč za m2/měsíc