Prodej - dům/vila, 69 m²
Zastávka, Plzeň-jih
4 500 000 KčProdej - dům/vila, 69 m²
Zastávka, Plzeň-jih
Prodej rodinného domu se zařízenou autodílnou - Zastávka u Přeštic
Základní informace:
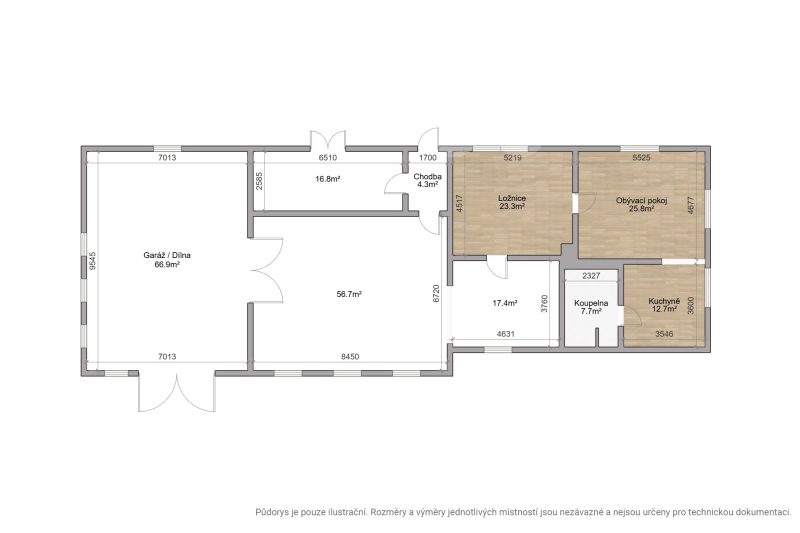
Dispozice: 2+kk
Užitná plocha domu: 69 m2;
Zastavěná plocha: necelých 250 m2;
Pozemek: 863 m2;
Topení: lokální na tuhá paliva
Voda: obecní vodovod
Odpad: septik
Plyn: není zaveden
Nemovitost se nachází v klidné lokalitě s dobrou dostupností do Přeštic i Plzně. Díky kombinaci bydlení a podnikatelského zázemí představuje ideální investici pro ty, kteří chtějí spojit práci s domovem.
Pro více informací nebo domluvení prohlídky nás neváhejte kontaktovat.
| Cena: | 4 500 000 Kč |
| Datum k nastěhování: | 27.03.2026 |
| Číslo zakázky: | REALITYMIX-234796 |
Podrobné informace
- Poloha objektu: samostatný
- Druh objektu: smíšená
- Stav objektu: dobrý
- Počet podlaží objektu: 1
- Typ domu: přízemní
- Zastavěná plocha: 863 m²
- Plocha parcely: 863 m²
- Zahrada: 613 m²
- Dílna: 126 m²
- Užitná plocha: 69 m²
- Doprava: vlak, silnice, autobus
- Elektřina: Elektro - 380 V
- Voda: Voda - dálkový vodovod
- Topení: Lokální - tuhá paliva
- Energetická náročnost budovy: G - Mimořádně nehospodárná
Právní rádce
-
Detail
V tomto článku shrneme nejdůležitější věci, které byste si měli promyslet, pokud se chystáte prodat svou nemovitost a chcete, abyste s kupujícím nemusel následně řešit vzniklé problémy.
Jako prodávající nesete rizika spojená nejen se samotným obchodem, ale i se stavem nemovitosti v době prodeje a pro minimalizaci rizik, je dobré se zamyslet nad uvedenými oblastmi.
-
Detail
Realitní makléř má své nezastupitelné místo v realitním obchodu. Realitním makléřem nemyslím nevzdělané jelito, které absolvovalo dvoudenní školení a ví, jak se nahraje inzerát na inzertní portál.
Realitním makléřem, který se Vám skutečně vyplatí, je zkušený profesionál, který je schopen Vám dobře poradit jak prodat za co nejvíc a s nejmenším rizikem a hlavně je Vás schopen obratně provést celým realitním obchodem.