Pronájem - kanceláře, 106,5 m²
Bozděchova, Praha 5, Smíchov
349 Kč (za m2/měsíc)Pronájem - kanceláře, 106,5 m²
Bozděchova, Praha 5, Smíchov
349 Kč
(za m2/měsíc)
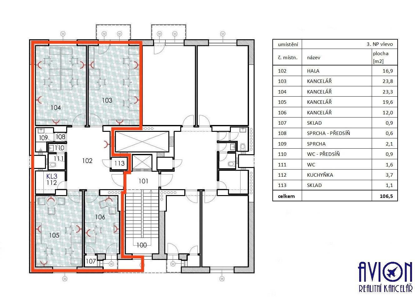
Zrekonstruované kancelářské prostory (4 kanceláře) 107 m2, Praha 5 - Smíchov, přímo u metra Anděl
Zrekonstruované kancelářské prostory ve 2. patře administrativní budovy v Praze 5 - Smíchově, přímo u metra Anděl, ul. Bozděchova. Celková plocha 107 m2 se skládá ze čtyř hlavních místností, tři velké kanceláře od 20 do 24 m2 a jedné menší o rozloze 12 m2, ze dvou kanceláří je vstup na balkony. Všechny kanceláře jsou neprůchozí a vstupuje se do nich z centrální haly. V prostorách se dále nachází vybavená kuchyňka, toalety a malý sklad. Celé prostory jsou pod společným uzamčením s přístupem na magnetickou kartu a jsou klimatizované.
Na podlahách jsou moderní světlé vinylové desky, kanceláře budou nově vymalované.
Možnost pronájmu i celého patra, tj. 8 kanceláří s příslušenstvím o celkové ploše 213 m2.
Možné využití nejlépe pro kancelářský provoz. Možnost pronájmu se systémovým kancelářským vybavením nebo jako prázdné.
Administrativní kancelářská budova s velmi pěknými vnitřními prostory disponuje recepcí a čtyřmi společnými jednacími místnostmi s možností rezervace, jejichž využívání je již zahrnuto v ceně nájmu. Objekt má 24/7 ostrahu.
Vynikající dopravní dostupnost přímo na dopravním uzlu na Andělu.
Energetickou třídu G uvádíme z formálních důvodů, po obdržení průkazu energetické náročnosti budovy bude uvedena skutečná hodnota.
Na podlahách jsou moderní světlé vinylové desky, kanceláře budou nově vymalované.
Možnost pronájmu i celého patra, tj. 8 kanceláří s příslušenstvím o celkové ploše 213 m2.
Možné využití nejlépe pro kancelářský provoz. Možnost pronájmu se systémovým kancelářským vybavením nebo jako prázdné.
Administrativní kancelářská budova s velmi pěknými vnitřními prostory disponuje recepcí a čtyřmi společnými jednacími místnostmi s možností rezervace, jejichž využívání je již zahrnuto v ceně nájmu. Objekt má 24/7 ostrahu.
Vynikající dopravní dostupnost přímo na dopravním uzlu na Andělu.
Energetickou třídu G uvádíme z formálních důvodů, po obdržení průkazu energetické náročnosti budovy bude uvedena skutečná hodnota.
| Cena: | 349 Kč / (za m2/měsíc) |
| Poznámka: | služby vč. energií cca 220 Kč/m2 |
| Číslo zakázky: | REALITYMIX-0958 |
Podrobné informace
- Plocha kanceláří: 106.5 m²
- Druh objektu: cihlová
- Stav objektu: po rekonstrukci
- Druh prostor: Kanceláře
- Umístění objektu: centrum obce
- Doprava: MHD
- Topení: Ústřední - dálkové
Mapa
* Umístění na mapě je na základě GPS informací dodaných realitní kanceláří.
* Pozice na mapě je pouze orientační.