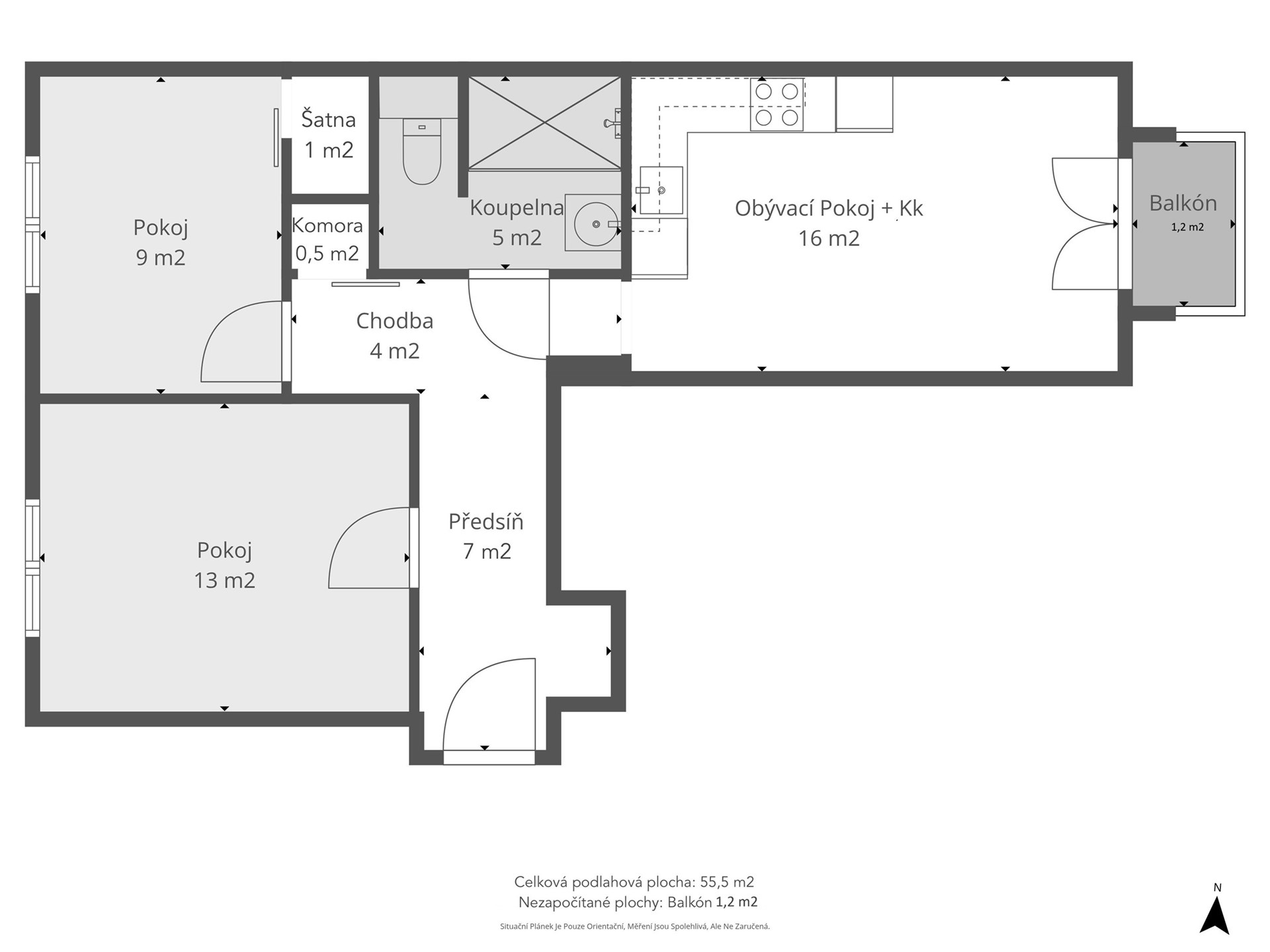
Prodej bytu, 3+kk, 58 m²
Poštovská, Praha 9, Vysočany
9 490 000 KčProdej bytu, 3+kk, 58 m²
Poštovská, Praha 9, Vysočany
Stylový designový byt 3+kk po kompletní rekonstrukci, 58 m² + balkon + sklep
Byt byl původně dispozičně řešen jako 2+1, avšak v rámci rekonstrukce došlo k promyšlené úpravě dispozice na moderní 3+kk, která lépe odpovídá současným nárokům na bydlení a nabízí praktičtější využití prostoru.
Tento byt nevznikl jako běžná „rychlá rekonstrukce“, ale jako promyšlený interiér navržený tak, aby působil elegantně a vizuálně sladěně v každém detailu. Kompletní rekonstrukce byla dokončena v lednu 2026 a byt od té doby nebyl obýván.
Rekonstrukce zahrnovala kompletní nové rozvody elektřiny, vody, kanalizace i topení, nové omítky a kvalitní třívrstvé dřevěné podlahy.
Dominantou bytu je kuchyň vyrobená na míru truhlářem, která je materiálově i barevně sladěná s dalším nábytkem v interiéru. Součástí jsou kvalitní spotřebiče značky ETA.
Byt dále nabízí bezfalcové interiérové dveře, moderní koupelnu s designovou epoxidovou stěrkou a nové bezpečnostní vstupní dveře třídy RC3.
Komfort bydlení zvyšuje také chytré vytápění s možností ovládání přes mobilní aplikaci a další praktické detaily, například magnetické zámky dveří.
Rekonstrukce byla realizována s cílem vytvořit kvalitní a dlouhodobé bydlení, nikoli jako levná úprava pro rychlý prodej či pronájem. Díky tomu byly použity kvalitní materiály a řešení bez kompromisů.
K bytu náleží balkon o velikosti 1,2 m² a dále také právo užívání sklepní kóje o velikosti přibližně 5 m², která poskytuje praktický úložný prostor.
Dům je v dobrém technickém stavu – v posledních letech prošel revitalizací, byla provedena nová zateplená fasáda včetně nových oken s trojskly a nová střecha.
Velkou výhodou je také výborná dopravní dostupnost. Stanice metra Vysočanská a Kolbenova (linka B) jsou vzdáleny přibližně 5 minut chůze od domu. V okolí se nachází také tramvajové a autobusové zastávky, obchody, restaurace a kompletní občanská vybavenost.
Byt se nachází přímo v oblasti Pragovky, která v posledních letech prochází výraznou proměnou v moderní městskou čtvrť. Vznikají zde galerie, kulturní prostory, kavárny, kanceláře i nová infrastruktura, což dlouhodobě zvyšuje atraktivitu celé lokality v rámci Prahy.
Díky kvalitní rekonstrukci, použitým materiálům a promyšlenému designu je byt ideální pro vlastní bydlení. Prodává se kompletně zařízený, takže je připraven k okamžitému nastěhování.
Pro více informací nebo domluvení prohlídky mě neváhejte kontaktovat na : + 420 608 150 516
| Cena: | 9 490 000 Kč |
| Datum k nastěhování: | 22.04.2026 |
| Dispozice/podlahová plocha: | 3+kk/58 m² |
| Číslo zakázky: | REALITYMIX-976195 |
Podrobné informace
- Dispozice bytu: 3+kk
- Číslo podlaží v domě: 4
- Počet podlaží objektu: 6
- Celková podlahová plocha: 58 m²
- Druh objektu: cihlová
- Stav objektu: po rekonstrukci
- Vlastnictví: osobní
- Balkon: 1 m²
- Sklep: ano
- Elektřina: Elektro - 230 V
- Voda: Zdroj pro celý objekt, Voda - dálkový vodovod
- Telekomunikace: Internet
- Odpad: Kanalizace
- Energetická náročnost budovy: C - Vyhovující
Právní rádce
-
Detail
V tomto článku shrneme nejdůležitější věci, které byste si měli promyslet, pokud se chystáte prodat svou nemovitost a chcete, abyste s kupujícím nemusel následně řešit vzniklé problémy.
Jako prodávající nesete rizika spojená nejen se samotným obchodem, ale i se stavem nemovitosti v době prodeje a pro minimalizaci rizik, je dobré se zamyslet nad uvedenými oblastmi.
-
Detail
Realitní makléř má své nezastupitelné místo v realitním obchodu. Realitním makléřem nemyslím nevzdělané jelito, které absolvovalo dvoudenní školení a ví, jak se nahraje inzerát na inzertní portál.
Realitním makléřem, který se Vám skutečně vyplatí, je zkušený profesionál, který je schopen Vám dobře poradit jak prodat za co nejvíc a s nejmenším rizikem a hlavně je Vás schopen obratně provést celým realitním obchodem.