Pronájem bytu, 3+kk, 86 m²
28. pluku, Praha 10, Vršovice
27 999 Kč (za měsíc)Pronájem bytu, 3+kk, 86 m²
28. pluku, Praha 10, Vršovice
27 999 Kč
(za měsíc)
G
Mimořádně nehospodárná
Pronájem světlého zrekonstruovaného bytu 3+kk, 28. pluku
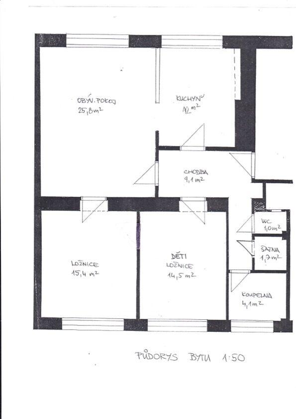
Nabízím pronájem zrekonstruovaného bytu o dispozici 3+kk a výměře 86m2, který se nachází ve 4. nadzemním podlaží udržovaného bytového domu.
V bytě najdete prostornou vstupní halu do "L", odkud se vstupuje do dalších místností. Byt disponuje prostorným obývacím pokojem s otevřenou kuchyní (kombinovaný plynový vařič s troubou, myčka, potravinová skříň, a dřevěná kuchyňská linka - lednici si nájemce zřizuje sám), následují 2 ložnice s orientací do klidné ulice. Následuje koupelna s vanou, umyvadlem a topným žebříkem, a oddělené WC s umyvadlem, dále pak komora s přípojkou na pračku/sušičku.
Zálohové platby činí 5.200,- a elektrická energie (cca 1.000,-) spolu s plynem (cca 300,-) se přepisují na nájemce. Zálohové platby jsou nastaveny pro 5 osob aktuálně.
Byt je k nastěhování ihned. V okolí je veškerá občanská vybavenost (MŠ, ZŠ, lékaři, Nákupní centrum Eden, restaurace, kavárny, MHD, železniční stanice..). Vršovice jsou skvělým místem k bydlení v klidné části plné zeleně s výbornou dostupností do centra Prahy.
Nájem: 28.000,-Kč
Zálohové platby: 5.200,-Kč + elektřina
Kauce: 28.000,-Kč
Provize: 28.000,- Kč + DPH 21 %
Pro více informací či při zájmu o prohlídku mě neváhejte kontaktovat.
V bytě najdete prostornou vstupní halu do "L", odkud se vstupuje do dalších místností. Byt disponuje prostorným obývacím pokojem s otevřenou kuchyní (kombinovaný plynový vařič s troubou, myčka, potravinová skříň, a dřevěná kuchyňská linka - lednici si nájemce zřizuje sám), následují 2 ložnice s orientací do klidné ulice. Následuje koupelna s vanou, umyvadlem a topným žebříkem, a oddělené WC s umyvadlem, dále pak komora s přípojkou na pračku/sušičku.
Zálohové platby činí 5.200,- a elektrická energie (cca 1.000,-) spolu s plynem (cca 300,-) se přepisují na nájemce. Zálohové platby jsou nastaveny pro 5 osob aktuálně.
Byt je k nastěhování ihned. V okolí je veškerá občanská vybavenost (MŠ, ZŠ, lékaři, Nákupní centrum Eden, restaurace, kavárny, MHD, železniční stanice..). Vršovice jsou skvělým místem k bydlení v klidné části plné zeleně s výbornou dostupností do centra Prahy.
Nájem: 28.000,-Kč
Zálohové platby: 5.200,-Kč + elektřina
Kauce: 28.000,-Kč
Provize: 28.000,- Kč + DPH 21 %
Pro více informací či při zájmu o prohlídku mě neváhejte kontaktovat.
| Cena: | 27 999 Kč / (za měsíc) |
| Datum k nastěhování: | 25.03.2026 |
| Dispozice/podlahová plocha: | 3+kk/86 m² |
| Číslo zakázky: | REALITYMIX-N01299 |
Podrobné informace
- Dispozice bytu: 3+kk
- Číslo podlaží v domě: 4
- Počet podlaží objektu: 6
- Užitná plocha: 86 m²
- Celková podlahová plocha: 86 m²
- Druh objektu: cihlová
- Stav objektu: velmi dobrý
- Vlastnictví: osobní
- Doprava: vlak, silnice, MHD, autobus
- Telekomunikace: Telefon, Internet
- Plyn: Plynovod
- Topení: Ústřední - dálkové
- Odpad: Kanalizace
- Ostatní rozvody: Satelit, Kabelová televize, Kabelové rozvody, Ostatní rozvody
- Energetická náročnost budovy: G - Mimořádně nehospodárná
- Energetický ukazatel podle vyhlášky: č. 264/2020 Sb.
Mapa
* Umístění na mapě je na základě GPS informací dodaných realitní kanceláří.
* Pozice na mapě je pouze orientační.
Podobné nemovitosti
Pronájem bytu, 3+kk, 53 m²
Topolová, Praha 10, Záběhlice
22 000 Kč za měsíc
Pronájem bytu, 3+kk, 87 m²
Baškirská, Praha 10, Vršovice
28 000 Kč za měsíc
Pronájem bytu, 3+kk, 58 m²
Nad Primaskou, Praha 10, Vinohrady
24 000 Kč za měsíc
Pronájem bytu, 3+kk, 57 m²
Šrobárova, Praha 10, Vinohrady
29 600 Kč za měsíc