Pronájem - obchodní prostor, 526 m²
Hybernská, Praha 1, Nové Město
203 000 Kč (za měsíc)Pronájem - obchodní prostor, 526 m²
Hybernská, Praha 1, Nové Město
203 000 Kč
(za měsíc)
G
Mimořádně nehospodárná
Pronájem nebytových prostor – 526 m², Hybernská 32, Praha 1 – Nové Město
Nabízíme k pronájmu reprezentativní nebytové prostory ve vyhledávané lokalitě centra Prahy, ulice Hybernská 32, Praha 1 – Nové Město, v bezprostřední blízkosti Masarykova nádraží, Florentina, Bílé labutě a Náměstí Republiky.
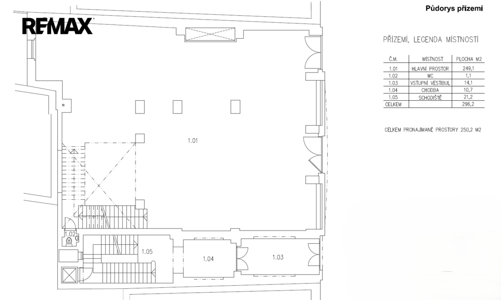
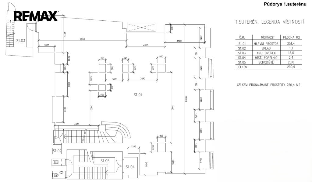
Prostory se nachází ve dvou podlažích – 1. nadzemní (260 m²) a 1. podzemní (266,4 m²), celkem tedy 526,4 m². Objekt má samostatné vstupy z ulice z hlavní ulice. Vhodné pro široké spektrum využití – gastronomii, showroom, studio, kanceláře, služby či kombinované provozy.
Hlavní parametry nabídky:
• Celková plocha: 526,4 m²
o 1NP: 260 m² (nájem 550 Kč/m²)
o 1PP: 266,4 m² (nájem 225 Kč/m²)
• Měsíční nájemné: 202.940 Kč + DPH
• Služby a provozní náklady: 100 Kč/m²/měs. + DPH
• Depozit: cca 900.000 Kč (3× nájem + 3× služby vč. DPH)
• Možnost vyjednat pronájmové prázdniny (2–4 měsíce)
• Indexace nájemného podle inflace (ročně)
• Doba pronájmu: dlouhodobě – 10 let
Stav a technické informace:
Prostory budou předány ve stavu shell & core – veškeré úpravy a vybavení provádí nájemce na vlastní náklady. Objekt disponuje novými přípojkami – voda, topení, elektroinstalace, klimatizace. Konečné rozvody a zařízení zajišťuje výhradně společnost Finox podle schváleného projektu.
Na technickém podlaží se nachází nová VZT jednotka dimenzovaná pro kapacitu až 302 osob, moderní plynová kotelna a nové venkovní jednotky klimatizace připojené ke každému podlaží (vnitřní rozvody si řeší nájemce).
Veškeré stavební a instalační zásahy vyžadují souhlas majitele. Kolaudaci zajišťuje nájemce samostatně, na základě plné moci majitele.
Lokalita a dopravní dostupnost:
• Pěší dostupnost: 3 min. od Masarykova nádraží, 5 min. od metra B (Nám. Republiky), tramvaje č. 3, 5, 6, 14
• Občanská vybavenost: banky, kavárny, restaurace, obchodní centra, hotely
• Prestižní komerční lokalita s vysokou frekvencí pěšího provozu
• V okolí sídla firem, coworkingy, školy i státní instituce Pronajímající si vyhrazuje právo vybrat nájemce na základě jím zvolených kritérií.
Prostory se nachází ve dvou podlažích – 1. nadzemní (260 m²) a 1. podzemní (266,4 m²), celkem tedy 526,4 m². Objekt má samostatné vstupy z ulice z hlavní ulice. Vhodné pro široké spektrum využití – gastronomii, showroom, studio, kanceláře, služby či kombinované provozy.
Hlavní parametry nabídky:
• Celková plocha: 526,4 m²
o 1NP: 260 m² (nájem 550 Kč/m²)
o 1PP: 266,4 m² (nájem 225 Kč/m²)
• Měsíční nájemné: 202.940 Kč + DPH
• Služby a provozní náklady: 100 Kč/m²/měs. + DPH
• Depozit: cca 900.000 Kč (3× nájem + 3× služby vč. DPH)
• Možnost vyjednat pronájmové prázdniny (2–4 měsíce)
• Indexace nájemného podle inflace (ročně)
• Doba pronájmu: dlouhodobě – 10 let
Stav a technické informace:
Prostory budou předány ve stavu shell & core – veškeré úpravy a vybavení provádí nájemce na vlastní náklady. Objekt disponuje novými přípojkami – voda, topení, elektroinstalace, klimatizace. Konečné rozvody a zařízení zajišťuje výhradně společnost Finox podle schváleného projektu.
Na technickém podlaží se nachází nová VZT jednotka dimenzovaná pro kapacitu až 302 osob, moderní plynová kotelna a nové venkovní jednotky klimatizace připojené ke každému podlaží (vnitřní rozvody si řeší nájemce).
Veškeré stavební a instalační zásahy vyžadují souhlas majitele. Kolaudaci zajišťuje nájemce samostatně, na základě plné moci majitele.
Lokalita a dopravní dostupnost:
• Pěší dostupnost: 3 min. od Masarykova nádraží, 5 min. od metra B (Nám. Republiky), tramvaje č. 3, 5, 6, 14
• Občanská vybavenost: banky, kavárny, restaurace, obchodní centra, hotely
• Prestižní komerční lokalita s vysokou frekvencí pěšího provozu
• V okolí sídla firem, coworkingy, školy i státní instituce Pronajímající si vyhrazuje právo vybrat nájemce na základě jím zvolených kritérií.
| Cena: | 203 000 Kč / (za měsíc) |
| Datum k nastěhování: | 30.06.2025 |
| Číslo zakázky: | REALITYMIX-416898 |
Podrobné informace
- Plocha kanceláří: 526 m²
- Druh objektu: cihlová
- Stav objektu: projekt
- Druh prostor: Obchodní
- Ostatní: Bezbarierový přístup
- Umístění objektu: centrum obce
- Plyn: Plynovod
- Energetická náročnost budovy: G - Mimořádně nehospodárná
- Energetický ukazatel podle vyhlášky: č. 264/2020 Sb.
Mapa
* Umístění na mapě je na základě GPS informací dodaných realitní kanceláří.
* Pozice na mapě je pouze orientační.
Podobné nemovitosti
Pronájem - obchodní prostor, 50 m²
Václavské náměstí, Praha 1, Nové Město
200 000 Kč za měsíc
Pronájem - obchodní prostor, 181 m²
Soukenická, Praha 1, Nové Město
195 000 Kč za měsíc
Pronájem - obchodní prostor, 510 m²
Na Florenci, Praha 1, Nové Město
163 356 Kč za měsíc
Pronájem - obchodní prostor, 32 m²
Václavské náměstí, Praha 1, Nové Město
200 000 Kč za měsíc