Pronájem bytu, 5+1, 197 m²
Pařížská, Praha 1, Josefov
120 000 Kč (za měsíc)Pronájem bytu, 5+1, 197 m²
Pařížská, Praha 1, Josefov
120 000 Kč
(za měsíc)
G
Mimořádně nehospodárná
Pronájem luxusního prostorného bytu 5+1 (200 m2), Praha 1 - Staré Město, Pařížská ulice, sauna
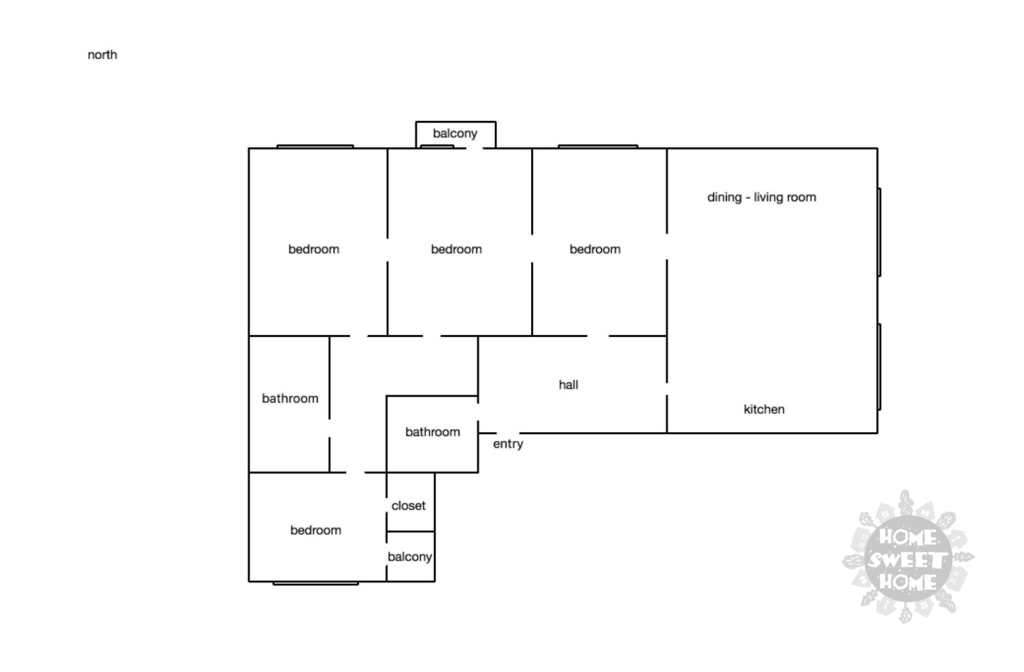
Nabízíme k pronájmu luxusní nezařízený byt o dispozici 5+1. Byt díky rozloze 200 m2 nabízí dostatek prostoru. Je situován ve 4. patře cihlového domu s výtahem v samotném centru Prahy nedaleko Staroměstského náměstí v nádherném domě na rohu Pařížské a Široké ulice.
Byt sestává z předsíně, ze čtyř ložnic, obývacího pokoje, kuchyně a dvou ložnic. Na stropech jsou krásné štuky. Kuchyně je vybavena všemi spotřebiči. V bytě se nachází 2 koupelny - v jedné je toaleta a sprchový kout a v druhé vana, toaleta a sauna. Zaveden je bezdrátový internet, satelitní televize a telefon, nechybí klimatizace. Na podlahách jsou krásné zachovalé parkety. Perfektní lokalita s vynikající dopravní dostupností a občanskou vybaveností. Metro A Staroměstská 5 minut od domu. V okolí bytu se nachází množství kulturních památek, divadla či starobylý židovský hřbitov.
Byt sestává z předsíně, ze čtyř ložnic, obývacího pokoje, kuchyně a dvou ložnic. Na stropech jsou krásné štuky. Kuchyně je vybavena všemi spotřebiči. V bytě se nachází 2 koupelny - v jedné je toaleta a sprchový kout a v druhé vana, toaleta a sauna. Zaveden je bezdrátový internet, satelitní televize a telefon, nechybí klimatizace. Na podlahách jsou krásné zachovalé parkety. Perfektní lokalita s vynikající dopravní dostupností a občanskou vybaveností. Metro A Staroměstská 5 minut od domu. V okolí bytu se nachází množství kulturních památek, divadla či starobylý židovský hřbitov.
| Cena: | 120 000 Kč / (za měsíc) |
| Poznámka: | + poplatky |
| Datum k nastěhování: | 01.11.2025 |
| Dispozice/podlahová plocha: | 5+1/197 m² |
| Číslo zakázky: | REALITYMIX-78703 |
Podrobné informace
- Dispozice bytu: 5+1
- Číslo podlaží v domě: 4
- Počet podlaží objektu: 5
- Užitná plocha: 197 m²
- Celková podlahová plocha: 197 m²
- Druh objektu: cihlová
- Stav objektu: velmi dobrý
- Vlastnictví: osobní
- Energetická náročnost budovy: G - Mimořádně nehospodárná
- Energetický ukazatel podle vyhlášky: č. 78/2013 Sb.
Mapa
* Umístění na mapě je na základě GPS informací dodaných realitní kanceláří.
* Pozice na mapě je pouze orientační.