Pronájem bytu, 3+kk, 78 m²
K Beranovu, Praha-Dolní Chabry, Dolní Chabry
31 900 Kč (za měsíc)Pronájem bytu, 3+kk, 78 m²
K Beranovu, Praha-Dolní Chabry, Dolní Chabry
31 900 Kč
(za měsíc)
Pronájem bytu 3+kk, K Beranovu, Dolní Chabry, 31900 Kč/měs, 78 m2
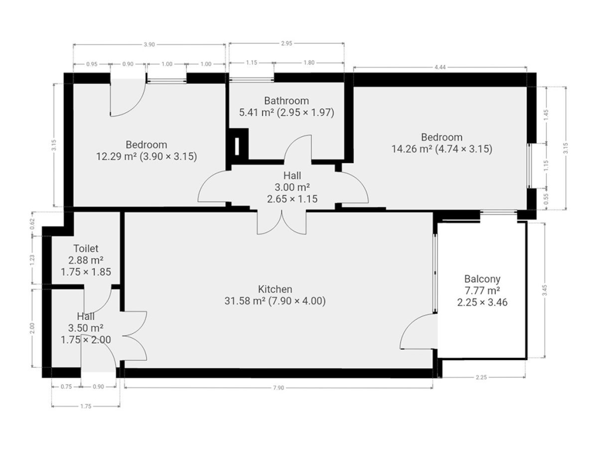
Tento moderní a prosluněný byt s dispozicí 3+kk nabízí ideální domov v klidné a oblíbené lokalitě Dolní Chabry. Nachází se ve 4. patře cihlové novostavby s výtahem a nabízí poklidný výhled. Výměra bytu činí 78 m2 a patří k němu balkon, sklep a garážové stání.
Byt je částečně vybaven, v kuchyni najdete lednici, myčku, troubu, varnou desku a digestoř. V ložnici je vestavěná skříň, zatímco obývací prostor zůstává nezařízený. Druhý pokoj může být využit jako kancelář nebo dětský pokoj. Chodba bytu je vybavena velkou vestavnou skříňí s dostatkem úložného prostoru. V koupelně je vana a toaleta, další samostatná toaleta je umístěna vedle.
Lokalita nabízí spoustu výhod. Nedaleko domu se nachází rozlehlé parky Čimický Háj a Ďáblický Háj, restaurace a obchody jako Penny a Lidl. V blízkosti jsou také základní a mateřské školy a lékárna. Autobusová zastávka Počeradská je vzdálena pouhých 4 minut chůze od domu a tramvajová stanice Vozovna Kobylisy je dostupná po 10 minutách chůze
Byt je k dispozici od 1.6.2026.
Uvedena energetická kategorie G, jelikož nemáme k dispozici PENB.
Byt pronajímá Ideální nájemce - služba, se kterou budete bydlet bezstarostně a za férových podmínek. Když se něco přihodí, k dispozici jsou správci, kteří s vámi vše vyřeší. Pomůžeme s veškerou administrativou, s nastavením plateb a zajistíme vám speciální pojištění. Pojďte bydlet s námi!
Byt je částečně vybaven, v kuchyni najdete lednici, myčku, troubu, varnou desku a digestoř. V ložnici je vestavěná skříň, zatímco obývací prostor zůstává nezařízený. Druhý pokoj může být využit jako kancelář nebo dětský pokoj. Chodba bytu je vybavena velkou vestavnou skříňí s dostatkem úložného prostoru. V koupelně je vana a toaleta, další samostatná toaleta je umístěna vedle.
Lokalita nabízí spoustu výhod. Nedaleko domu se nachází rozlehlé parky Čimický Háj a Ďáblický Háj, restaurace a obchody jako Penny a Lidl. V blízkosti jsou také základní a mateřské školy a lékárna. Autobusová zastávka Počeradská je vzdálena pouhých 4 minut chůze od domu a tramvajová stanice Vozovna Kobylisy je dostupná po 10 minutách chůze
Byt je k dispozici od 1.6.2026.
Uvedena energetická kategorie G, jelikož nemáme k dispozici PENB.
Byt pronajímá Ideální nájemce - služba, se kterou budete bydlet bezstarostně a za férových podmínek. Když se něco přihodí, k dispozici jsou správci, kteří s vámi vše vyřeší. Pomůžeme s veškerou administrativou, s nastavením plateb a zajistíme vám speciální pojištění. Pojďte bydlet s námi!
| Cena: | 31 900 Kč / (za měsíc) |
| Poznámka: | vratná jistota, náklady na bydlen 6065 Kč, poplatek za podnájem |
| Dispozice/podlahová plocha: | 3+kk/78 m² |
| Číslo zakázky: | REALITYMIX-3689 |
Podrobné informace
- Bezbariérový byt: ano
- Dispozice bytu: 3+kk
- Číslo podlaží v domě: 4
- Počet podlaží objektu: 5
- Celková podlahová plocha: 78 m²
- Druh objektu: cihlová
- Stav objektu: novostavba
- Vlastnictví: osobní
- Umístění objektu: klidná část obce
- Doprava: vlak, dálnice, silnice, MHD, autobus
- Občanská vybavenost: Škola, Školka, Zdravotnická zařízení, Pošta, Supermarket, Kompletní síť obchodů a služeb
- Elektřina: Elektro - 230 V
- Topení: Ústřední - dálkové
Mapa
* Umístění na mapě je na základě GPS informací dodaných realitní kanceláří.
* Pozice na mapě je pouze orientační.