Pronájem bytu, 2+kk, 49 m²
Ondrákové, Praha 5, Hlubočepy
22 000 Kč (za měsíc)Pronájem bytu, 2+kk, 49 m²
Ondrákové, Praha 5, Hlubočepy
22 000 Kč
(za měsíc)
B
Velmi úsporná
Pronájem bytu 2+kk s terasou a garážovým stáním
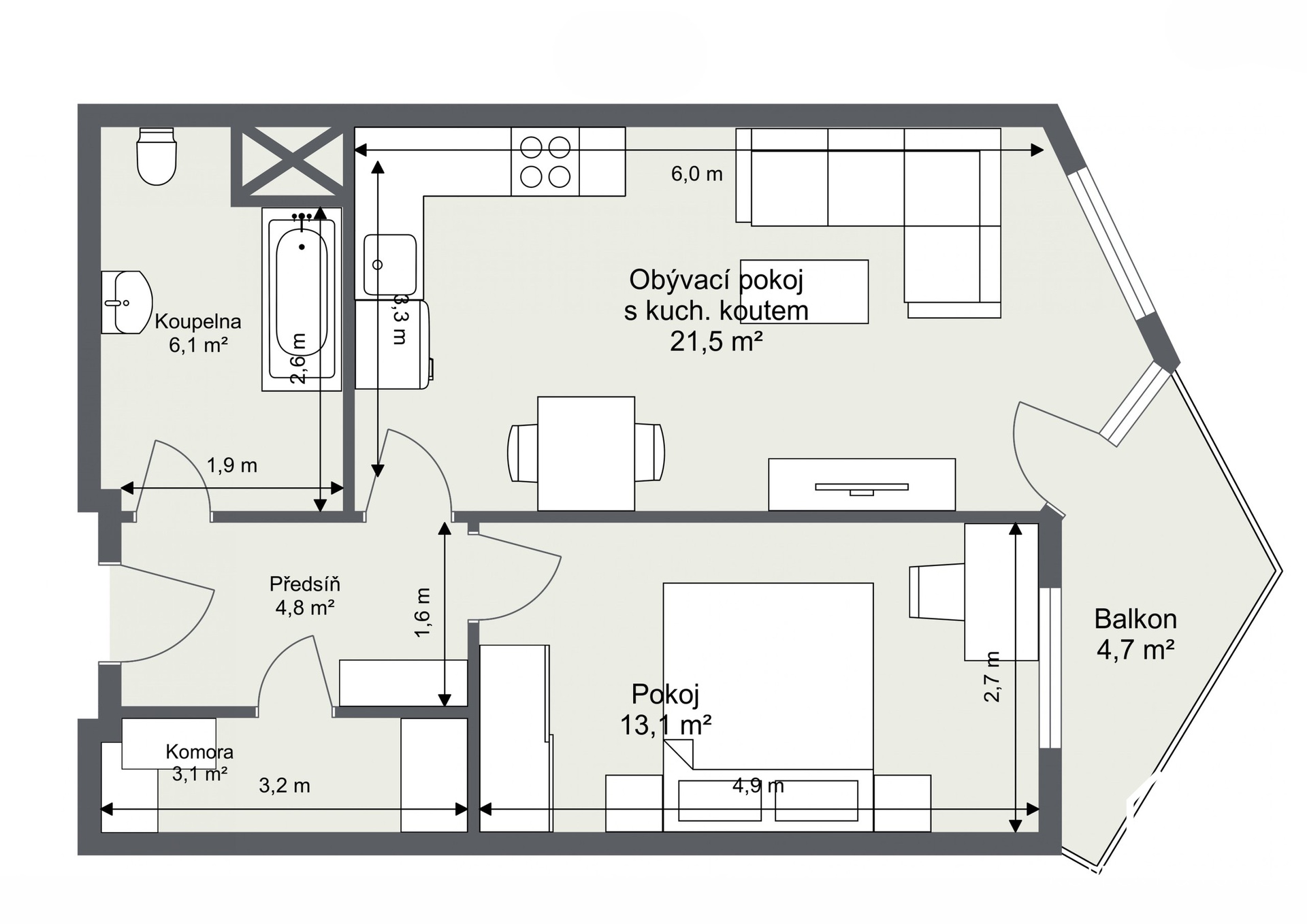
Nabízíme k pronájmu světlý a prakticky řešený byt o dispozici 2+kk a podlahové ploše 49 m², který se nachází ve velmi příjemné a vyhledávané lokalitě Praha 5 – Hlubočepy, v ulici Ondrákové. Součástí bytu je také terasa o velikosti 5 m², která příjemně rozšiřuje obytný prostor a nabízí ideální místo pro ranní kávu i odpočinek po náročném dni.
Byt zaujme svým funkčním uspořádáním i příjemnou atmosférou. Dominantou je obývací pokoj s kuchyňským koutem, ze kterého je přímý vstup na terasu. Kuchyňská linka je již součástí vybavení, což novému nájemci usnadní nastěhování i každodenní fungování. Praktickým benefitem bytu je také komora, která poskytuje cenný úložný prostor pro věci, které nechcete mít na očích, ale potřebujete je mít stále po ruce.
Velkou výhodou této nabídky je rovněž větší parkovací místo v garážích, které je k bytu k dispozici. Komfortní parkování oceníte nejen v rámci každodenního provozu, ale i z hlediska bezpečnosti a pohodlí.
Lokalita Praha – Hlubočepy patří dlouhodobě mezi oblíbené části metropole díky spojení klidnějšího bydlení s dobrou dostupností do centra města. V okolí naleznete potřebnou občanskou vybavenost i možnosti pro volnočasové aktivity, což z této adresy dělá velmi příjemné místo pro život.
Tento byt je skvělou volbou pro jednotlivce či pár, kteří hledají moderní bydlení s terasou, dostatkem úložného prostoru a vlastním parkováním v atraktivní pražské lokalitě.
Nájemné 22 000 Kč
Kauce 30 000 Kč
Provize 22 000 Kč + DPH
Zálohy na služby 3000 Kč
+ elektřinu si nájemník přihlašuje sám
V případě zájmu o více informací nebo sjednání prohlídky mě neváhejte kontaktovat.
Byt zaujme svým funkčním uspořádáním i příjemnou atmosférou. Dominantou je obývací pokoj s kuchyňským koutem, ze kterého je přímý vstup na terasu. Kuchyňská linka je již součástí vybavení, což novému nájemci usnadní nastěhování i každodenní fungování. Praktickým benefitem bytu je také komora, která poskytuje cenný úložný prostor pro věci, které nechcete mít na očích, ale potřebujete je mít stále po ruce.
Velkou výhodou této nabídky je rovněž větší parkovací místo v garážích, které je k bytu k dispozici. Komfortní parkování oceníte nejen v rámci každodenního provozu, ale i z hlediska bezpečnosti a pohodlí.
Lokalita Praha – Hlubočepy patří dlouhodobě mezi oblíbené části metropole díky spojení klidnějšího bydlení s dobrou dostupností do centra města. V okolí naleznete potřebnou občanskou vybavenost i možnosti pro volnočasové aktivity, což z této adresy dělá velmi příjemné místo pro život.
Tento byt je skvělou volbou pro jednotlivce či pár, kteří hledají moderní bydlení s terasou, dostatkem úložného prostoru a vlastním parkováním v atraktivní pražské lokalitě.
Nájemné 22 000 Kč
Kauce 30 000 Kč
Provize 22 000 Kč + DPH
Zálohy na služby 3000 Kč
+ elektřinu si nájemník přihlašuje sám
V případě zájmu o více informací nebo sjednání prohlídky mě neváhejte kontaktovat.
| Cena: | 22 000 Kč / (za měsíc) |
| Datum k nastěhování: | 20.04.2026 |
| Dispozice/podlahová plocha: | 2+kk/49 m² |
| Číslo zakázky: | REALITYMIX-2026011 |
Podrobné informace
- Dispozice bytu: 2+kk
- Číslo podlaží v domě: 5
- Počet podlaží objektu: 1
- Celková podlahová plocha: 49 m²
- Druh objektu: cihlová
- Stav objektu: novostavba
- Vlastnictví: osobní
- Terasa: 5 m²
- Vybaveno: ano
- Elektřina: Elektro - 230 V
- Voda: Voda - dálkový vodovod
- Odpad: Kanalizace
- Energetická náročnost budovy: B - Velmi úsporná
- Ukazatel energetické náročnosti budovy: 69 kWh/m²
- Energetický ukazatel podle vyhlášky: č. 264/2020 Sb.
Mapa
* Umístění na mapě je na základě GPS informací dodaných realitní kanceláří.
* Pozice na mapě je pouze orientační.
Podobné nemovitosti
Pronájem bytu, 2+kk, 64 m²
Za zámečkem, Praha 5, Jinonice
24 000 Kč za měsíc
Pronájem bytu, 2+kk, 45 m²
V remízku, Praha 5, Hlubočepy
17 500 Kč za měsíc
Pronájem bytu, 2+kk, 54 m²
Lidická, Praha 5, Smíchov
17 000 Kč za měsíc
Pronájem bytu, 2+kk, 44 m²
Wassermannova, Praha 5, Hlubočepy
19 500 Kč za měsíc