Pronájem bytu, 2+kk, 55 m²
Bořivojova, Praha 3, Žižkov
18 000 Kč (za měsíc)Pronájem bytu, 2+kk, 55 m²
Bořivojova, Praha 3, Žižkov
18 000 Kč
(za měsíc)
G
Mimořádně nehospodárná
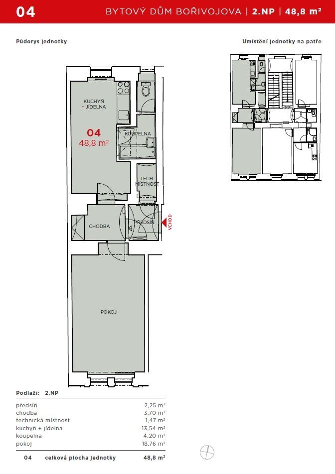
Pronájem bytu 2+kk, 48,8 m²
Nabízíme pronájem bytu 2+kk o výměře 48,8 m2 ve 2.NP po rekonstrukci. Byt je částečně vybaven, součástí je kuchyňská linka se sporákem, troubou, mikrovlnnou troubou a lednicí s mrazákem. V chodbě je vestavěná skříň. Byt je bez sklepu, součástí bytu je komora pro ukládání věcí.
Nájemci mohou využít přístup na společný dvorek ve vnitrobloku.
Topení je elektrické, byt má svůj elektrický kotel a bojler na ohřev vody.
Byt je k nastěhování IHNED.
Provize činí 9 000 Kč, vratná kauce je ve výši 30 000 Kč.
Elektřina není součástí poplatků a převádí se na nájemce. Elektřinou se topí, slouží i k ohřevu vody, osvětlení... (cca 5 000 Kč)
Poplatky bez elektřiny: 1 500 Kč/osoba, každá další osoba 500 Kč.
Dům je situován v širším centru města. V okolí domu je veškerá občanská vybavenost. V blízkosti bytu je MHD (tram, BUS a metro), tramvajová zastávka Lipanská je vzdálena 150 m, metro Jiřího z Poděbrad na Lince A je pak vzdáleno cca 10 min pěšky. V blízkém okolí jsou obchody s potravinami, restaurace i oblíbené kavárny. 5 minut autem je dostupné obchodní centrum Atrium Flora. V okolí domu je veškerá občanská vybavenost. Školy, školky dětská hřiště i oblíbená pražská divadla – Divadlo na Vinohradech a Žižkovské divadlo. V docházkové vzdálenosti se nachází oblíbené pražské parky, jako Riegerovy a Mahlerovy sady, Parukářka nebo vrh Vítkov.
Nájemci mohou využít přístup na společný dvorek ve vnitrobloku.
Topení je elektrické, byt má svůj elektrický kotel a bojler na ohřev vody.
Byt je k nastěhování IHNED.
Provize činí 9 000 Kč, vratná kauce je ve výši 30 000 Kč.
Elektřina není součástí poplatků a převádí se na nájemce. Elektřinou se topí, slouží i k ohřevu vody, osvětlení... (cca 5 000 Kč)
Poplatky bez elektřiny: 1 500 Kč/osoba, každá další osoba 500 Kč.
Dům je situován v širším centru města. V okolí domu je veškerá občanská vybavenost. V blízkosti bytu je MHD (tram, BUS a metro), tramvajová zastávka Lipanská je vzdálena 150 m, metro Jiřího z Poděbrad na Lince A je pak vzdáleno cca 10 min pěšky. V blízkém okolí jsou obchody s potravinami, restaurace i oblíbené kavárny. 5 minut autem je dostupné obchodní centrum Atrium Flora. V okolí domu je veškerá občanská vybavenost. Školy, školky dětská hřiště i oblíbená pražská divadla – Divadlo na Vinohradech a Žižkovské divadlo. V docházkové vzdálenosti se nachází oblíbené pražské parky, jako Riegerovy a Mahlerovy sady, Parukářka nebo vrh Vítkov.
| Cena: | 18 000 Kč / (za měsíc) |
| Poznámka: | Uvedená cena je bez poplatků |
| Datum k nastěhování: | 18.01.2026 |
| Dispozice/podlahová plocha: | 2+kk/55 m² |
| Číslo zakázky: | REALITYMIX-BORI 4 |
Podrobné informace
- Dispozice bytu: 2+kk
- Číslo podlaží v domě: 3
- Celková podlahová plocha: 55 m²
- Druh objektu: cihlová
- Stav objektu: po rekonstrukci
- Vlastnictví: osobní
- Vybaveno: ano
- Elektřina: Elektro - 230 V
- Energetická náročnost budovy: G - Mimořádně nehospodárná
- Popis vybavení: .
Mapa
* Umístění na mapě je na základě GPS informací dodaných realitní kanceláří.
* Pozice na mapě je pouze orientační.
Podobné nemovitosti
Pronájem bytu, 2+kk, 56 m²
Boleslavská, Praha 3, Vinohrady
17 990 Kč za měsíc
Pronájem bytu, 2+kk, 49 m²
Šrobárova, Praha 3, Vinohrady
19 000 Kč za měsíc
Pronájem bytu, 2+kk, 45 m²
Biskupcova, Praha 3, Žižkov
18 000 Kč za měsíc
Pronájem bytu, 2+kk, 47 m²
Ambrožova, Praha 3, Žižkov
17 000 Kč za měsíc