Pronájem bytu, 2+1, 61 m²
Tupolevova, Praha 18, Letňany
22 500 Kč (za měsíc)Pronájem bytu, 2+1, 61 m²
Tupolevova, Praha 18, Letňany
22 500 Kč
(za měsíc)
G
Mimořádně nehospodárná
Pronájem bytu 2+1, Tupolevova, Letňany, 22500 Kč/měs, 61 m2
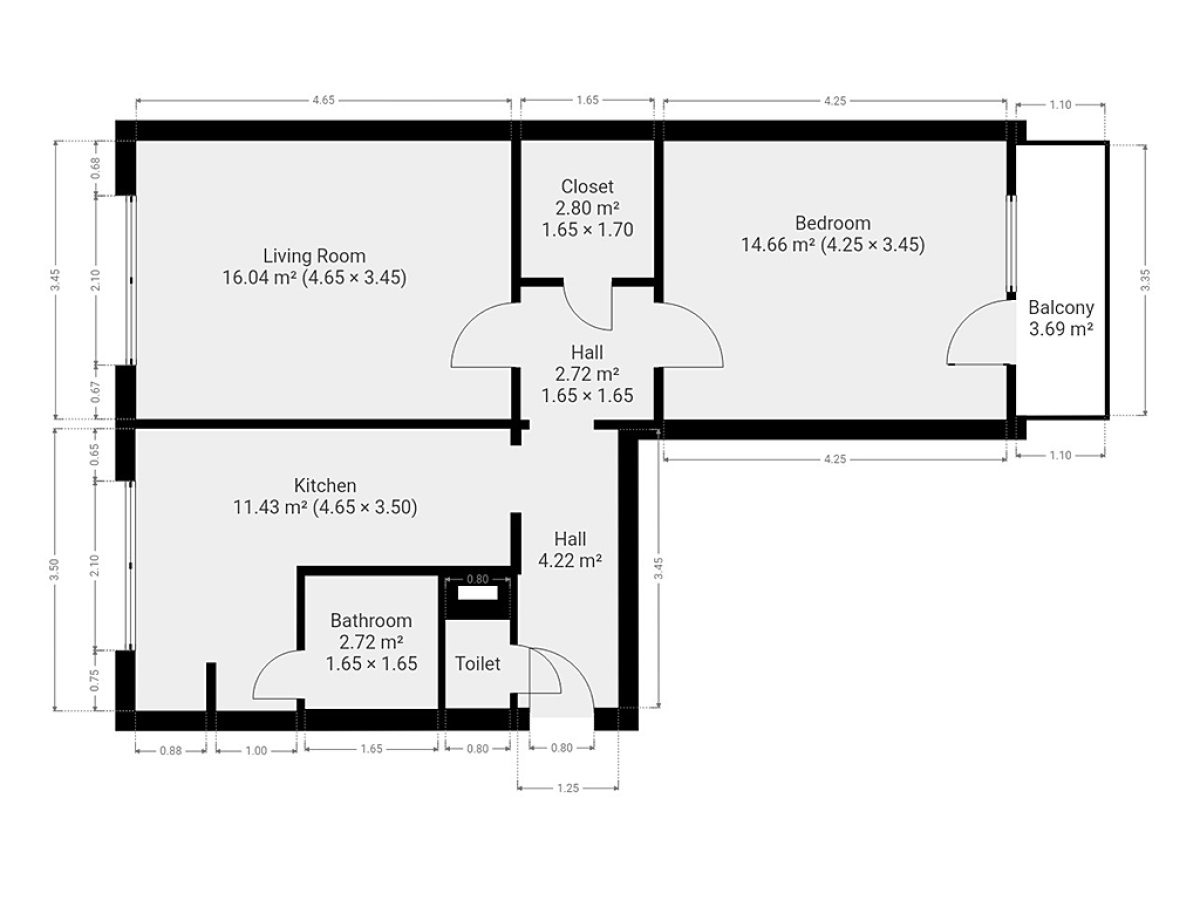
Nabízíme k dlouhodobému podnájmu útulný a světlý byt o dispozici 2+1 s výměrou 61 m², který se nachází v 6. patře udržovaného panelového domu s výtahem. K bytu náleží balkon a také praktický sklep.
Byt je pronajímán nezařízený, což dává novému podnájemníkovi možnost přizpůsobit si interiér dle vlastního vkusu.
Kuchyňská linka je vybavena lednicí s mrazákem, elektrickou troubou, plynovou varnou deskou, digestoří a jídelním koutem. Obývací pokoj nabízí světlý a prostorný interiér, doplněný moderním křeslem a menším stolkem. Další samostatný pokoj je vhodný například jako ložnice. Koupelna disponuje sprchovým koutem, umyvadlem a pračkou, toaleta je řešena odděleně.
Součástí bytu je také menší místnost, kterou lze využít jako šatnu či úložný prostor.
V bezprostředním okolí domu je kompletní občanská vybavenost – obchodní centrum Letňany, supermarket Lidl, školy a školky, poliklinika, restaurace, kavárny i dětská hřiště. K odpočinku a volnočasovým aktivitám je ideální Lesopark Letňany, vzdálený jen několik minut chůze.
Dopravní dostupnost je výborná – v docházkové vzdálenosti se nachází stanice metra C – Letňany a několik autobusových zastávek.
Byt je k nastěhování od 1. 8. 2026.
Energetická třída: G (průkaz nedodán).
Byt je pronajímán nezařízený, což dává novému podnájemníkovi možnost přizpůsobit si interiér dle vlastního vkusu.
Kuchyňská linka je vybavena lednicí s mrazákem, elektrickou troubou, plynovou varnou deskou, digestoří a jídelním koutem. Obývací pokoj nabízí světlý a prostorný interiér, doplněný moderním křeslem a menším stolkem. Další samostatný pokoj je vhodný například jako ložnice. Koupelna disponuje sprchovým koutem, umyvadlem a pračkou, toaleta je řešena odděleně.
Součástí bytu je také menší místnost, kterou lze využít jako šatnu či úložný prostor.
V bezprostředním okolí domu je kompletní občanská vybavenost – obchodní centrum Letňany, supermarket Lidl, školy a školky, poliklinika, restaurace, kavárny i dětská hřiště. K odpočinku a volnočasovým aktivitám je ideální Lesopark Letňany, vzdálený jen několik minut chůze.
Dopravní dostupnost je výborná – v docházkové vzdálenosti se nachází stanice metra C – Letňany a několik autobusových zastávek.
Byt je k nastěhování od 1. 8. 2026.
Energetická třída: G (průkaz nedodán).
| Cena: | 22 500 Kč / (za měsíc) |
| Poznámka: | vratná jistota, náklady na bydlení 6337 Kč, poplatek za podnájem 29000 Kč |
| Dispozice/podlahová plocha: | 2+1/61 m² |
| Číslo zakázky: | REALITYMIX-6738 |
Podrobné informace
- Dispozice bytu: 2+1
- Číslo podlaží v domě: 6
- Počet podlaží objektu: 8
- Celková podlahová plocha: 61 m²
- Druh objektu: panelová
- Stav objektu: velmi dobrý
- Vlastnictví: družstevní
- Umístění objektu: klidná část obce
- Doprava: silnice, MHD, autobus
- Občanská vybavenost: Škola, Školka, Zdravotnická zařízení, Pošta, Supermarket, Kompletní síť obchodů a služeb
- Elektřina: Elektro - 230 V
- Topení: Ústřední - dálkové
- Energetická náročnost budovy: G - Mimořádně nehospodárná
Mapa
* Umístění na mapě je na základě GPS informací dodaných realitní kanceláří.
* Pozice na mapě je pouze orientační.
Podobné nemovitosti
Pronájem bytu, 2+1, 58 m²
Nepomuckých, Praha 18, Letňany
22 000 Kč za měsíc
Pronájem bytu, 2+kk, 45 m²
Krausova, Praha 18, Letňany
16 900 Kč za měsíc
Pronájem bytu, 2+kk, 65 m²
Pavla Beneše, Praha 18, Letňany
28 000 Kč za měsíc
Pronájem bytu, 2+kk, 59 m²
Pavla Beneše, Praha 18, Letňany
28 000 Kč za měsíc