Pronájem bytu, 2+1, 55 m²
Emilie Hyblerové, Praha 11, Háje
22 000 Kč (za měsíc)Pronájem bytu, 2+1, 55 m²
Emilie Hyblerové, Praha 11, Háje
22 000 Kč
(za měsíc)
G
Mimořádně nehospodárná
Pronájem bytu 2+1 s lodžií: Praha 4 - Háje, Emílie Hyblerové
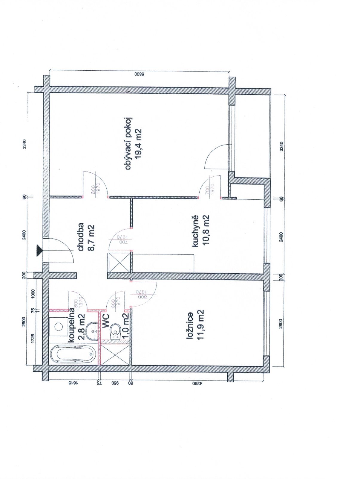
Nabízíme k pronájmu kompletně zrekonstruovaný byt 2+1 s lodžií ve 3. patře panelového domu bez výtahu, ve velice pěkné lokalitě Prahy 4, přímo u stanice metra Háje. Byt s celkovou plochou 55 m2 a lodžií 3,1 m2 nabízí samostatnou plně vybavenou kuchyň s novou kuchyňskou linkou a spotřebiči (indukční deska, trouba, myčka, digestoř a lednice), obývací pokoj, ložnici, koupelnu s vanou a samostatnou toaletu. Všechny místnosti jsou orientované na jih. V bytě je ústřední topení, nové vinylové podlahy, dlažba, bezpečnostní dveře, interiérové dveře a trojkomorová okna. K bytu náleží sklep o velikosti 2,7 m2. Celý dům je nově zateplený a je situován v poměrně klidné lokalitě plné zeleně, s výbornou dopravní dostupností a občanskou vybaveností. Stanice metra linky C Háje je jen pár metrů od domu, stejně jako stanice autobusů MHD a cesta do centra trvá několik minut autem či metrem. V blízkém okolí se nachází jedno z největších nákupních center Westfield Chodov, multikino Cinema City Galaxie, Hostivařská přehrada a také Milíčovský les s rybníky, který je ideálním místem pro relaxaci. K nastěhování od 1.6. 2026. Pro více informací volejte prosím paní Synkovou 777282179.
Za zprostředkování prnájmu si účtujeme provizi ve výši 1 měsíčního nájmu + 21%DPH.
Za zprostředkování prnájmu si účtujeme provizi ve výši 1 měsíčního nájmu + 21%DPH.
| Cena: | 22 000 Kč / (za měsíc) |
| Poznámka: | + poplatky 6000 Kč/2 osoby, jistota 2 měsíční nájmy |
| Dispozice/podlahová plocha: | 2+1/55 m² |
| Číslo zakázky: | REALITYMIX-008571 |
Podrobné informace
- Dispozice bytu: 2+1
- Číslo podlaží v domě: 4
- Počet podlaží objektu: 1
- Užitná plocha: 58 m²
- Celková podlahová plocha: 55 m²
- Druh objektu: dřevěná
- Stav objektu: velmi dobrý
- Vlastnictví: osobní
- Umístění objektu: sídliště
- Energetická náročnost budovy: G - Mimořádně nehospodárná
- Energetický ukazatel podle vyhlášky: č. 264/2020 Sb.
Mapa
* Umístění na mapě je na základě GPS informací dodaných realitní kanceláří.
* Pozice na mapě je pouze orientační.