Pronájem bytu, 2+1, 50 m²
Púchovská, Praha 4, Záběhlice
20 000 Kč (za měsíc)Pronájem bytu, 2+1, 50 m²
Púchovská, Praha 4, Záběhlice
20 000 Kč
(za měsíc)
G
Mimořádně nehospodárná
Pronájem bytu 2+1, Púchovská, Záběhlice, 20000 Kč/měs, 50 m2
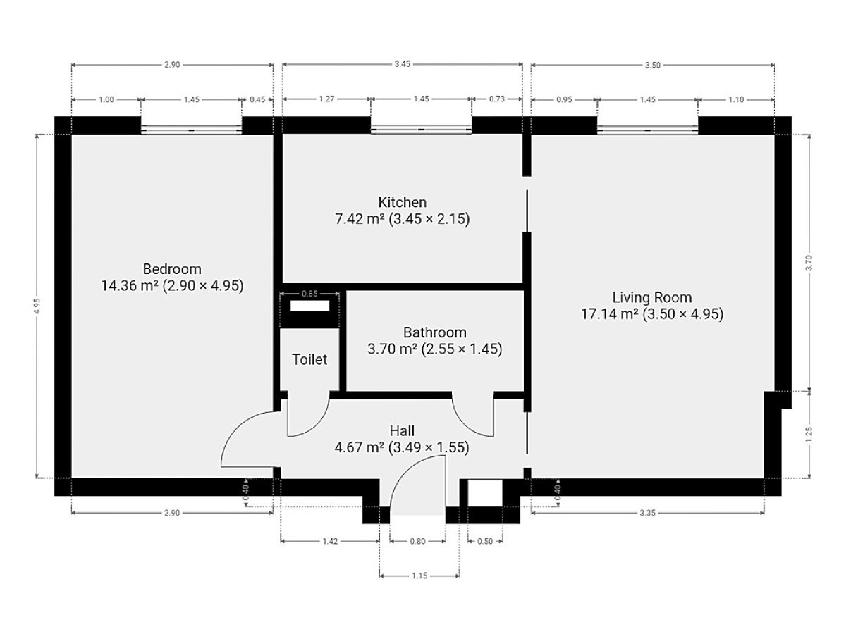
K dlouhodobému podnájmu nabízíme krásný byt o dispozici 2+1 v klidné lokalitě Praha 4 - Záběhlice. Byt o celkové výměře 50 m2 se nachází v 1. patře cihlového domu bez výtahu. K bytu patří i sklep a obyvatelům domu je k dispozici kočárkárna.
Byt se nabízí částečně vybavený. Kuchyně disponuje lednicí, myčkou, elektrickou troubou, varnou deskou, mikrovlnnou troubou, digestoří a jídelním stolem s 2 židlemi. Obývací pokoj je nezařízený. Součástí ložnice je vestavěná šatní skříň. V koupelně je vana , umyvadlo a zrcadlo. Toaleta je umístěna samostatně. V předsíni, kuchyni, koupelně a WC dlažba, v obývacím pokoji a ložnici plovoucí podlahy, ústřední vytápění i ohřev vody, přípojka na internet.
V okolí domu najdeme jedno z největších parkových náměstí v Praze, protínané dvěma alejovými třídami, které spolu s revitalizovaným prostorem náměstí vytvářejí park ve tvaru kříže. Obvod náměstí je lemován obytnými, převážně rodinnými domy, v přízemí některých jsou obchody či jiné provozovny. Střed celého prostoru je tvořen zelení, v severnější části se nacházejí dětská hřiště. V blízkosti domu se také nachází prodejna Tesco Expres, základní a mateřská škola, poliklinika s lékárnou, cukrárna, OD Centrum s širokou nabídkou obchodů a služeb atd. Čtyři minuty chůze od domu je vzdálena autobusová zastávka Spořilov (10 minut jízdy na stanici metra Budějovická). Velkou výhodou lokality je, že zde nejsou parkovací zóny.
Byt je volný k nastěhování od 01.05.2026.
Energetická třída: G (neuvedeno).
Byt se nabízí částečně vybavený. Kuchyně disponuje lednicí, myčkou, elektrickou troubou, varnou deskou, mikrovlnnou troubou, digestoří a jídelním stolem s 2 židlemi. Obývací pokoj je nezařízený. Součástí ložnice je vestavěná šatní skříň. V koupelně je vana , umyvadlo a zrcadlo. Toaleta je umístěna samostatně. V předsíni, kuchyni, koupelně a WC dlažba, v obývacím pokoji a ložnici plovoucí podlahy, ústřední vytápění i ohřev vody, přípojka na internet.
V okolí domu najdeme jedno z největších parkových náměstí v Praze, protínané dvěma alejovými třídami, které spolu s revitalizovaným prostorem náměstí vytvářejí park ve tvaru kříže. Obvod náměstí je lemován obytnými, převážně rodinnými domy, v přízemí některých jsou obchody či jiné provozovny. Střed celého prostoru je tvořen zelení, v severnější části se nacházejí dětská hřiště. V blízkosti domu se také nachází prodejna Tesco Expres, základní a mateřská škola, poliklinika s lékárnou, cukrárna, OD Centrum s širokou nabídkou obchodů a služeb atd. Čtyři minuty chůze od domu je vzdálena autobusová zastávka Spořilov (10 minut jízdy na stanici metra Budějovická). Velkou výhodou lokality je, že zde nejsou parkovací zóny.
Byt je volný k nastěhování od 01.05.2026.
Energetická třída: G (neuvedeno).
| Cena: | 20 000 Kč / (za měsíc) |
| Poznámka: | vratná jistota, náklady na bydlení 6099 Kč, poplatek za podnájem |
| Dispozice/podlahová plocha: | 2+1/50 m² |
| Číslo zakázky: | REALITYMIX-4739 |
Podrobné informace
- Dispozice bytu: 2+1
- Číslo podlaží v domě: 2
- Počet podlaží objektu: 4
- Celková podlahová plocha: 50 m²
- Druh objektu: cihlová
- Stav objektu: velmi dobrý
- Vlastnictví: osobní
- Umístění objektu: klidná část obce
- Doprava: vlak, dálnice, silnice, MHD, autobus
- Občanská vybavenost: Škola, Školka, Zdravotnická zařízení, Pošta, Supermarket, Kompletní síť obchodů a služeb
- Elektřina: Elektro - 230 V
- Voda: Voda - dálkový vodovod
- Topení: Ústřední - dálkové
- Energetická náročnost budovy: G - Mimořádně nehospodárná
Mapa
* Umístění na mapě je na základě GPS informací dodaných realitní kanceláří.
* Pozice na mapě je pouze orientační.