Pronájem bytu, 1+kk, 20 m²
Soběslavská, Praha 3, Vinohrady
14 000 Kč (za měsíc)Pronájem bytu, 1+kk, 20 m²
Soběslavská, Praha 3, Vinohrady
14 000 Kč
(za měsíc)
G
Mimořádně nehospodárná
Pronájem bytu 1+kk, Soběslavská, Vinohrady, 14000 Kč/měs, 20 m2
Nabízíme k podnájmu vybavený byt 1+kk o velikosti 20 m², který se nachází ve 3. patře cihlového domu s výtahem. Byt je ideální pro jednotlivce nebo pár hledající klidné bydlení v atraktivní lokalitě s výbornou dopravní dostupností.
Při vstupu do bytu je k dispozici menší šatní skříň a botník. Hlavní obytná místnost je propojena s kuchyňským koutem, kde se nachází trouba, varná deska, varná konvice a lednice. V pokoji jsou praktické úložné skříňky a rozkládací sedací souprava vhodná ke každodennímu spaní.
Byt se nachází v žádané lokalitě pražských Vinohrad. Stanice metra A – Želivského je vzdálena 4 minuty chůze, tramvajová zastávka Olšanské hřbitovy je taktéž do 4 minut. Obchodní centrum Flora je vzdálené cca 15 minut chůze. V okolí najdete množství kaváren, restaurací a obchodů.
Byt je volný od 01.06.2026.
Uvedena energetická kategorie G, jelikož nemáme k dispozici PENB.
Byt pronajímá Ideální nájemce - služba, se kterou budete bydlet bezstarostně a za férových podmínek. Když se něco přihodí, k dispozici jsou správci, kteří s vámi vše vyřeší. Pomůžeme s veškerou administrativou, s nastavením plateb a zajistíme vám speciální pojištění. Pojďte bydlet s námi!
Při vstupu do bytu je k dispozici menší šatní skříň a botník. Hlavní obytná místnost je propojena s kuchyňským koutem, kde se nachází trouba, varná deska, varná konvice a lednice. V pokoji jsou praktické úložné skříňky a rozkládací sedací souprava vhodná ke každodennímu spaní.
Byt se nachází v žádané lokalitě pražských Vinohrad. Stanice metra A – Želivského je vzdálena 4 minuty chůze, tramvajová zastávka Olšanské hřbitovy je taktéž do 4 minut. Obchodní centrum Flora je vzdálené cca 15 minut chůze. V okolí najdete množství kaváren, restaurací a obchodů.
Byt je volný od 01.06.2026.
Uvedena energetická kategorie G, jelikož nemáme k dispozici PENB.
Byt pronajímá Ideální nájemce - služba, se kterou budete bydlet bezstarostně a za férových podmínek. Když se něco přihodí, k dispozici jsou správci, kteří s vámi vše vyřeší. Pomůžeme s veškerou administrativou, s nastavením plateb a zajistíme vám speciální pojištění. Pojďte bydlet s námi!
| Cena: | 14 000 Kč / (za měsíc) |
| Poznámka: | vratná jistota, náklady na bydlení 4 512 Kč, poplatek za podnájem |
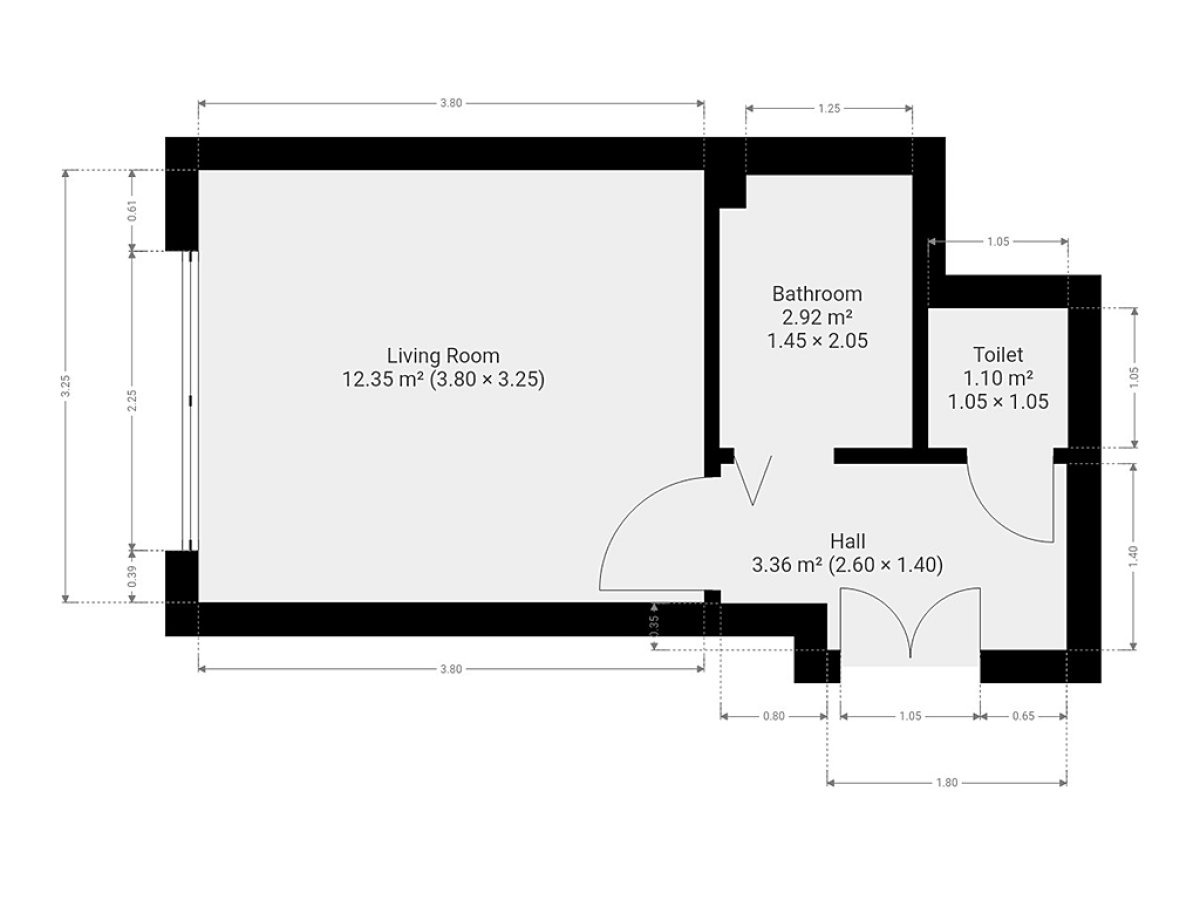
| Dispozice/podlahová plocha: | 1+kk/20 m² |
| Číslo zakázky: | REALITYMIX-6458 |
Podrobné informace
- Dispozice bytu: 1+kk
- Číslo podlaží v domě: 3
- Počet podlaží objektu: 7
- Celková podlahová plocha: 20 m²
- Druh objektu: cihlová
- Stav objektu: dobrý
- Vlastnictví: osobní
- Umístění objektu: klidná část obce
- Doprava: vlak, dálnice, silnice, MHD, autobus
- Občanská vybavenost: Škola, Školka, Zdravotnická zařízení, Pošta, Supermarket, Kompletní síť obchodů a služeb
- Elektřina: Elektro - 230 V
- Topení: Ústřední - elektrické
- Energetická náročnost budovy: G - Mimořádně nehospodárná
Mapa
* Umístění na mapě je na základě GPS informací dodaných realitní kanceláří.
* Pozice na mapě je pouze orientační.