Pronájem bytu, 1+kk, 34 m²
Modenská, Praha 15, Horní Měcholupy
RezervovánoPronájem bytu, 1+kk, 34 m²
Modenská, Praha 15, Horní Měcholupy
Rezervováno
C
Vyhovující
Pronájem 1+kk 28 m² + lodžie 9 m²
Ve výhradním zastoupení majitele Vám nabízím zprostředkování pronájmu atraktivního a velmi příjemného bytu o dispozici 1+kk se zaskleno lodžií a sklepem, který se nachází ve čtvrtém nadzemním podlaží cihlového domu s výtahem v Praze 10 v ulici Modenská.
✅ Klíčové informace k bytu:
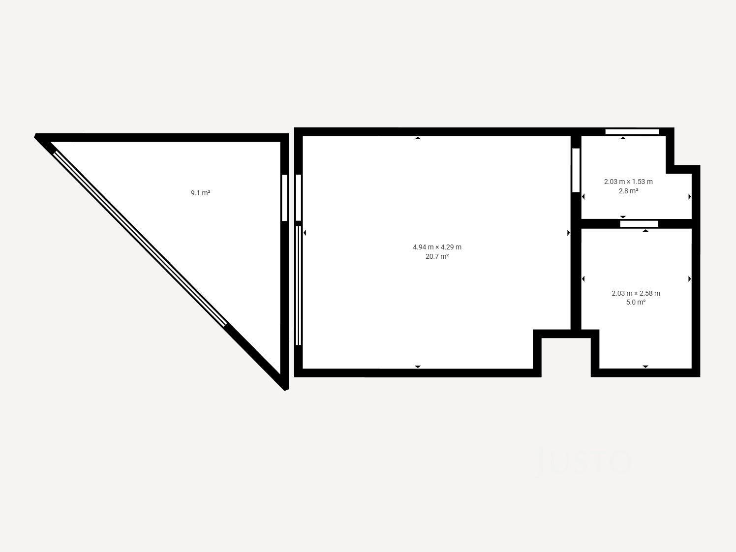
- plocha bytu 28, 6 m²
- k bytu náleží zasklená lodžie (9, 3 m²) a sklep (3, 9 m²)
- připraven pro nového nájemce k okamžitému nastěhování
- byt se nabízí zcela vybavený
- nesporným benefitem bytu je dostatek úložného prostoru
o vestavěná skříň,
o sklep
✅ Cena pronájmu:
- smlouva uzavřená na dobu určitou (1 rok)
- možnost prodloužení, ideální dlouhodobý pronájem
- nájemné 16 500,- Kč/měsíc
- zálohy na služby (1 700,- Kč/1 osoba)
- elektřina a se převádí na nového nájemníka cca 800,- Kč
- vratná kauce ve výši dvou měsíčních nájmů 33 000,- Kč
- nájemné a zálohy na služby se platí vždy na měsíc dopředu (18 200,- Kč)
✅ Informace k lokalitě:
- skvělá občanská vybavenost a dopravní dostupnost
- v pěším dosahu:
o mateřská i základní škola
o dětská a sportovní hřiště
o nákupní zóna se supermarketem Kaufland v OC Retail
o poliklinika Petrovice
o autobusová zastávka Janovská je vzdálená 200 m
o cca 1000 m od bytu se nachází Nádraží Horní Měcholupy
✅ Doplňující informace:
- majitel si vyhrazuje právo výběru nejvýhodnější nabídky v případě více zájemců
- zájemce nehradí provizi RK
- byt je připraven k okamžitému nastěhování
✅ Klíčové informace k bytu:
- plocha bytu 28, 6 m²
- k bytu náleží zasklená lodžie (9, 3 m²) a sklep (3, 9 m²)
- připraven pro nového nájemce k okamžitému nastěhování
- byt se nabízí zcela vybavený
- nesporným benefitem bytu je dostatek úložného prostoru
o vestavěná skříň,
o sklep
✅ Cena pronájmu:
- smlouva uzavřená na dobu určitou (1 rok)
- možnost prodloužení, ideální dlouhodobý pronájem
- nájemné 16 500,- Kč/měsíc
- zálohy na služby (1 700,- Kč/1 osoba)
- elektřina a se převádí na nového nájemníka cca 800,- Kč
- vratná kauce ve výši dvou měsíčních nájmů 33 000,- Kč
- nájemné a zálohy na služby se platí vždy na měsíc dopředu (18 200,- Kč)
✅ Informace k lokalitě:
- skvělá občanská vybavenost a dopravní dostupnost
- v pěším dosahu:
o mateřská i základní škola
o dětská a sportovní hřiště
o nákupní zóna se supermarketem Kaufland v OC Retail
o poliklinika Petrovice
o autobusová zastávka Janovská je vzdálená 200 m
o cca 1000 m od bytu se nachází Nádraží Horní Měcholupy
✅ Doplňující informace:
- majitel si vyhrazuje právo výběru nejvýhodnější nabídky v případě více zájemců
- zájemce nehradí provizi RK
- byt je připraven k okamžitému nastěhování
| Cena: | Rezervováno |
| Dispozice/podlahová plocha: | 1+kk/34 m² |
| Číslo zakázky: | REALITYMIX-J12136 |
Podrobné informace
- Bezbariérový byt: ano
- Dispozice bytu: 1+kk
- Číslo podlaží v domě: 4
- Počet podlaží objektu: 6
- Užitná plocha: 28 m²
- Celková podlahová plocha: 34 m²
- Druh objektu: cihlová
- Stav objektu: velmi dobrý
- Vlastnictví: osobní
- Lodžie: 9 m²
- Sklep: 3 m²
- Umístění objektu: klidná část obce
- Doprava: silnice, MHD, autobus
- Komunikace: asfaltová
- Elektřina: Elektro - 230 V, Elektro - 400 V
- Topení: Ústřední - dálkové
- Odpad: Kanalizace
- Energetická náročnost budovy: C - Vyhovující
Mapa
* Umístění na mapě je na základě GPS informací dodaných realitní kanceláří.
* Pozice na mapě je pouze orientační.
Podobné nemovitosti
Pronájem bytu, 1+kk, 31 m²
Nad přehradou, Praha 15, Horní Měcholupy
17 000 Kč za měsíc
Pronájem bytu, 1+kk, 29 m²
Hostivařská, Praha 15, Hostivař
14 400 Kč za měsíc
Pronájem bytu, 1+kk, 30 m²
Vladycká, Praha 15, Hostivař
17 000 Kč za měsíc
Pronájem bytu, 1+kk, 34 m²
Kytínská, Praha 15, Hostivař
17 900 Kč za měsíc