Prodej - dům/vila, 233 m²
Stržná, Praha-Suchdol, Suchdol
16 500 000 KčProdej - dům/vila, 233 m²
Stržná, Praha-Suchdol, Suchdol
Prodej rodinného domu 233 m2 s pozemkem 401 m2, Praha 6, Suchdol
Dům je postaven na vlastním pozemku o výměře 401 m2, je kompletně oplocen. Je napojen na veškeré inženýrské sítě ( plyn, elektřina, obecní vodovod a veřejná kanalizace). Na pozemku dále naleznete garáž s výjezdem přímo na ulici.
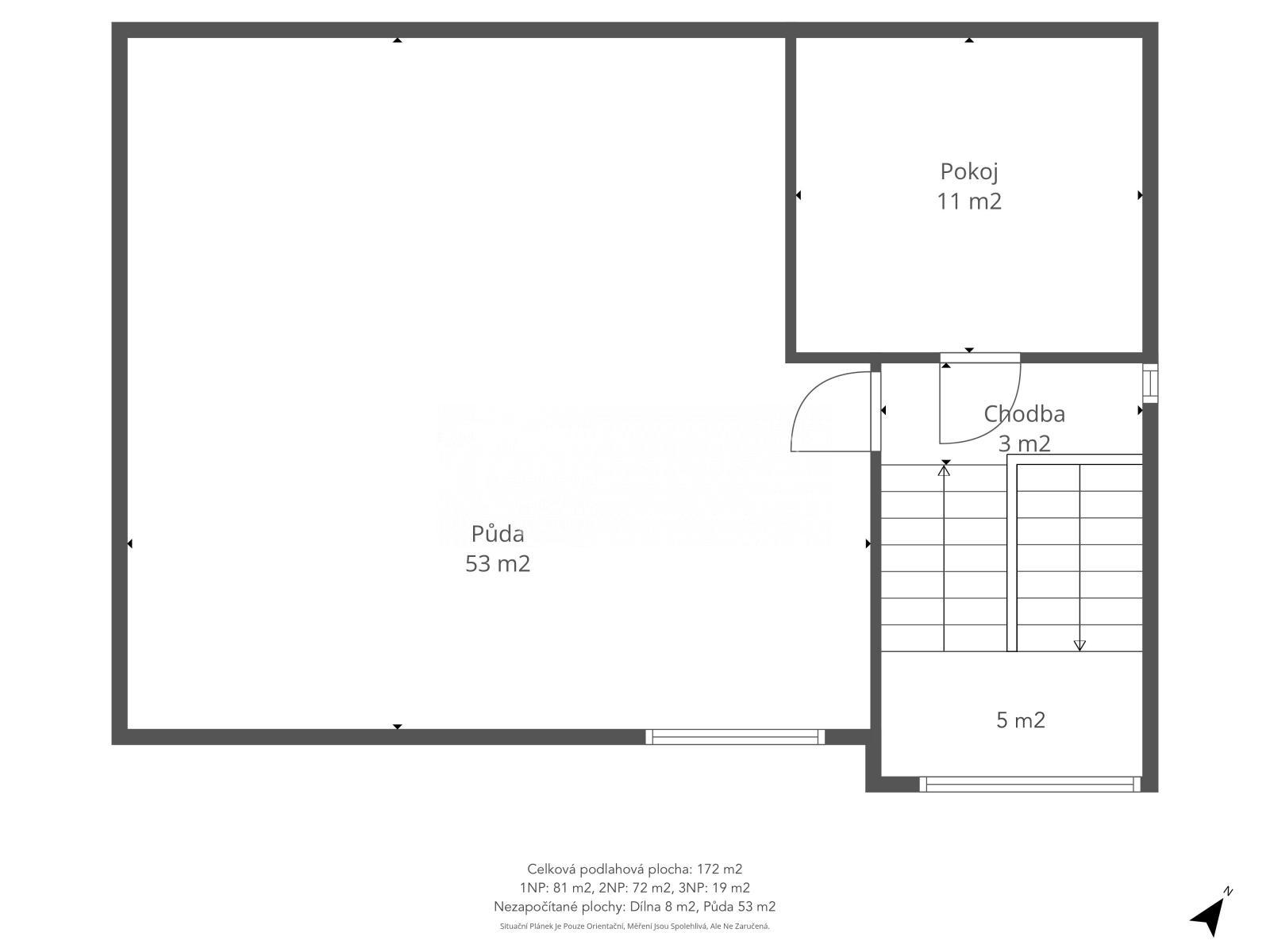
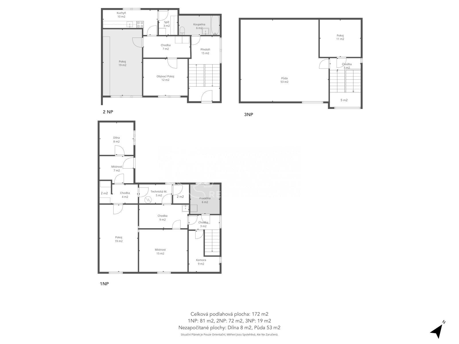
Nemovitost je celkově dobrém udržovaném stavu. Přesto je nutná kompletní rekonstrukce celého domu. V poslední patře se nachází prostorná půda a bylo v plánu dostavba posledního patra. K tomuto záměru existuje kompletní stavební dokumentace.
V blízkosti domu a v pěším dosahu se nachází mateřská škola, základní škola, obchody s potravinami, zdravotnické zařízení, lékárna, restaurace, plavecký bazén, komunitní zahrada a sportovní zařízení.
Výborné dopravní spojení do centra Prahy zajišťují různé autobusové linky s konečnou u stanice metra trasy A - Dejvická, V budoucnu se plánuje propojení Suchdola tramvajovou tratí.
Nemovitost není zatížena žádným omezením vlastnického práva, je možné ji financovat hypotečním úvěrem, který který vám rádi a zdarma pomůžeme zařídit.
Tato nemovitost představuje velmi dobrý investiční záměr jak pro investory, tak i pro příjemné bydlení rodiny s dětmi..
Velmi rád vás touto nemovitostí osobně provedu na prohlídce. Neváhejte mne kontaktovat.
| Cena: | 16 500 000 Kč |
| Poznámka: | Včetně realitního i právního servisu |
| Číslo zakázky: | REALITYMIX-20013 |
Podrobné informace
- Poloha objektu: řadový
- Druh objektu: cihlová
- Stav objektu: dobrý
- Počet podlaží objektu: 3
- Typ domu: patrový
- Zastavěná plocha: 99 m²
- Plocha parcely: 99 m²
- Užitná plocha: 233 m²
- Umístění objektu: klidná část obce
- Doprava: silnice, MHD, autobus
- Elektřina: Elektro - 230 V, Elektro - 400 V
- Voda: Zdroj pro celý objekt
- Telekomunikace: Telefon, Internet
- Plyn: Individuální, Plynovod
- Topení: Lokální - plynové
- Odpad: Kanalizace
- Energetická náročnost budovy: E - Nehospodárná
- Energetický ukazatel podle vyhlášky: č. 148/2007 Sb.
Právní rádce
-
Detail
V tomto článku shrneme nejdůležitější věci, které byste si měli promyslet, pokud se chystáte prodat svou nemovitost a chcete, abyste s kupujícím nemusel následně řešit vzniklé problémy.
Jako prodávající nesete rizika spojená nejen se samotným obchodem, ale i se stavem nemovitosti v době prodeje a pro minimalizaci rizik, je dobré se zamyslet nad uvedenými oblastmi.
-
Detail
Realitní makléř má své nezastupitelné místo v realitním obchodu. Realitním makléřem nemyslím nevzdělané jelito, které absolvovalo dvoudenní školení a ví, jak se nahraje inzerát na inzertní portál.
Realitním makléřem, který se Vám skutečně vyplatí, je zkušený profesionál, který je schopen Vám dobře poradit jak prodat za co nejvíc a s nejmenším rizikem a hlavně je Vás schopen obratně provést celým realitním obchodem.